3-Zimmer-Wohnung im Neubau-Standard mit Balkon im Herzen von Berlin-Mitte
Diese ca. 96 m² große 3-Zimmer-Wohnung befindet sich im vierten Obergeschoss eines Altbaus aus dem Jahr 1875. Das Gebäude wurde grundlegend modernisiert und präsentiert sich heute in einem technisch und optisch zeitgemäßen und an-sprechendem Zustand. Im Rahmen der Sanierung wurden unter anderem die Fassaden, das Dach sowie die Hautechnik erneuert, die Heizungsanlage durch eine neue Gaszentralheizung ersetzt sowie die Hofanlage neu gestaltet. Diese Maß-nahmen gewährleisten einen hohen Qualitätsstandard des Gemeinschaftseigentums und tragen nachhaltig zum Werterhalt der Immobilie bei.
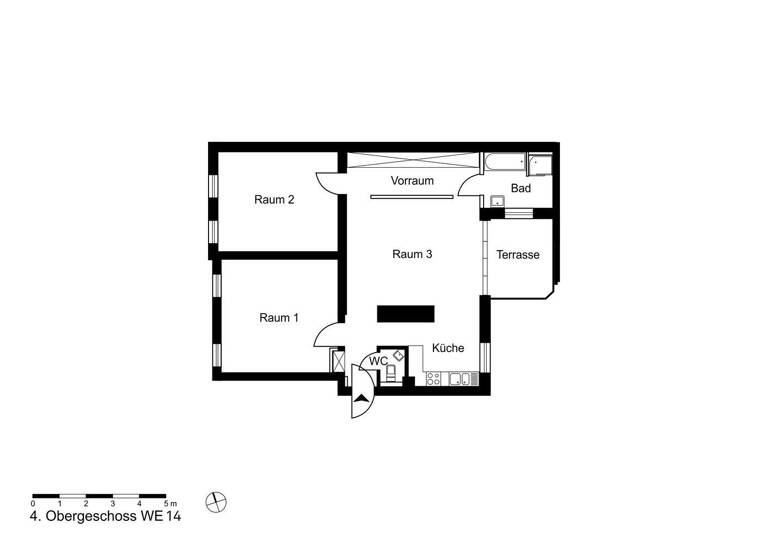
Die Wohnung präsentiert sich im Erstbezug und entspricht einem hochwertigen Neubau-Standard. Der Grundriss bietet zwei Schlafzimmer sowie einen halboffenen Wohnbereich mit angenehmer Raumwirkung. Die zum Innenhof ausgerichtete Dachterrasse (ca. 8,5 m² ) schafft einen geschützten und ruhigen Außenbereich. Das Badezimmer ist mit Badewanne und Dusche ausgestattet; zusätzlich steht ein separates Gäste-WC zur Verfügung. Parkettboden vom renommierten Schweizer Hersteller Bauwerk und moderne Ausstattungsdetails sorgen für ein hochwertiges Gesamtbild. Der Zugang zur Wohnung erfolgt komfortabel über den kürzlich angebauten Aufzug. Ein Stellplatz im Innenhof mit E-Ladestation steht optional zur Verfügung. Das Wohngeld ist von der Verwaltung kalkuliert. Ein aktueller Wirtschaftsplan wird auf der ersten Eigentümerversammlung im Frühjahr 2026 beschlossen.
Merkmale
Bezug: ab sofort
4. Geschoss
Personenaufzug
Keller
Balkon
Grundrisse
Grundrisse
1 / 1
Realisiere Dein Projekt
Bausubstanz und Energie
Energieausweis
B
Baujahr1875
Zustand der ImmobilieGepflegt
HeizungsartZentralheizung
EnergieträgerGas
Preisdetails
Kaufpreis
759000 €759.000 €
7.906 €/m²
Hausgeld
368 €368 €
Provision für Käufer
3,57% inkl. gesetzl. MwSt.
Geschätzte Gesamtkosten
846.816 €1
Kaufpreis
759.000 €
Kaufnebenkosten
87.816 €
2
Notarkosten (1,5%)
11.385 €
Grunderwerbsteuer (6%)
45.540 €
Provision für Käufer (3,57%)
27.096 €
Grundbucheintrag (0,5%)
3.795 €
1Der angezeigte Wert ist eine automatisch berechnete Schätzung von immowelt.
2Bei den Angaben handelt es sich um ortsübliche Werte. Individuelle Kosten können abweichen.
Lage
Kastanienallee 62, Blankenburg, Berlin (10119)
Die Kastanienallee zählt zu den bekanntesten Straßen im Berliner Bezirk Mitte, unweit der Bezirksgrenze zu Prenzlauer Berg. Die zentrale Lage bietet kurze Wege und ein vielseitiges Angebot direkt vor der Haustür. Gepflegte Altbauten, kleine Einzelhandelsgeschäfte sowie eine breite Auswahl an Restaurants und Cafés prägen das Straßenbild. Entlang der Kastanienallee und in den angrenzenden Straßen finden sich zahlreiche Boutiquen, Galerien und Angebote für den täglichen Bedarf. Grünflächen wie der Weinbergspark, der Zionskirchplatz und der Mauerpark sind fußläufig erreichbar und bieten Rückzugsmöglichkeiten zur Erholung. Die Anbindung an den öffentlichen Nahverkehr ist hervorragend: Die U-Bahn-Stationen Rosenthaler Platz und Eberswalder Straße sowie mehrere Buslinien sind fußläufig erreichbar und gewährleisten eine schnelle Verbindung in andere Stadtteile. Die Haltestelle Kastanienallee/Eberswalder Straße mit der Tramlinie M10 befindet sich direkt vor der Tür. Auch die Torstraße und der Alexanderplatz sind zügig erreichbar.