Version: 8.26.0Navigation überspringen
3.321 €
71,5 m² Gastrofläche
Immowelt logo

Restaurant zur Miete - Erstbezug • provisionsfrei
3.321 €
71,5 m² Gastrofläche

Gastronomiefläche in neuem Stadtquartier in Dortmund-Barop!

Arbeiten und Wohnen am Hombrucher Bogen!

Auf einer Fläche von rund 70.000 m² in Dortmund-Hombruch/Barop wird derzeit das neue Stadtquartier entwickelt, der

"Hombrucher Bogen"


Auf dem Grundstück des ehemaligen Fertigbetonwerks entstehen verschiedene Wohnhäuser (Mietwohnungen, Einfamilienhäuser, Doppelhaushälften, sozialer Wohnungsbau), ein Seniorenstift, eine Polizeiwache, eine Kindertagesstätte, unterschiedliche Ladenlokale, Arztpraxen und Gastronomieflächen.


Ein "Stadtteil" im Stadtteil, der nach endgültiger Fertigstellung rd. 300 Wohnungen und 24 Häuser umfasst und somit für ca. 900 Personen ein neues Zuhause bietet. Unberücksichtigt sind dabei noch die gewerblichen Mieter, die hier ihr neues berufliches Zuhause in einem perfekten Umfeld erwartet.

In diesem groß angelegten Bauprojekt erhalten Sie die Möglichkeit zur Anmietung von attraktiven Gastronomie- und Praxisflächen sowie Ladenlokalen. Im Erdgeschoss, 1. Obergeschoss und 2. Obergeschoss bieten wir Ihnen maßgeschneiderte Flächen mit einem variablen Flächenkonzept zur Miete an.

Profitieren Sie von einer repräsentativen Immobilie und einem Neubaugebiet, in dem Sie noch voll mitgestalten können.

Merkmale

  • Bezug: sofort
  • Terrasse
Moderne Ausstattung
Flexible Grundrissgestaltung und Ausbau der Flächen
Hocheffiziente Bauweise mit Blockheizkraftwerk
Große Fenster und lichtdurchflutete Räume
Personenaufzug
Klimaanlage optional
Stellplätze

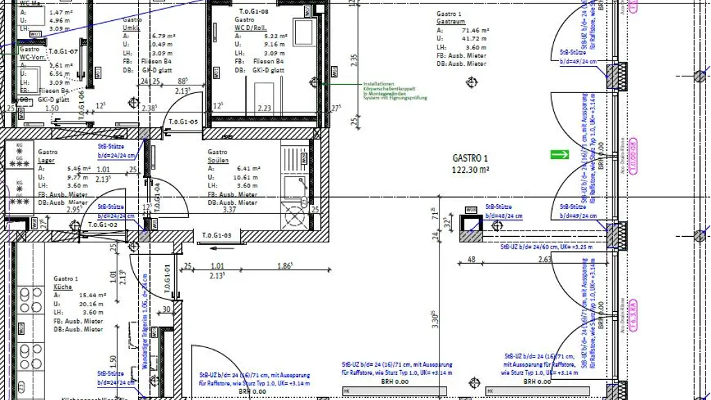
Grundrisse

Verschaffe dir einen genauen Überblick über die Raumaufteilung.selection_property_house-icon

Bausubstanz und Energie

Möchtest du Details zum Energieverbrauch?info_energy_calculation-icon
  • Baujahr2022
  • Zustand der ImmobilieNeubau, Erstbezug
Immowelt logo

Mietkosten

Warmmiete
3.815,70 €
Kaltmiete
27 €/m²
3.321 €
Nebenkosten
381,57 €
Provision für Mieter
provisionsfrei
Kaution
11500 €

Lage

address-icon
Luisenglück 24aHombruchDortmund (44225)
Eine der begehrtesten Lagen und vielleicht der aufstrebendste Stadtteil Dortmunds ist Hombruch. Zentral gelegen und mit der beliebten Flanier- und Einkaufsmeile Harkortstraße bietet der Stadtteil zahlreiche Geschäfte für den täglichen Bedarf (direkt nebenan: Aldi, dm, Kaufland, etc.) sowie Restaurants, Cafés, Apotheken und Ärzte.

Der Standort ist sehr gut an das innerörtliche und überregionale ÖPNV-Netz angebunden. Über drei U-Bahnhaltestellen (eine davon extra für den neuen Stadtteil erbaut), die in wenigen Gehminuten erreichbar sind, sind die Dortmunder Innenstadt, der Hauptbahnhof und alle weiteren Dortmunder Stadtteile sehr gut zu erreichen. Darüber hinaus befindet sich in unmittelbarer Nähe der Anschluss an die Bundesstraßen B1 und B54 sowie die Autobahnen A40, A44 und A45, wodurch eine sehr gute Anbindung in das gesamte Ruhrgebiet gewährleistet ist.

Weitere Services

Lust auf eine Besichtigung?
Eine Frage zur Immobilie?
Mit einer persönlichen Nachricht hast du bessere Chancen auf eine Antwort.
Mit der Nutzung der oben angegebenen Telefonnummer oder durch Klicken auf „Kontaktieren“ akzeptierst Du die Allgemeinen Nutzungsbedingungen, denen Du jederzeit widersprechen kannst. Weitere Informationen zum Datenschutz

Über den Anbieter

Rosemeyerstr. 14, 44139 Dortmund
partner badge
3 Jahre Partnerschaft
Herr PURPLERHINO Real Estate GmbH Herrn Manuel VohwinkelDein Kontakt
Online-ID: 236FDDTSJCYH
Referenznummer: 55103 (1/23)
Wie zufrieden bist du mit dieser Seite (nicht mit der Immobilie selbst)?