Version: 8.24.0Navigation überspringen
1.750.000 €
7 Zimmer  •  215 m²  •  310 m² Grundstück
Immowelt logo

Mehrfamilienhaus zum Kauf - Erstbezug
1750000 €
8.140 €/m²
7 Zimmer  •  215 m²  •  310 m² Grundstück

AIGNER - Wohnqualität neu gedacht: Familiengerechtes Wohnen in ruhiger, zentraler Lage Dachaus

Bei dem angebotenen Objekt handelt es sich um ein Zweifamilienhaus, welches sich aktuell im fortgeschrittenen Rohbau befindet. Die Fertigstellung ist für Frühjahr 2026 vorgesehen. Das Gebäude ist in zeitgemäßer Massiv-Bauweise errichtet und erfüllt aktuelle Anforderungen an Energieeffizienz, Wohnkomfort und Funktionalität.

Ein besonderer Mehrwert dieses Projekts besteht in den umfangreichen Mitgestaltungsmöglichkeiten für den Käufer. Abhängig vom jeweiligen Baufortschritt können wesentliche Ausstattungsmerkmale individuell bemustert und ausgewählt werden. Dazu zählen unter anderem die Bodenbeläge, Innentüren, die Ausführung der Bäder, das Beleuchtungskonzept, Terrassen- und Dachterrassenbeläge, die Wandfarbgestaltung sowie das Schaltermaterial der Elektroinstallation. Dadurch besteht die Möglichkeit, das Objekt in weiten Teilen an persönliche Wohnvorstellungen anzupassen.

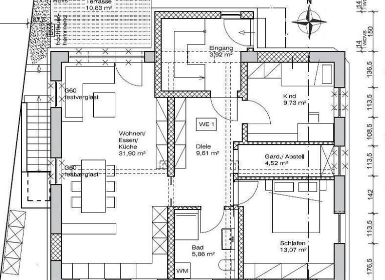
Die Grundrissgestaltung bietet attraktive Außenflächen: Das Erdgeschoss verfügt über eine direkt angeschlossene Terrasse inklusive eines gegenüberliegenden Anbaus mit überdachtem Grillplatz, während im Dachgeschoss zwei großzügige Dachterrassen vorhanden sind. Diese sind nach Nord-West sowie Süd-West ausgerichtet und bieten unterschiedliche Sonnen- und Nutzungsmöglichkeiten.

Die Beheizung des Gebäudes erfolgt über eine moderne Wärmepumpe in Kombination mit einer komfortablen Fußbodenheizung, was ein effizientes und zeitgemäßes Heizkonzept darstellt. Eine Doppelgarage sowie ein Stellplatz sind Bestandteil des Objekts und rundet das Angebot funktional ab.

Insgesamt besticht das Zweifamilienhaus mit flexiblen Ausstattungsoptionen, moderner Haustechnik und attraktiven Außenflächen - ideal für Eigennutzer wie auch für Kapitalanleger.

Der Kaufpreis setzt sich wie folgt zusammen: Kaufpreis Zweifamilienhaus 1.750.000 Euro + 2 Garagenstellplätze je 40.000 Euro + 20.000 Euro Außenstellplatz = 1.850.000 Euro Gesamtkaufpreis.

Merkmale

  • Bezug: Frühjahr 2026
  • 310 m² Grundstück
  • Keller
  • 3 Stellplätze: 3 Garagen
  • Terrasse
Geplante Fertigstellung: Frühjahr 2026
Aktuell im fortgeschrittenen Rohbau (Endstadium Rohbau)
Mitbestimmungsmöglichkeiten je nach Baufortschritt
Zwischenverkauf im jeweiligen Bauzustand möglich
Blick auf die Altstadt Dachaus
Erdgeschoss mit direkt zugeordneter Terrasse inkl. Anbau und überdachtem Grillplatz
Dachgeschoss mit zwei Dachterrassen in Nord-West- & Süd-West-Ausrichtung
Moderne Heiztechnik mit Wärmepumpe
Fußbodenheizung
Photovoltaikanlage (Südseite, optional)
3-fach verglaste Kunststofffenster in Anthrazit mit elektrischen Rolläden
Dachfenster (Thermo Velux), 3-fach verglast mit elektrischen Rolläden
Videosprechanlage
Eichenparkett
Doppelgarage mit 2x Wallbox und Außenstellplatz vorhanden

Grundrisse

Grundrisse
1 / 3

Realisiere Dein Projekt

Bausubstanz und Energie

Energieausweis

  • Baujahr2026
  • Zustand der ImmobilieErstbezug
  • EnergieträgerElektro
Immowelt logo

Preisdetails

Kaufpreis
1750000 €
8.139,53 €/m²
Preis pro Stellplatz
100000 €
Provision für Käufer
3,57% inkl. MwSt.
Die Käuferprovision beträgt 3,57% inkl. gesetzlicher Mehrwertsteuer vom wirtschaftlichen Kaufpreis. Unsere Angebote erfolgen freibleibend und unverbindlich. Irrtum und Zwischenverkauf bleiben vorbehalten.
Weitere Preisinformationen
3 Garagenstellplätze, Kaufpreis je: 100.000,00 EUR
Geschätzte Gesamtkosten
1.908.725 €1
Kaufpreis
1.750.000 €
Notarkosten (1,5%)
26.250 €
Grunderwerbsteuer (3,5%)
61.250 €
Provision für Käufer (3,57%)
62.475 €
Grundbucheintrag (0,5%)
8.750 €
1Der angezeigte Wert ist eine automatisch berechnete Schätzung von immowelt.
2Bei den Angaben handelt es sich um ortsübliche Werte. Individuelle Kosten können abweichen.

Lage

address-icon
Dachau (85221)
Der Anbieter hat die genaue Adresse nicht freigegeben
Das Objekt befindet sich in einer ruhigen und gewachsenen Wohnlage der Stadt Dachau.
Das direkte Umfeld zeichnet sich durch eine angenehme, familienfreundliche Wohnatmosphäre sowie eine gepflegte Nachbarschaft aus. Die geringe Verkehrsbelastung sorgt für ein hohes Maß an Ruhe und Wohnqualität.

Dachau verfügt über eine gut ausgebaute Infrastruktur. Einrichtungen des täglichen Bedarfs wie Einkaufsmöglichkeiten, Bäckereien, Apotheken sowie Banken sind in kurzer Zeit erreichbar.
Kindergärten, Schulen und ärztliche Versorgungseinrichtungen befinden sich ebenfalls in komfortabler Nähe und unterstreichen die Attraktivität des Standorts für Familien und Mehrgenerationenhaushalte.

Die Anbindung an den öffentlichen Personennahverkehr ist gut. Der S-Bahnhof Dachau mit direkter Verbindung in die Münchner Innenstadt ist mit dem Rad in 3 Minuten erreichbar.
Ergänzend besteht eine verkehrsgünstige Anbindung an das regionale und überregionale Straßennetz, wodurch sowohl München als auch die umliegenden Wirtschaftsstandorte schnell erreichbar sind.

Ein vielfältiges Freizeit- und Naherholungsangebot rundet die Lage ab. Grünflächen, Rad- und Spazierwege sowie naturnahe Erholungsräume bieten einen hohen Freizeitwert.
Die historische Altstadt von Dachau mit ihren kulturellen Einrichtungen, Gastronomieangeboten und Veranstaltungen trägt zusätzlich zur hohen Lebensqualität bei.

Insgesamt vereint die Lage ein ruhiges, wohnorientiertes Umfeld mit einer sehr guten Infrastruktur und einer attraktiven Nähe zur Landeshauptstadt München.

Weitere Informationen

Sonstiges Heizungsart: Wärmepumpe
Baujahr: 2026
Befeuerung/Energieträger: Strom
Energieausweistyp: Bedarfsausweis
Energiekennwert: 41,3 kWh kWh/(m²*a)
Energieeffizienzklasse: A

Kostenlose Online-Bewertung - https://aigner-immobilien.de/wertermittlung-online-muenchen/

Zu unseren Marktberichten - https://aigner-immobilien.de/marktinformationen/

- https://aigner-immobilien.de/objekt/ID-43127/MehrBilderundInfoshier

Mehr Bilder und Infos hier - https://aigner-immobilien.de/objekt/ID-43127/ Stichworte Garage vorhanden, Anzahl der Schlafzimmer: 5, Anzahl der Badezimmer: 3, Anzahl Terrassen: 1, 3 Etagen

Weitere Services

Lust auf eine Besichtigung?
Eine Frage zur Immobilie?
Nachricht hinzufügen
Mit der Nutzung der oben angegebenen Telefonnummer oder durch Klicken auf „Kontaktieren“ akzeptierst Du die Allgemeinen Nutzungsbedingungen, denen Du jederzeit widersprechen kannst. Weitere Informationen zum Datenschutz

Über den Anbieter

Ruffinistraße 26, 80637 München
Frau Ann-Kathrin KafitzDein Kontakt
Online-ID: 2nrbh5d
Referenznummer: 43127
Aigner Immobilien GmbH
Aigner Immobilien GmbH
Nachricht hinzufügen
Mit der Nutzung der oben angegebenen Telefonnummer oder durch Klicken auf „Kontaktieren“ akzeptierst Du die Allgemeinen Nutzungsbedingungen, denen Du jederzeit widersprechen kannst. Weitere Informationen zum Datenschutz
Wie zufrieden bist du mit dieser Seite (nicht mit der Immobilie selbst)?