Version: 8.26.0Navigation überspringen
1.950 €
9 Zimmer  •  160 m² Bürofläche  •  teilbar ab 96 m²
Immowelt logo

Bürogebäude zur Miete
1.950 €
9 Zimmer  •  160 m² Bürofläche  •  teilbar ab 96 m²

!!! Top Büroetage in schönem Gründerzeithaus in bester Lage !!!

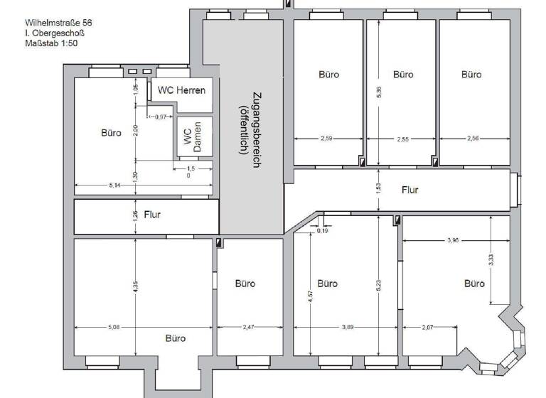
Die Büroetage befindet sich in der 1. Etage eines
denkmalgeschützten Gründerzeithauses mit Türmchen, Stuck,
Erker und kleinem Balkon.
Sie ist durch das Treppenhaus unterteilt. Im linken Teil, gehen
vom Flur rechts drei gleiche Räume, mit frisch aufgearbeitetem
Parkettboden, ab. Rechts vom Flur kommt man zu zwei größeren
Räumen die durch eine Flügeltür verbunden sind. Diese Räume
sind mit hochwertigem Klebevinyl neu verlegt worden. Alle
Räume haben noch den ursprünglichen Stuck an den Decken.
Im rechten Teil vom Treppenhaus befindet sich rechts vom Flur
ein Raum von welchem auch die beiden Toiletten abgehen.
Links vom Flur sind 2 weitere Räume.
Im rechten Teil vom Treppenhaus ist der Boden auch neu verlegt
worden, mitvhochwertigem Klebevinyl.

Merkmale

  • Bodenbelag: Parkett, Kunststoff
Die Büroetage wurde gerade renoviert, d. h., neuer Wand- und
Türenanstrich, sowie die Aufarbeitung des Parketts und das
Verlegen von Klebevinyl.

- Fertigparkettboden
- Klebevinyl
- Gasheizung
- Befeuerung: Gas
-DerGlasfaseranschluss ist vorbereitet

Grundrisse

Grundrisse
1 / 1

Bausubstanz und Energie

Möchtest du Details zum Energieverbrauch?info_energy_calculation-icon
  • Baujahr1896
  • Zustand der ImmobilieGepflegt
  • EnergieträgerGas
Immowelt logo

Mietkosten

Nettomiete
1.950 €
Nebenkosten
550 €
Provision für Mieter
3,57 zzgl. MwSt.
Kaution
keine Angabe

Lage

address-icon
Siegburg (53721)
Der Anbieter hat die genaue Adresse nicht freigegeben
Zentraler geht es nicht! Diese einzigartige Büroetage liegt in attraktiver Lage von Siegburg. Hier arbeiten Sie in ruhiger Lage im Herzen von Siegburg, in nur ca. 150 Meter vom Marktplatz entfernt.
Öffentliche Verkehrsmittel wie Busse, S-Bahn mit Verbindung nach Köln /Bonn und der ICE-Bahnhof liegen direkt gegenüber vom Haus. Mit dem ICE erreichen Sie Frankfurt in 45 min, Köln in nur 18 min und Düsseldorf in 30 min. Die Autobahn A560, A59 und die A3 sind ebenfalls schnell erreichbar.

Öffentliche Tiefgaragen und Parkplätze befinden sich in nur zwei Fußminuten vom Haus entfernt.

Weitere Informationen

Sonstiges Gerne können Sie sich auf unserer Homepage noch ausführlicher über dieses Objekt informieren - klicken Sie dazu einfach auf den untenstehenden Link.https://www.immobilien-kittlaus.de/immobilien/renovierte-bueroetage-in-schoenem-gruenderzeithaus-in-bester-lage/ Stichworte Gesamtfläche: 160,00 m², Distanz zum Kindergarten: 0.39, Distanz zur Grundschule: 0.29, Distanz zur Realschule: 0.98, Distanz zur nächsten Einkaufsmöglichkeit: 0.70, Distanz zum Gymnasium: 0.53, Distanz zum Flughafen: 4.20, Distanz zum Hauptbahnhof: 0.32, Distanz zur Autobahn: 0.70, Distanz zum Bus: 0.19, Distanz zur nächsten Gaststätte: 0.15, Distanz vom Zentrum: 0.50, Distanz zur Hauptschule: 1.02

Weitere Services

Lust auf eine Besichtigung?
Eine Frage zur Immobilie?
Mit einer persönlichen Nachricht hast du bessere Chancen auf eine Antwort.
Mit der Nutzung der oben angegebenen Telefonnummer oder durch Klicken auf „Kontaktieren“ akzeptierst Du die Allgemeinen Nutzungsbedingungen, denen Du jederzeit widersprechen kannst. Weitere Informationen zum Datenschutz

Über den Anbieter

Bahnhofstr. 12, 53721 Siegburg
partner badge
Partnerschaft
Herr Walter LindenstreichDein Kontakt
Online-ID: 26GA5GN7GJAH
Referenznummer: 722
Wie zufrieden bist du mit dieser Seite (nicht mit der Immobilie selbst)?