Bürofläche zur Miete
Ruhige und zentrale Büroflächen in Grazer Innenstadt / Top-Lage / Sporgasse 29 / Top 508 3
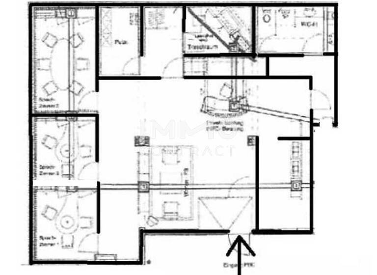
Diese ca. 156 m² große Büroeinheit befindet sich im Erdgeschoß, im hinteren Teil des Hausese Sporgasse 29 in ruhiger Innenstadtlage.
Raumaufteilung: 4 Räume, Empfang, sanitäre Einrichtungen.
Ausstattung: Die Böden sind mit Laminat ausgestattet. Die Bürofläche wird mittels Fernwärme zentral beheizt.
Parken: Es können in der hauseigenen Tiefgarage gesondert Parkplätze angemietet werden.
Öffentliche Verkehrsmittel sind in unmittelbarer Nähe zum Objekt vorhanden.
Für detaillierte Auskünfte und Besichtigungstermine vor Ort stehen wir gerne zur Verfügung!
Infrastruktur / Entfernungen
Gesundheit
Arzt <500m
Apotheke <500m
Klinik <1.000m
Krankenhaus <1.000m
Kinder & Schulen
Schule <500m
Kindergarten <500m
Universität <500m
Höhere Schule <500m
Nahversorgung
Supermarkt <500m
Bäckerei <500m
Einkaufszentrum <1.000m
Sonstige
Geldautomat <500m
Bank <500m
Post <1.000m
Polizei <500m
Verkehr
Bus <500m
Straßenbahn <500m
Autobahnanschluss <5.500m
Bahnhof <500m
Flughafen <10.000m
Angaben Entfernung Luftlinie / Quelle: OpenStreetMap
Bausubstanz und Energie
Gesamtenergieeffizienz (fGEE)
HeizungsartZentralheizung
Mietkosten
Provision für Mieter
3 Bruttomonatsmieten zzgl. 20% USt.
Kaution
3 Bruttomonatsmieten
Weitere Preisinformationen
Nettokaltmiete: 1.028,20 EUR
Lage

Sankt Leonhard, Graz (8010)
zentrale und ruhige Innenstadtlage in der Sporgasse 29
Weitere Informationen
Stichworte
Nutzfläche: 156,50 m², Bundesland: Steiermark
Lust auf eine Besichtigung?
Eine Frage zur Immobilie?
Über den Anbieter
Schnirchgasse 17, 1030 WIEN
Herr Jan SarkantyuDein Kontakt
Online-ID: 26CRVHYW39ET
Referenznummer: OBGC2025082518003273572afb1ee78
Wie zufrieden bist du mit dieser Seite (nicht mit der Immobilie selbst)?