

Studio zum Kauf422000 €3.836 €/m²3 Zimmer • 110 m² • EG
422000 €
3.836 €/m²
3 Zimmer • 110 m² • EG
Neugebaute Wohnungen in einem Komplex in Rincón de la Victoria
Merkmale
- Bezug: Spain Homes
- Erdgeschoss
- Personenaufzug
- voll klimatisiert
- Swimmingpool
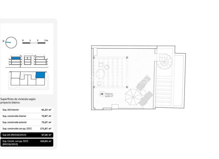
Grundrisse
Grundrisse
1 / 1
Realisiere Dein Projekt
Bausubstanz und Energie
Möchtest du Details zum Energieverbrauch?

- Baujahr2028
Preisdetails
Kaufpreis
422000 €
3.836,36 €/m²
Provision für Käufer
Bitte beachte, das Angebot kann bei Vertragsabschluss die Zahlung einer Provision beinhalten. Weitere Informationen erhältst Du vom Anbieter.
Lage

Málaga (29738)
Der Anbieter hat die genaue Adresse nicht freigegeben
Weitere Informationen
Weitere Services
Lust auf eine Besichtigung?
Eine Frage zur Immobilie?
Über den Anbieter
C/El Montículo 8, Benalmádena, 29631 MÁLAGA
Partnerschaft

Herr Santiago de Cordoba EstepaDein Kontakt
Online-ID: 25DR4BBDJXBH
Referenznummer: AGP-0886-2-MiddleFloor


Spain Homes
Wie zufrieden bist du mit dieser Seite (nicht mit der Immobilie selbst)?

