Version: 8.25.1Navigation überspringen
21 €
5.573,4 m² Bürofläche  •  teilbar ab 267 m²
Immowelt logo

Bürofläche zur Miete • provisionsfrei
21 €
/m²
5.573,4 m² Bürofläche  •  teilbar ab 267 m²

PROVISIONSFREI - Exklusive Büroflächen in nachhaltigem Neubau in Marienburg

Das Projekt "Reiterstaffel" liegt im Kölner Süden. Das Bürogebäude wird in zwei L-Baukörper gegliedert und bietet flexible Büroflächen. Im Hinterhof befindet sich ein offener Gartenbereich, der so wie die Dachterrassen gemeinschaftlich genutzt wird. Die begrünten Gemeinschaftsflächen bieten nicht nur eine angenehme Atmosphäre, sondern laden auch zum gemeinsamen Brainstorming oder Entspannen in der Pause ein. Über das großzügige En­t­rée gelangen die künftigen Mieter in ihre Bürofläche. Das gesamte Objekt wird über eine digitale Ausstattung verfügen, die den Mietern höchsten Komfort bietet. Es wird mobile Raumbuchung, integrierbare Smart-Locker-Technologie und ein Zugangssystem über Transponder geben. Die Mietflächen sind flexibel aufteilbar und ermöglichen eine effiziente Raumgestaltung. Hinsichtlich der Büroausstattung können Mieter teilweise noch Wünsche äußern.

Merkmale

  • Bezug: Sofort
  • Personenaufzug
  • Teeküche
  • 76 Stellplätze: 76 Außen-Stellplätze
  • voll klimatisiert
  • Kantine
- Terassen (Südlage)
- hohe Glasfaseranbindung
- akustikpaneele im Deckenbereich zur Erhöhung der Sprachverständlichkeit
- Lobby als Konferenzzone oder Cafeteria nutzbar
- innovativ zertifiziert nach DGNB-Standard

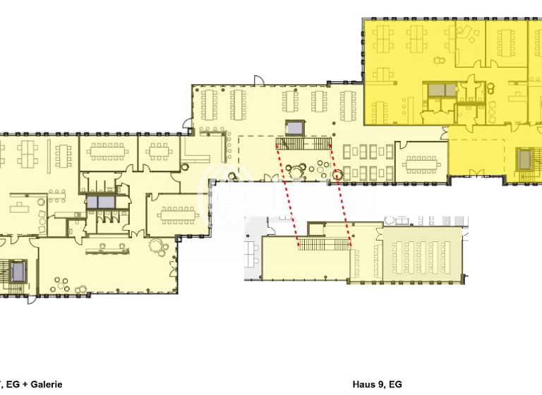
Grundrisse

Grundrisse
1 / 8

Realisiere Dein Projekt

Bausubstanz und Energie

Möchtest du Details zum Energieverbrauch?info_energy_calculation-icon
  • Baujahr2025
Immowelt logo

Mietkosten

Monatliche Miete
21 €/m²
Nebenkosten
3,60 €
Provision für Mieter
provisionsfrei; provisionsfrei für den Mieter/Käufer
Kaution
keine Angabe
Weitere Preisinformationen
76 Stellplätze

Lage

address-icon
MarienburgKöln (50968)
Der Anbieter hat die genaue Adresse nicht freigegeben
Die Liegenschaft befindet sich im schönen Kölner Süden im Stadtteil Bayenthal. Viele Dienstleister des täglichen Bedarfs liegen in fußläufiger Entfernung. Darüber hinaus sind Bus- und Bahnhaltestellen in nächster Nähe zu erreichen. Der Standort im Kölner Süden ermöglicht ein schnelles Erreichen des Autobahnkreuzes Köln-Süd mit Autobahnanschluss an die Autobahnen A 4 und A 555. Eine Tankstelle befindet sich in der Nähe. Dienstleister des täglichen Bedarfs befinden sich in der Nähe.

Weitere Informationen

Stichworte Gesamtfläche: 5.873,38 m² Sonstiges: EDV-Verkabelung

Weitere Services

Lust auf eine Besichtigung?
Eine Frage zur Immobilie?
Mit einer persönlichen Nachricht hast du bessere Chancen auf eine Antwort.
Mit der Nutzung der oben angegebenen Telefonnummer oder durch Klicken auf „Kontaktieren“ akzeptierst Du die Allgemeinen Nutzungsbedingungen, denen Du jederzeit widersprechen kannst. Weitere Informationen zum Datenschutz

Über den Anbieter

Augustinerstraße 10, 50667 Köln
partner badge
Partnerschaft
Frau Alexandra Zimmermann
Frau Alexandra ZimmermannDein Kontakt
Online-ID: 26LZDEWR42GZ
Referenznummer: 4@of48918@14@0
Jones Lang LaSalle SE - Office Leasing Köln
title
Jones Lang LaSalle SE - Office Leasing Köln
Mit einer persönlichen Nachricht hast du bessere Chancen auf eine Antwort.
Mit der Nutzung der oben angegebenen Telefonnummer oder durch Klicken auf „Kontaktieren“ akzeptierst Du die Allgemeinen Nutzungsbedingungen, denen Du jederzeit widersprechen kannst. Weitere Informationen zum Datenschutz
Wie zufrieden bist du mit dieser Seite (nicht mit der Immobilie selbst)?