




1 / 17



1 / 17

Wohnung zur Miete668 €2 Zimmer • 46,3 m² • 4. Geschoss • frei ab 01.06.2026
668 €
2 Zimmer • 46,3 m² • 4. Geschoss • frei ab 01.06.2026
Wohnen zwischen SCN und Lorettowiese - Ihr neues Zuhause wartet!
Moderne Neubauwohnungen in unmittelbarer Nähe zum SCN, Lorettowiese und mit ausgezeichneter Anbindung an öffentliche Verkehrsmittel - Straßenbahnlinie 26 und S-Bahn Jedlersdorf in Gehweite!
Im Jahr 2019 wurde dieses hochwertige Wohngebäude entlang der Prager Straße errichtet. Es überzeugt durch seine ausgezeichnete Anbindung an öffentliche Verkehrsmittel, die Nähe zu attraktiven Naherholungsgebieten und eine hervorragende Infrastruktur in der unmittelbaren Umgebung.
Nur wenige Minuten zu Fuß vom Gebäude entfernt, hält die Straßenbahnlinie 26, die den 21. und 22. Bezirk miteinander verbindet. Sie bietet eine schnelle Verbindung in nur vier Stationen zur U6 und der S-Bahn in Floridsdorf sowie in acht Stationen zur U1 in Kagran, von wo aus Sie direkten Zugang zum DONAUZENTRUM, einem beliebten Einkaufs- und Freizeitbereich, haben. Die Linie verläuft zudem bis zur Stadtgrenze nach Strebersdorf und führt in eine landschaftlich schöne Region. Auch die S-Bahn-Station Jedlersdorf ist in weniger als zehn Minuten zu Fuß erreichbar, wo die Linien S3, S4 und S7 halten.
Dank der zentralen Lage an der gut frequentierten Prager Straße profitieren die Bewohner von einer ausgezeichneten Infrastruktur und umfangreichen Einkaufsmöglichkeiten. Direkt gegenüber befindet sich ein BILLA, während auch eine Apotheke, verschiedene Werkstätten und zahlreiche Restaurants schnell zu erreichen sind. Für größere Einkäufe bietet sich das Shopping Center Nord an, das nur zwei Busstationen entfernt liegt.
Für Aktivitäten im Freien bieten sich die nahegelegene Lorettowiese - mit einer Fläche von rund 4 Fußballfeldern - sowie der angrenzende Aupark Jedlesee an. Diese bieten zahlreiche Freizeitmöglichkeiten wie einen Abenteuerspielplatz, einen Skaterpark, Sitzgelegenheiten, Beachvolleyballplatz, Fußballplatz und eine Hundezone. Auch die Neue Donau mit ihren Grillplätzen und ausgedehnten Radwegen ist schnell erreichbar.
Das Gebäude selbst zeichnet sich durch moderne Architektur und eine hochwertige Ausstattung aus. Es wurden großzügige Allgemeinflächen sowie effiziente Energiesparmaßnahmen berücksichtigt. Beheizt wird die Anlage mittels effizienter Fernwärme über Heizkörper. In den beiden begrünten Innenhöfen befinden sich Spielgeräte für Kinder. Jede Wohnung verfügt über ein Kellerabteil als zusätzlichen Stauraum sowie Zugang zu einem Fahrrad- und Kinderwagenabstellraum. Stellplätze in der hauseigenen Tiefgarage können optional angemietet werden.
Die Wohnungen bieten eine hohe Lebensqualität dank durchdachter Grundrisse und hochwertiger Ausstattung. In den Wohnbereichen wurde edler Eichenholzparkett verlegt, und die offenen Wohnküchen sind mit modernen Einbauküchen und Elektrogeräten ausgestattet. Die Fenster sind mit außenliegendem Sonnenschutz versehen, der über eine Kurbel bedient wird. Die Badezimmer sind mit weißen Fliesen ausgestattet und verfügen über einen Waschmaschinenanschluss, einen Spiegel, ein Spülbecken sowie einen Handtuchheizkörper. Je nach Wohnung ist entweder eine Badewanne oder eine Duschkabine integriert. Ein weiteres Highlight ist die Sprechanlage mit Kamera-Display in jeder Wohnung.
Die Wohnungen werden mit einer Befristung auf 5 Jahre vermietet.
Highlights:
* Hervorragende Infrastruktur in unmittelbarer Umgebung: BILLA gegenüber, Apotheke in Gehweite, Restaurants, Kindergärten und Schulen
* Shopping Center Nord in nur einer Busstation erreichbar
* Begrünter Innenhof mit Spielplatz
* Fahrradraum, Kinderwagenraum und Kellerabteile verfügbar
* Straßenbahnlinie 26 in 2 Gehminuten erreichbar
* 8 Straßenbahn-Stationen zur U1 Kagran und DONAUZENTRUM
* S-Bahn Jedlersdorf in Gehweite
* Nur 4 Straßenbahn-Stationen zur U6 und S-Bahn Floridsdorf
* Naherholungsgebiete Lorettowiese und Aupark Jedlesee in Gehweite
* Tiefgarage mit optionalen Stellplätzen
* Postboxen vorhanden
Ausstattungsstandard:
* Einbauküche mit Elektrogeräten inklusive
* Außenbeschattung an den Fenstern
* Moderner Neubau
* Eichenparkettboden
* Fernwärme-Heizung
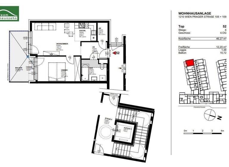
Wohnung Stiege 4 Top 52:
Die 2-Zimmer-Wohnung befindet sich im 4. Obergeschoss und punktet mit ihrer attraktiven Südost-Ausrichtung. Ein großzügiger Balkon sowie eine zusätzliche Loggia bieten angenehme Freiflächen zum Entspannen.
Vom Vorraum aus erreicht man den praktischen Abstellraum sowie das helle Wohnzimmer mit Kochnische, das als zentraler Wohnbereich dient. Das gemütliche Schlafzimmer bietet ausreichend Platz für Ruhe und Erholung.
Das Badezimmer mit WC ist funktional ausgestattet und verfügt über eine Badewanne, ein Handwaschbecken sowie einen Waschmaschinenanschluss, wodurch zusätzlicher Wohnkomfort geschaffen wird.
Die angebotene Wohnung ist verfügbar ab 01.06.2026.
Einige Bilder des Inserats wurden zum Zweck der besseren Visualisierung digital mit KI möbliert. Die Wohnung wird unmöbliert übergeben.
Kostenübersicht
Der monatliche Mietpreis inklusive Betriebskosten und USt. beläuft sich auf € 920,68.
* Kaution: 3 Bruttomonatsmieten
* Provision: keine
Der angegebene Mietpreis versteht sich als Bruttokaltmiete, Energiekosten wie für Heizung, Warmwasser und Strom sind somit nicht inkludiert und fallen gesondert, basierend auf Ihrem Verbrauch, an.
Bei Bedarf besteht auch die Möglichkeit einen Stellplatz in der hauseigenen Tiefgarage anzumieten.
Der Mietpreis für den PKW-Stellplatz beläuft sich auf 115 Euro (inkl. BK und USt.).
Infrastruktur:
In wenigen Gehminuten erreichen Sie die Straßenbahnlinie 26, die die Bezirke 21 und 22 miteinander verbindet. In nur vier Stationen gelangen Sie zur U6 und zur S-Bahn in Floridsdorf, während es nur acht Stationen bis zur U-Bahn U1 Kagran sind - dem Tor zu einem Shopping- und Entertainmentparadies im DONAUZENTRUM! Die S-Bahn-Station Jedlersdorf ist ebenfalls fußläufig erreichbar, und in weniger als zehn Minuten stehen Ihnen die Linien S3, S4 und S7 zur Verfügung.
Die Lage an der Prager Straße bietet Ihnen eine ausgezeichnete Nahversorgung. Praktisch direkt vor der Tür finden Sie einen BILLA, eine Apotheke (nur 250 m entfernt), zahlreiche Werkstätten und ein vielfältiges Gastronomieangebot. Für ausgiebige Shoppingtouren ist das Shopping-Center-Nord, nur zwei Busstationen entfernt, ideal. Für Freizeitaktivitäten und Erholung laden die nahegelegene Lorettowiese, die sich über vier Fußballfelder erstreckt, sowie der angrenzende Aupark Jedlesee ein. Hier erwarten Sie ein Abenteuerspielplatz, ein Skaterpark, Beachvolleyballplätze und viele Grünflächen. Fußballbegeisterte können sich zudem auf den SC Columbia Floridsdorf und den FAC-Platz freuen. Auch die Neue Donau mit ihren Grillplätzen und Radwegen ist schnell erreicht.
Energieausweis:
Der Referenz-Heizwärmebedarf beträgt 30,49 kWh/m²a und entspricht somit der Klasse B.
Der fGEE beträgt 0,83 und entspricht somit sogar der Klasse A.
Für Fragen bzw. Besichtigungen steht Ihnen Herr Stefan Djukic sehr gerne unter 0664 536 84 47 oder via E-Mail unter Djukic@teamneunzehn.at zur Verfügung.
Wir weisen darauf hin, dass zwischen dem Vermittler und dem zu vermittelnden Dritten ein familiäres oder wirtschaftliches Naheverhältnis besteht.
Der Immobilienmakler erklärt, dass er - entgegen dem in der Immobilienwirtschaft üblichen Geschäftsgebrauch des Doppelmaklers - einseitig nur für den Vermieter tätig ist.
"Leben braucht Raum" * T19-RE Real Estate GmbH & Co KG * www.teamneunzehn.at [https://www.teamneunzehn.at]
Doppelmakler
Wir werden als Immobilienmakler kraft bestehenden Geschäftsgebrauchs als Doppelmakler tätig und haben sohin beide Seiten des Vertrages (Verkäufer-Käufer, Vermieter-Mieter) zu unterstützen.
Wirtschaftliches Naheverhältnis
Es wird bekannt gegeben, dass folgendes wirtschaftliches Naheverhältnis zwischen der teamneunzehn-Gruppe und dem Verkäufer/der vermietenden Partei besteht: ständige und dauerhafte Beauftragung mit der Vermittlung des bestehenden Immobilienportfolios
Haftungserklärung zum Inserat
Irrtum und Änderungen vorbehalten! Sofern es sich bei Bildern um Visualisierungen handelt, können Abänderungen zur tatsächlichen Ausführung resultieren. Wir weisen ausdrücklich darauf hin, dass das auf Fotos oder Visualisierungen ersichtliche Mobiliar bzw. Inventar nicht Bestandteil des inserierten Preises ist.
Infrastruktur / Entfernungen
Gesundheit
Arzt <100m
Apotheke <300m
Klinik <1.225m
Krankenhaus <1.250m
Kinder & Schulen
Schule <325m
Kindergarten <100m
Universität <2.025m
Höhere Schule <1.100m
Nahversorgung
Supermarkt <125m
Bäckerei <225m
Einkaufszentrum <675m
Sonstige
Geldautomat <925m
Bank <925m
Post <425m
Polizei <1.125m
Verkehr
Bus <200m
U-Bahn <1.625m
Straßenbahn <200m
Bahnhof <550m
Autobahnanschluss <550m
Angaben Entfernung Luftlinie / Quelle: OpenStreetMap
Im Jahr 2019 wurde dieses hochwertige Wohngebäude entlang der Prager Straße errichtet. Es überzeugt durch seine ausgezeichnete Anbindung an öffentliche Verkehrsmittel, die Nähe zu attraktiven Naherholungsgebieten und eine hervorragende Infrastruktur in der unmittelbaren Umgebung.
Nur wenige Minuten zu Fuß vom Gebäude entfernt, hält die Straßenbahnlinie 26, die den 21. und 22. Bezirk miteinander verbindet. Sie bietet eine schnelle Verbindung in nur vier Stationen zur U6 und der S-Bahn in Floridsdorf sowie in acht Stationen zur U1 in Kagran, von wo aus Sie direkten Zugang zum DONAUZENTRUM, einem beliebten Einkaufs- und Freizeitbereich, haben. Die Linie verläuft zudem bis zur Stadtgrenze nach Strebersdorf und führt in eine landschaftlich schöne Region. Auch die S-Bahn-Station Jedlersdorf ist in weniger als zehn Minuten zu Fuß erreichbar, wo die Linien S3, S4 und S7 halten.
Dank der zentralen Lage an der gut frequentierten Prager Straße profitieren die Bewohner von einer ausgezeichneten Infrastruktur und umfangreichen Einkaufsmöglichkeiten. Direkt gegenüber befindet sich ein BILLA, während auch eine Apotheke, verschiedene Werkstätten und zahlreiche Restaurants schnell zu erreichen sind. Für größere Einkäufe bietet sich das Shopping Center Nord an, das nur zwei Busstationen entfernt liegt.
Für Aktivitäten im Freien bieten sich die nahegelegene Lorettowiese - mit einer Fläche von rund 4 Fußballfeldern - sowie der angrenzende Aupark Jedlesee an. Diese bieten zahlreiche Freizeitmöglichkeiten wie einen Abenteuerspielplatz, einen Skaterpark, Sitzgelegenheiten, Beachvolleyballplatz, Fußballplatz und eine Hundezone. Auch die Neue Donau mit ihren Grillplätzen und ausgedehnten Radwegen ist schnell erreichbar.
Das Gebäude selbst zeichnet sich durch moderne Architektur und eine hochwertige Ausstattung aus. Es wurden großzügige Allgemeinflächen sowie effiziente Energiesparmaßnahmen berücksichtigt. Beheizt wird die Anlage mittels effizienter Fernwärme über Heizkörper. In den beiden begrünten Innenhöfen befinden sich Spielgeräte für Kinder. Jede Wohnung verfügt über ein Kellerabteil als zusätzlichen Stauraum sowie Zugang zu einem Fahrrad- und Kinderwagenabstellraum. Stellplätze in der hauseigenen Tiefgarage können optional angemietet werden.
Die Wohnungen bieten eine hohe Lebensqualität dank durchdachter Grundrisse und hochwertiger Ausstattung. In den Wohnbereichen wurde edler Eichenholzparkett verlegt, und die offenen Wohnküchen sind mit modernen Einbauküchen und Elektrogeräten ausgestattet. Die Fenster sind mit außenliegendem Sonnenschutz versehen, der über eine Kurbel bedient wird. Die Badezimmer sind mit weißen Fliesen ausgestattet und verfügen über einen Waschmaschinenanschluss, einen Spiegel, ein Spülbecken sowie einen Handtuchheizkörper. Je nach Wohnung ist entweder eine Badewanne oder eine Duschkabine integriert. Ein weiteres Highlight ist die Sprechanlage mit Kamera-Display in jeder Wohnung.
Die Wohnungen werden mit einer Befristung auf 5 Jahre vermietet.
Highlights:
* Hervorragende Infrastruktur in unmittelbarer Umgebung: BILLA gegenüber, Apotheke in Gehweite, Restaurants, Kindergärten und Schulen
* Shopping Center Nord in nur einer Busstation erreichbar
* Begrünter Innenhof mit Spielplatz
* Fahrradraum, Kinderwagenraum und Kellerabteile verfügbar
* Straßenbahnlinie 26 in 2 Gehminuten erreichbar
* 8 Straßenbahn-Stationen zur U1 Kagran und DONAUZENTRUM
* S-Bahn Jedlersdorf in Gehweite
* Nur 4 Straßenbahn-Stationen zur U6 und S-Bahn Floridsdorf
* Naherholungsgebiete Lorettowiese und Aupark Jedlesee in Gehweite
* Tiefgarage mit optionalen Stellplätzen
* Postboxen vorhanden
Ausstattungsstandard:
* Einbauküche mit Elektrogeräten inklusive
* Außenbeschattung an den Fenstern
* Moderner Neubau
* Eichenparkettboden
* Fernwärme-Heizung
Wohnung Stiege 4 Top 52:
Die 2-Zimmer-Wohnung befindet sich im 4. Obergeschoss und punktet mit ihrer attraktiven Südost-Ausrichtung. Ein großzügiger Balkon sowie eine zusätzliche Loggia bieten angenehme Freiflächen zum Entspannen.
Vom Vorraum aus erreicht man den praktischen Abstellraum sowie das helle Wohnzimmer mit Kochnische, das als zentraler Wohnbereich dient. Das gemütliche Schlafzimmer bietet ausreichend Platz für Ruhe und Erholung.
Das Badezimmer mit WC ist funktional ausgestattet und verfügt über eine Badewanne, ein Handwaschbecken sowie einen Waschmaschinenanschluss, wodurch zusätzlicher Wohnkomfort geschaffen wird.
Die angebotene Wohnung ist verfügbar ab 01.06.2026.
Einige Bilder des Inserats wurden zum Zweck der besseren Visualisierung digital mit KI möbliert. Die Wohnung wird unmöbliert übergeben.
Kostenübersicht
Der monatliche Mietpreis inklusive Betriebskosten und USt. beläuft sich auf € 920,68.
* Kaution: 3 Bruttomonatsmieten
* Provision: keine
Der angegebene Mietpreis versteht sich als Bruttokaltmiete, Energiekosten wie für Heizung, Warmwasser und Strom sind somit nicht inkludiert und fallen gesondert, basierend auf Ihrem Verbrauch, an.
Bei Bedarf besteht auch die Möglichkeit einen Stellplatz in der hauseigenen Tiefgarage anzumieten.
Der Mietpreis für den PKW-Stellplatz beläuft sich auf 115 Euro (inkl. BK und USt.).
Infrastruktur:
In wenigen Gehminuten erreichen Sie die Straßenbahnlinie 26, die die Bezirke 21 und 22 miteinander verbindet. In nur vier Stationen gelangen Sie zur U6 und zur S-Bahn in Floridsdorf, während es nur acht Stationen bis zur U-Bahn U1 Kagran sind - dem Tor zu einem Shopping- und Entertainmentparadies im DONAUZENTRUM! Die S-Bahn-Station Jedlersdorf ist ebenfalls fußläufig erreichbar, und in weniger als zehn Minuten stehen Ihnen die Linien S3, S4 und S7 zur Verfügung.
Die Lage an der Prager Straße bietet Ihnen eine ausgezeichnete Nahversorgung. Praktisch direkt vor der Tür finden Sie einen BILLA, eine Apotheke (nur 250 m entfernt), zahlreiche Werkstätten und ein vielfältiges Gastronomieangebot. Für ausgiebige Shoppingtouren ist das Shopping-Center-Nord, nur zwei Busstationen entfernt, ideal. Für Freizeitaktivitäten und Erholung laden die nahegelegene Lorettowiese, die sich über vier Fußballfelder erstreckt, sowie der angrenzende Aupark Jedlesee ein. Hier erwarten Sie ein Abenteuerspielplatz, ein Skaterpark, Beachvolleyballplätze und viele Grünflächen. Fußballbegeisterte können sich zudem auf den SC Columbia Floridsdorf und den FAC-Platz freuen. Auch die Neue Donau mit ihren Grillplätzen und Radwegen ist schnell erreicht.
Energieausweis:
Der Referenz-Heizwärmebedarf beträgt 30,49 kWh/m²a und entspricht somit der Klasse B.
Der fGEE beträgt 0,83 und entspricht somit sogar der Klasse A.
Für Fragen bzw. Besichtigungen steht Ihnen Herr Stefan Djukic sehr gerne unter 0664 536 84 47 oder via E-Mail unter Djukic@teamneunzehn.at zur Verfügung.
Wir weisen darauf hin, dass zwischen dem Vermittler und dem zu vermittelnden Dritten ein familiäres oder wirtschaftliches Naheverhältnis besteht.
Der Immobilienmakler erklärt, dass er - entgegen dem in der Immobilienwirtschaft üblichen Geschäftsgebrauch des Doppelmaklers - einseitig nur für den Vermieter tätig ist.
"Leben braucht Raum" * T19-RE Real Estate GmbH & Co KG * www.teamneunzehn.at [https://www.teamneunzehn.at]
Doppelmakler
Wir werden als Immobilienmakler kraft bestehenden Geschäftsgebrauchs als Doppelmakler tätig und haben sohin beide Seiten des Vertrages (Verkäufer-Käufer, Vermieter-Mieter) zu unterstützen.
Wirtschaftliches Naheverhältnis
Es wird bekannt gegeben, dass folgendes wirtschaftliches Naheverhältnis zwischen der teamneunzehn-Gruppe und dem Verkäufer/der vermietenden Partei besteht: ständige und dauerhafte Beauftragung mit der Vermittlung des bestehenden Immobilienportfolios
Haftungserklärung zum Inserat
Irrtum und Änderungen vorbehalten! Sofern es sich bei Bildern um Visualisierungen handelt, können Abänderungen zur tatsächlichen Ausführung resultieren. Wir weisen ausdrücklich darauf hin, dass das auf Fotos oder Visualisierungen ersichtliche Mobiliar bzw. Inventar nicht Bestandteil des inserierten Preises ist.
Infrastruktur / Entfernungen
Gesundheit
Arzt <100m
Apotheke <300m
Klinik <1.225m
Krankenhaus <1.250m
Kinder & Schulen
Schule <325m
Kindergarten <100m
Universität <2.025m
Höhere Schule <1.100m
Nahversorgung
Supermarkt <125m
Bäckerei <225m
Einkaufszentrum <675m
Sonstige
Geldautomat <925m
Bank <925m
Post <425m
Polizei <1.125m
Verkehr
Bus <200m
U-Bahn <1.625m
Straßenbahn <200m
Bahnhof <550m
Autobahnanschluss <550m
Angaben Entfernung Luftlinie / Quelle: OpenStreetMap
Merkmale
- frei ab 01.06.2026
- 4. Geschoss
- Personenaufzug
- Einbauküche
- Badewanne
- Bodenbelag: Fliesen, Parkett
- Balkon
- Loggia
Grundrisse
Grundrisse
1 / 1
Realisiere Dein Projekt
Bausubstanz und Energie
Heizwärmebedarf (HWB)
B
Gesamtenergieeffizienz (fGEE)
A
- Baujahr2019
- Zustand der ImmobilieNeubau, neuwertig
- EnergieträgerFernwärme
Mietkosten
Gesamtmiete
920,69 €
Nettokaltmiete
18,09 €/m²
668,46 €
Betriebskosten
168,53 €
Kaution
3 Bruttomonatsmieten
Weitere Preisinformationen
Nettokaltmiete: 668,46 EUR
Lage

Prager Straße 105 + 109, Wien (1210)
Nähe: Prager Straße, Anton-Bosch-Gasse, Deublergasse, FAC Platz, Lorettowiese, Aupark Jedlesee, Neue Donau, S-Bahn Jedlersdorf, Straßenbahn Linie 26 Hopfengasse
Weitere Informationen
Stichworte
Tiefgarage vorhanden, Süd-Ost-Balkon/Terrasse, Fahrradraum, Rolladen, Nutzfläche: 58,47 m², Gesamtfläche: 58,47 m², Freifläche: 12,20 m², Anzahl der Badezimmer: 1, Anzahl der separaten WCs: 1, Anzahl Balkone: 1, Anzahl Loggias: 1, Balkon-Terrassen-Fläche: 12,20 m², Bundesland: Wien, 6 Etagen, Wohnungsnr.: 52
Weitere Services
Lust auf eine Besichtigung?
Eine Frage zur Immobilie?
Über den Anbieter
team19 Immobilien GmbHMaklerbüro
Handelskai 94-96/21. Stock, 1200 BRIGITTENAU
Partnerschaft
Herr Stefan DjukicDein Kontakt
Online-ID: 26L6PKXADFX3
Referenznummer: OBGC20260317150826358e59540fdcb
Wie zufrieden bist du mit dieser Seite (nicht mit der Immobilie selbst)?


