Version: 8.26.0Navigation überspringen
Mietkosten auf Anfrage
1.500 m² Bürofläche  •  teilbar von 150 m² bis 750 m²
Immowelt logo

Büro zur Miete - Erstbezug
Mietkosten auf Anfrage
1.500 m² Bürofläche  •  teilbar von 150 m² bis 750 m²

NEUBAU - Projektierte Büro-/Praxis-/Dienstleistungsfläche in Margetshöchheim ab 2027

Objektbeschreibung PROJEKTIERTE BÜRO-/PRAXIS-/DIENSTLEISTUNGSFLÄCHE
IN STARK FREQUENTIERTER SICHTLAGE IN MARGETSHÖCHHEIM
(EG, 1. + 2. OG möglich)

Hier entsteht eine moderne und flexible Gewerbefläche, die individuell nach Mieterwunsch gestaltet wird. Die Flächen eignen sich ideal für Büro-, Praxis- oder Dienstleistungsnutzungen und bieten Sichtbarkeit sowie hervorragende Erreichbarkeit.

Eckdaten im Überblick:
Fläche: ca. 150 m² bis ca. 800 m² – flexible Aufteilung nach Bedarf
Parkplätze sind ausreichend direkt am Objekt auf dem Grundstück vorhanden.
Die Baufertigstellung ist für 2027 geplant.
Der Vermieter zielt eine langfristige Vermietung mit Mietverträgen von 10 bzw. 15 Jahren Laufzeit an zzgl. Verlängerungsoption.
Der Mietpreis ist auf Anfrage und abhängig von der Größe der angemieteten Fläche, Nutzung und Ausstattungswünschen.

Die Flächen werden nach den individuellen Anforderungen der Mieter aufgeteilt und ausgebaut. Auf Wunsch können getrennte Sanitäreinheiten sowie eine Küche integriert werden. Damit entsteht eine maßgeschneiderte Lösung für Ihren Geschäftsbetrieb.

Besonderheiten:
Individuelle Planung & Ausführung
Attraktive Architektur & moderne Haustechnik
Perfekt für Büroräume, Ärzte, Dienstleister, Agenturen oder Kanzleien

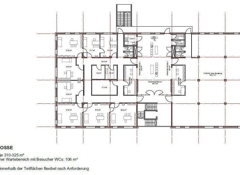
Energieausweis wird nachgereicht nach Fertigstellung des Objektes Raumaufteilung Grundriss als Beispielplanung des Architekten für EG, 1. oder 2. Obergeschoss als Anlage vorhanden
Nutzen Sie die Möglichkeit, bei der Raumaufteilung selbst entscheiden zu können, wie Sie diese wünschen. Die Flächen können nach Ihren individuellen Anforderungen ausgebaut werden.

Im Erdgeschoss stehen noch ca. 550 m² zur Verfügung.
Im Obergeschoss sind zum Beispiel zwei Arztpraxen pro Geschoss denkbar mit je
310-325 m² zuzügl. dem gemeinschaftlichen Wartebereich mit Besucher WCs von ca. 106 m².
Raumaufteilung innerhalb der Teilflächen flexibel nach Anforderung.

Man könnte das Obergeschoss aber auch als eine Fläche von ca. 750 m² nutzen oder zusätzlich noch Teile von Erdgeschoss und/oder vom zweiten Obergeschoss dazu nehmen. Momentan stehen Ihnen noch alle Optionen zur Verfügung.

Merkmale

  • Bezug: ab Baufertigstellung, 2027
  • Teeküche
  • Personenaufzug
  • Außen-Stellplatz

Grundrisse

Grundrisse
1 / 2

Bausubstanz und Energie

Möchtest du Details zum Energieverbrauch?info_energy_calculation-icon
  • Baujahr2026
  • Zustand der ImmobilieNeubau, Erstbezug
Immowelt logo

Mietkosten

Miete auf Anfrage
Provision für Mieter
3,57 Monatskaltmieten inkl. 19 % MWSt.
Kaution
3 Monatskaltmieten bzw. nach Absprache

Lage

address-icon
Margetshöchheim (97276)
Der Anbieter hat die genaue Adresse nicht freigegeben
Der Neubau liegt in Margetshöcheim nahe der Staatsstraße, ca. sieben Kilometer nördlich von Würzburg.
Der Ort ist über mehrere Buslinien gut angebunden.
Bis zur Würzburger Stadtgrenze sind es ca. 5 km. Mit dem Auto erreichen Sie die Würzburger Innenstadt in bequemen 15 Fahrminuten.
Auf die A3+A7 kommen Sie über die Anschlussstellen in Würzburg, diese sind ca. 15 km entfernt.

Weitere Informationen

Besichtigungstermine Haben wir Ihr Interesse geweckt?
Dann zögern Sie nicht und kontaktieren Sie uns gleich unter 0931-452700 oder per E-Mail unter info[at]auinger-immobilien.de

Bitte beachten Sie, dass wir nur Anfragen beantworten können, bei denen uns Name und Anschrift inklusive Telefonnummer des Interessenten vorliegen.

Wir freuen uns von Ihnen zu hören! Haftungsausschluss Die in diesem Inserat getroffenen Aussagen über Lage, Beschaffenheit, Größe und Konditionen der Immobilie bzw. des Grundstückes sind Ca.-Werte und erfolgen nach bestem Wissen und Gewissen. Die Informationen werden Auinger & Partner Gewerbe-Immobilien von Dritten übermittelt und sorgfältig aufbereitet. Auinger & Partner Gewerbe-Immobilien haftet nicht für die Richtigkeit bzw. die Vollständigkeit und Aktualität dieser Informationen. Gleiches gilt für die beigefügten Anlagen. Abweichungen der vorgenannten Angaben, Irrtum, Zwischenvermietung und Zwischenverkauf bleiben vorbehalten. Die Inserate erfolgen freibleibend und unverbindlich. Stichworte Sonstiges: Getrennte Damen- und Herren-WCs

Weitere Services

Lust auf eine Besichtigung?
Eine Frage zur Immobilie?
Mit einer persönlichen Nachricht hast du bessere Chancen auf eine Antwort.
Mit der Nutzung der oben angegebenen Telefonnummer oder durch Klicken auf „Kontaktieren“ akzeptierst Du die Allgemeinen Nutzungsbedingungen, denen Du jederzeit widersprechen kannst. Weitere Informationen zum Datenschutz

Über den Anbieter

Theaterstraße 1-3, 97070 Würzburg
partner badge
10 Jahre Partnerschaft
Herr Bernd Auinger ============ Auinger & Partner Gewerbe-ImmobilienDein Kontakt

Weitere Unterlagen

Online-ID: 25MBZ12533VL
Referenznummer: Büro/PraxisM-4-
Wie zufrieden bist du mit dieser Seite (nicht mit der Immobilie selbst)?