Version: 8.22.6Navigation überspringen
2.098.910 €
818 m²  •  543 m² Grundstück
Immowelt logo

Sonstiges zum Kauf • als Kapitalanlage geeignet
2098910 €
818 m²  •  543 m² Grundstück

Büro-Zinshaus am Rathausplatz - Umbau zu Wohnungen & DG-Ausbau & Bestandsfreiheit möglich

Dieses denkmalgeschützte Zinshaus wurde 1892 mit herrschaftlichen Raumhöhen errichtet, befindet sich in sehr gutem Zustand, liegt zentral am Rathausplatz in Stockerau und wird derzeit als Büro genutzt. 

Nutzfläche Bestand:
ca. 560 m2

Keller (Technik + Archiv):
ca. 100 m2

Flächenpotential Dachgeschoß lt. Studie
ca. 258 m2

Raumhöhen
bis 4,15 m

Auf Anfrage übermitteln wir Ihnen ein Raumbuch mit einer detaillierten Flächenaufstellung und die Studie für den DG-Ausbau.

* Rückbau zu Wohnungen möglich (Wohnungseigentum ist begründet)
* Büronutzung weiterhin möglich
* DG-Ausbau möglich (Studie vorhanden)
* Derzeit vermietet: HMZ € 141.170,-- p.a.
* Bestandsfreiheit möglich

Gem. § 8 (2) EStG können Aufwendungen im Sinne der Denkmalpflege mit einer beschleunigten AfA von 10 % abgeschrieben werden. 

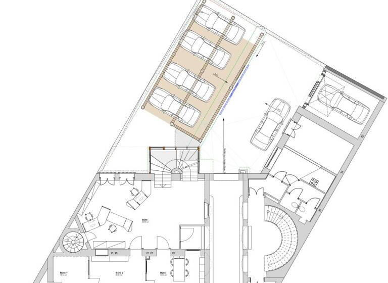
Das Eingangstor führt in die Durchfahrt. Links angeordnet ist der derzeitige Büro-Haupteingang. Rechts angeordnet ist ein Aufenthaltsraum mit Teeküche und Nassräumen und das halbovale Stiegenhaus, von welchem damals Wohnungen im OG erschlossen wurden. Die Büroflächen verteilen sich auf das Hochparterre, das Zwischengeschoß und das OG. Das OG verfügt ebenfalls über eine Teeküche und mehrere Nassräume. 

ENTWICKLUNGSIDEEN:

* Die enorme Raumhöhe eröffnet Entwicklungsmöglichkeiten: z.B. Luxuriöse Lofts mit Hänge-Elementen oder Bibliothektswänden mit Galerien oder Wohnungen mit Schlafgalerien, usw.
* Weitere Nutzung als Büro + DG-Ausbau mit Penthouse für Geschäftsführung oder für weitere Büroflächen
* Große Flexibilität bei der Nutzungsidee aufgrund der Kerngebiet-Widmung

PARKPLÄTZE:

Auf der Liegenschaft befinden sich 4 überdachte Kfz-Stellplätze und eine Garage - beides derzeit als Lagerfläche genutzt. Alternativ dazu können dauerhaft bis zu 23 Kfz-Stellplätze auf der Nachbarliegenschaft angemietet werden. Grundsätzlich können Bewohner eine Parkkarte für die öffentlichen Kfz-Stellplätze am Rathausplatz beantragen.

WIDMUNG UND BEBAUUNGSPLAN:

* Bauland-Kerngebiet
* 80 % bebaubar, geschlossene Bauweise, Bauklasse II bis III

KAUFPREIS:

Die Immobilie wird klassisch im 100%-Eigentum (Grund & Gebäude) als Asset-Deal angeboten. 

Der Kaufpreis versteht sich als Nettokaufpreis zzgl. 20 % USt. Auf Anfrage geben wir gerne den unecht steuerbefreiten Kaufpreis bekannt. 

Optional: Alternativ ist auch ein Erwerb im Baurecht mit einer Laufzeit von 99 Jahren möglich. Dabei wird nur das Gebäude verkauft und der Grund verbleibt im Eigentum des Verkäufers. Dies hätte zur Folge, dass bei der AfA kein Grundanteil ausgeschieden werden muss und somit 100% abgeschrieben werden können. Details erläutern wir gerne in einem persönlichen Termin. 

 

Wir weisen darauf hin, dass zwischen dem Vermittler und dem zu vermittelnden Dritten ein familiäres oder wirtschaftliches Naheverhältnis besteht.

Der Vermittler ist als Doppelmakler tätig.

Infrastruktur / Entfernungen

Gesundheit
Arzt <150m
Apotheke <100m
Klinik <8.350m
Krankenhaus <325m

Kinder & Schulen
Kindergarten <650m
Schule <450m
Universität <8.975m

Nahversorgung
Supermarkt <325m
Bäckerei <75m

Sonstige
Bank <75m
Geldautomat <75m
Post <350m
Polizei <100m

Verkehr
Bus <75m
Autobahnanschluss <500m
Bahnhof <500m
Flughafen <3.025m

Angaben Entfernung Luftlinie / Quelle: OpenStreetMap

Merkmale

  • 543 m² Grundstück

Grundrisse

Grundrisse
1 / 3

Realisiere Dein Projekt

Bausubstanz und Energie

Heizwärmebedarf (HWB)

E

Gesamtenergieeffizienz (fGEE)

D
  • Baujahr1892
  • Zustand der ImmobilieGepflegt
Immowelt logo

Preisdetails

Kaufpreis
2098910 €
Provision für Käufer
3% des Kaufpreises zzgl. 20% USt.

Lage

address-icon
Rathausplatz 14Stockerau (2000)

Weitere Informationen

Stichworte Nutzfläche: 818,00 m², Kellerfläche: 100,30 m², Bundesland: Niederösterreich, 3 Etagen

Weitere Services

Lust auf eine Besichtigung?
Eine Frage zur Immobilie?
Nachricht hinzufügen
Mit der Nutzung der oben angegebenen Telefonnummer oder durch Klicken auf „Kontaktieren“ akzeptierst Du die Allgemeinen Nutzungsbedingungen, denen Du jederzeit widersprechen kannst. Weitere Informationen zum Datenschutz

Über den Anbieter

Rathausplatz 14, 2000 STOCKERAU
partner badge
Partnerschaft
Herr Gregor WaltnerDein Kontakt

Weitere Unterlagen

Online-ID: 2kflk5l
Referenznummer: OBGC202506111430298209c24deb52e
Fortuna Real GmbH
Nachricht hinzufügen
Mit der Nutzung der oben angegebenen Telefonnummer oder durch Klicken auf „Kontaktieren“ akzeptierst Du die Allgemeinen Nutzungsbedingungen, denen Du jederzeit widersprechen kannst. Weitere Informationen zum Datenschutz
Wie zufrieden bist du mit dieser Seite (nicht mit der Immobilie selbst)?