Version: 8.22.5Navigation überspringen
Garant Immobilien GmbH Büro Bad Reichenhall
1.990.000 €
649 m² Bürofläche

Bürogebäude zum Kauf
1990000 €
649 m² Bürofläche

Steuerberater/Anwälte/ITler aufgepasst! High-End-Büroflächen in Fürstenzell!

Verkauft wird ein 2012 erbautes, modernes und extrem stylisches Bürogebäude mit ca. 650 qm Büro-/Lagerfläche auf einem ca. 1.689 qm großen Grundstück mit bester Anbindung an den Markt Fürstenzell und Richtung Passau. Sowohl optisch als auch technisch bleiben hier keine Wünsche offen - neueste Technik trifft auf guten Geschmack und auf Liebe zum Detail! Verteilt auf zwei Ebenen derzeit sieben exquisite Büros, großer Besprechungsraum, Personal-WCs, zwei Teeküchen, Lagerflächen sowie ein repräsentatives Entrée. Eine vielfältige Nutzung sowohl für einen reinen Bürobetrieb als auch für produzierendes Gewerbe oder Lagerhaltung ist hier denkbar und ohne große Umbauten realisierbar. Das ca. 1.689 qm große Grundstück ist leicht zu pflegen und verfügt über einen angenehm gestalteten Chill- und Ruhebereich mit kleinem Biotop. Eine kurzfristige Übernahme ist nach Absprache möglich.



Weitere Angebote unter www.GARANT-IMMO.de

Merkmale

  • Bezug: nach Absprache
  • voll klimatisiert
  • Bodenbelag: Fliesen
- exklusives Interieur
- Technik neuester Stand - eigenes Netzwerk
- Heiztechnik und Gebäudeklimatisierung mittels Luft-Wärmepumpen
- zusätzlich modern gestylter Kamin mit Sichtfenster
im Erdgeschoss
- großformatige Bodenfliesen
- elektrisch gesteuerte Raffstores
- 3-fach-Verglasung
- Aluminiumfenster anthrazit
- High-End-Beleuchtungskonzept
- Schallabsorbierende Deckenpaneele in den Büros
- moderne Büroflächengestaltung mit viel Glas/flexible Varianten
- Lagerflächen vorhanden - könnten ebenfalls ohne großen Aufwand
als Büros umgestaltet werden
- Personal-WCs und Küchen auf beiden Ebenen
- Doppelcarport und ca. 10+ Außenstellplätze für Mitarbeiter
und Kunden
- Lieferbereich ebenerdig
- ansprechend gestalteter Außenpausenbereich für Personal


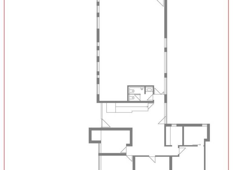
Grundrisse

Grundrisse
1 / 2

Realisiere Dein Projekt

Bausubstanz und Energie

Energieausweis

Endenergieverbrauch (Wärme)

Endenergieverbrauch (Strom)

  • Baujahr2012
  • Zustand der Immobilieneuwertig
  • EnergieträgerElektro
MediumRectangleTop

Preisdetails

Kaufpreis
1990000 €
Provision für Käufer
3,57 % (inkl. MwSt.) inkl. MwSt.
Die Maklercourtage für den Käufer beträgt 3 % aus dem Kaufpreis zuzüglich der gesetzlichen MwSt., somit gesamt 3,57 %.
Geschätzte Gesamtkosten
2.061.043 €1
Kaufpreis
1.990.000 €
Provision für Käufer (3,57%)
71.043 €
1Der angezeigte Wert ist eine automatisch berechnete Schätzung von immowelt.
2Bei den Angaben handelt es sich um ortsübliche Werte. Individuelle Kosten können abweichen.

Lage

address-icon
Fürstenzell (94081)
Der Anbieter hat die genaue Adresse nicht freigegeben
Markt Fürstenzell, am Ortsrand innerhalb eines beliebten Gewerbegebietes mit sehr guter Anbindung an den Ort und vor allem auch Richtung Passau und Autobahn A3. Gute Sichtbarkeit von der nahen Gemeindeverbindungsstraße.

Weitere Informationen

Sonstiges Energieverbrauchsausweis
Energiekennwert: Strom 19,10 kWh/(qm*a), Wärme 27,50 kWh/(qm*a)
Heizung: Elektro-Heizung mit Strom
Baujahr laut Energieausweis: 2012 Stichworte Grundstücksfläche: 1.689,00 m², 2 Etagen Sonstiges: EDV-Verkabelung

Weitere Services

Lust auf eine Besichtigung?
Eine Frage zur Immobilie?
Nachricht hinzufügen
Mit der Nutzung der oben angegebenen Telefonnummer oder durch Klicken auf „Kontaktieren“ akzeptierst Du die Allgemeinen Nutzungsbedingungen, denen Du jederzeit widersprechen kannst. Weitere Informationen zum Datenschutz

Über den Anbieter

Kaiserplatz 1, 83435 Bad Reichenhall
Büro PassauDein Kontakt
Online-ID: 2mn365g
Referenznummer: 869.052
Garant Immobilien GmbH Büro Bad Reichenhall
Garant Immobilien GmbH Büro Bad Reichenhall
Bewertung: 4,2 von 5 Sternen
Nachricht hinzufügen
Mit der Nutzung der oben angegebenen Telefonnummer oder durch Klicken auf „Kontaktieren“ akzeptierst Du die Allgemeinen Nutzungsbedingungen, denen Du jederzeit widersprechen kannst. Weitere Informationen zum Datenschutz
MediumRectangleTop
MediumRectangleBottom
MediumRectangleTop
Wie zufrieden bist du mit dieser Seite (nicht mit der Immobilie selbst)?