Version: 8.25.1Navigation überspringen
5.000 €
Immowelt logo

Praxisfläche zur Miete
5.000 €

Ordination / Praxisfläche - ca. 380 m² - Hauptplatz Tulln - barrierefrei mit Lift

Am Hauptplatz 14a in 3430 Tulln an der Donau gelangt eine großzügige Ordinations- oder Praxisfläche mit ca. 380 m² im 1. Obergeschoss zur Vermietung.

Die Fläche wird derzeit umfassend renoviert und kann in Abstimmung mit dem zukünftigen Mieter adaptiert werden. Durch die großzügige Raumhöhe von rund 3 Metern, den barrierefreien Zugang mittels Lift sowie die zentrale Lage eignet sich das Objekt ideal für Fachärzte oder eine Gruppenordination.

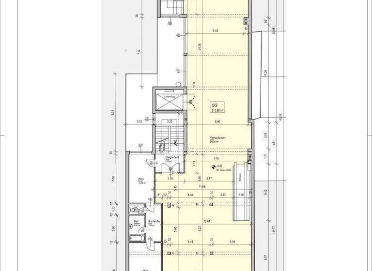
FLÄCHENAUFTEILUNG

*
große Praxis- bzw. Behandlungsfläche ca. 316 m²

*
2 Büroräume

*
Garderobe

*
Bad

*
separates WC

*
Nebenflächen

HIGHLIGHTS

*
Toplage direkt am Hauptplatz von Tulln

*
ca. 380 m² Nutzfläche

*
barrierefrei mit Lift

*
derzeit in Renovierung

*
Raumhöhe ca. 3 m

*
flexible Gestaltung für Ordination oder medizinisches Zentrum

MIETKONDITIONEN

Miete: ca. € 5.000 Netto / Monat
Betriebskosten und USt. zusätzlich.

KONTAKT

Bereswill Immobilien GmbH
Wiener Straße 6-8, 3430 Tulln

Udo Bereswill
Tel.: 0664 877 5410

Der Vermittler ist als Doppelmakler tätig.

Infrastruktur / Entfernungen

Gesundheit
Arzt <500m
Apotheke <500m
Klinik <6.000m
Krankenhaus <1.500m

Kinder & Schulen
Schule <500m
Kindergarten <500m
Universität <2.000m
Höhere Schule <1.500m

Nahversorgung
Supermarkt <500m
Bäckerei <500m
Einkaufszentrum <500m

Sonstige
Bank <500m
Geldautomat <500m
Post <500m
Polizei <500m

Verkehr
Bus <500m
Bahnhof <500m
Autobahnanschluss <4.000m
Flughafen <5.500m

Angaben Entfernung Luftlinie / Quelle: OpenStreetMap

Grundrisse

Grundrisse
1 / 1

Realisiere Dein Projekt

Bausubstanz und Energie

Heizwärmebedarf (HWB)

C

Gesamtenergieeffizienz (fGEE)

Der Anbieter hat keine Daten zum Energieausweis hinterlegt.
Immowelt logo

Mietkosten

Nettokaltmiete zzgl. Betriebskosten
5.000 €
Provision für Mieter
3 Bruttomonatsmieten zzgl. 20% USt.
Kaution
3 Bruttomonatsmieten
Weitere Preisinformationen
Nettokaltmiete: 5.000,00 EUR

Lage

address-icon
Tulln an der Donau (3430)
Die Ordinationsfläche befindet sich in zentraler Bestlage am Hauptplatz in Tulln an der Donau, einer der wichtigsten und frequentiertesten Lagen der Stadt.

Der Hauptplatz bildet das wirtschaftliche und gesellschaftliche Zentrum von Tulln und ist von zahlreichen Geschäften, Dienstleistungsbetrieben, Gastronomiebetrieben sowie medizinischen Einrichtungen umgeben. Dadurch ist eine sehr gute Sichtbarkeit und Erreichbarkeit für Patienten gewährleistet.

Die Umgebung bietet eine ausgezeichnete Infrastruktur mit Apotheken, Banken, Restaurants und Einkaufsmöglichkeiten in unmittelbarer Nähe.

Weitere Informationen

Stichworte Nutzfläche: 380,00 m², Bundesland: Niederösterreich

Weitere Services

Lust auf eine Besichtigung?
Eine Frage zur Immobilie?
Nachricht hinzufügen
Mit der Nutzung der oben angegebenen Telefonnummer oder durch Klicken auf „Kontaktieren“ akzeptierst Du die Allgemeinen Nutzungsbedingungen, denen Du jederzeit widersprechen kannst. Weitere Informationen zum Datenschutz

Über den Anbieter

Wiener Straße 6-8 / 1 / 2, 3430 TULLN AN DER DONAU
partner badge
Partnerschaft
Herr Udo BereswillDein Kontakt
Online-ID: 26JG1HX9S6RT
Referenznummer: OBGC2026030914145126474fc932282
Bereswill Immobilien GmbH
Bereswill Immobilien GmbH
Bewertung: 1,5 von 5 Sternen
Nachricht hinzufügen
Mit der Nutzung der oben angegebenen Telefonnummer oder durch Klicken auf „Kontaktieren“ akzeptierst Du die Allgemeinen Nutzungsbedingungen, denen Du jederzeit widersprechen kannst. Weitere Informationen zum Datenschutz
Wie zufrieden bist du mit dieser Seite (nicht mit der Immobilie selbst)?