




1 / 26



1 / 26

Einfamilienhaus zum Kauf - Erstbezug1698000 €1.698.000 €12.628 €/m²3 Zimmer • 134,5 m² • 493,9 m² Grundstück
1698000 €1.698.000 €
12.628 €/m²
3 Zimmer • 134,5 m² • 493,9 m² Grundstück
Die unvergleichbare Panoramasuite mit goldener Aussicht auf den Traunsee - Residenz Traunsteinblick P1
Nur selten verschmelzen Natur, Exklusivität und architektonische Vollkommenheit zu einem Wohntraum, der so viel mehr ist als eine Immobilie:
In privilegierter Panoramalage am Traunsteinblick 5 in Altmünster, eingebettet zwischen Wald und See, entsteht mit dem Projekt Residenz Traunsteinblick ein Neubau, der das Wort "Einmaligkeit" neu definiert.
Und inmitten dieses Ensembles liegt die vielleicht begehrteste Einheit:
Die unvergleichbare Panoramasuite mit goldener Aussicht auf den Traunsee - ein Ort, der nicht erklärt werden muss, sondern gespürt werden will.
Diese Panoramasuite ist nicht irgendein Zuhause - sondern eine einmalige Chance für jene, die das Unvergleichliche suchen. Denn eine Immobilie, die Luxus, Naturverbundenheit, architektonische Klarheit und einen unverbaubaren Panoramablick in dieser Form vereint, ist in dieser Region einzigartig - und wird es so kein zweites Mal mehr geben.
ARCHITEKTUR & AUSSTATTUNG
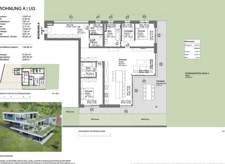
- 134,46?m² lichtdurchfluteter Wohnfläche
- Großzügigem Wohn-Essbereich (60,93?m²) mit klaren Linien und viel Offenheit
- Zwei Schlafzimmer, jeweils mit eigenem Bad, eines davon mit Ankleide
- Zwei edlen Bäder, ausgestattet mit hochwertigen Marken-Sanitärprodukten
- Drei WCs: jeweils eines in den beiden Badezimmern sowie ein separates Gäste-WC
- Panoramaterrasse mit 51,64?m², ganztägig besonnt
- Privatem Eigengarten mit 307,83?m² (nach Absprache mit Pool)
- Komfortabler Liftzugang auf die Wohnebene
- Fußbodenheizung & Deckenkühlung
- Luftwärmepumpe und Photovoltaikanlage für nachhaltige Energieversorgung
- Batteriespeicher mit ca. 15 kWh
- E-Ladestation vorbereitet
- Doppelgarage direkt vor der Haustüre - über Privatstraße erreichbar
- Kellerabteil (8,65?m²) im Untergeschoss
- Vollintegriertes Loxone Smart Home System
- Barrierefreie Ausführung
- Hochwertige, regionale Bauqualität - ausgeführt durch ein renommiertes Bauunternehmen aus der Region
- Gestaltungsspielraum in der finalen Ausführung - bei rechtzeitiger Kaufentscheidung besteht die Möglichkeit, Materialien, Ausstattung und sogar den Grundriss nach individuellen Wünschen mitzugestalten
?? Alle weiterführenden Details zur Ausstattung, Bauqualität und Grundrissgestaltung finden Sie im ausführlichen Exposé. Für weiterführende Fragen oder persönliche Anliegen sind wir jederzeit gerne für Sie erreichbar - telefonisch, per Mail oder im direkten Gespräch.
Die gesamte Abwicklung des Projekts erfolgt nach den Bestimmungen des Bauträgervertragsgesetzes (BTVG).
Damit genießen Käufer größtmögliche rechtliche Sicherheit - von der Vertragsunterzeichnung bis zur Übergabe.
Darüber hinaus wird das Projekt von der Abwerzger Bau GmbH realisiert - einem regional etablierten Bauträger, der bereits mehrere hochwertige Neubauten im Salzkammergut erfolgreich umgesetzt hat.
LAGE
Der Traunsee zählt längst zu den elegantesten Rückzugsorten Österreichs - ein Ort, der seit Generationen Menschen mit einem feinen Gespür für Lebensqualität, Ästhetik und Entschleunigung in seinen Bann zieht.
Altmünster, am westlichen Ufer gelegen, ist dabei so etwas wie der versteckte Juwel dieser Region. Authentisch, gepflegt, mit einer natürlichen Gelassenheit - und einem der spektakulärsten Panoramen des Landes:
Der dramatisch aufragende Traunstein, oft als "Wächter des Salzkammerguts" bezeichnet, erhebt sich imposant über das glasklare Blau des Sees und verleiht jeder Tageszeit eine eigene Stimmung - vom zarten Gold des Morgens bis zum magischen Violett der Abenddämmerung.
INFRASTRUKTUR
?? FREIZEIT & GENUSS
- Seepromenade mit Cafés & Bootsanlegestellen - - Yachtliegeplätze & Segelclubs - in Gehdistanz
- Thermen & Wellnessresorts - - Haubenrestaurants & Seelounges - direkt am See
- Weinverkostungen, Kulturveranstaltungen & Festivals - regelmäßig im Umkreis
?? SPORT & NATURAKTIVITÄTEN
- SUP & Schwimmen - direkt am Ufer
- Wander- & Radwege - ab der Haustür
- Reiten - - Golfplätze - 20-45 Min. (3 Clubs in Reichweite)
- Wintersport (Feuerkogel, Dachstein West) - 25-45?Min.
- Tennis & Padel - im Ort und in Gmunden
?? VERKEHR & ERREICHBARKEIT
- Bahnhof Altmünster - - Autobahnanschluss Regau (A1) - - Flughafen Linz - ca. 60 Min.
??? STÄDTE IN DER NÄHE
- Linz - ca. 60 Min.: Hauptstadt von OÖ, Flughafen, Szene
- Salzburg - ca. 80 Min.: Weltkulturerbe & Festspielstadt
- Wien - ca. 120 Min.: Wirtschafts- & Kulturmetropole
- München - ca. 135 Min.: Lifestyle, Business & Internationalität
?? GESUNDHEIT & WOHLBEFINDEN
- Arztpraxis & Fachärztezentrum - - Apotheke - - Landeskrankenhaus Gmunden - - Physiotherapie, Massage & Naturheilkunde - im Ort verfügbar
??? NAHVERSORGUNG & EINKAUF
- Supermärkte (Spar, Billa, Hofer) - - Bäckerei & Konditorei - - Wochenmarkt Altmünster & Gmunden - - Bankfilialen - fußläufig erreichbar
?? KINDER & BILDUNG
- Kindergarten Altmünster - - Volksschule - fußläufig erreichbar
- Musikschule Altmünster - - Gymnasien in Gmunden - - Vielfältige Freizeitangebote für Kinder - lokal verfügbar
- Ferienbetreuung (Sport, Kreativcamps) - regelmäßig buchbar
??? SONSTIGES
- Polizei - - Gemeindeamt, Banken, Post - zentral im Ort
- Hotels, Ferienvillen & gehobene Unterkünfte - in unmittelbarer Nähe
- Gepflegte Nachbarschaft & hohe Lebensqualität - spürbar ab dem ersten Moment
DIE RESIDENZ TRAUNSTEINBLICK
Architektonische Klarheit an einem Ort, wie es ihn kein zweites Mal gibt.
Am Ende einer ruhigen Zufahrtsstraße, eingebettet in eine sonnige Hanglage mit unverbautem Blick über Traunsee und Traunstein, entsteht ein Wohnprojekt, das sich still abhebt - in seiner Ausrichtung, seiner Form und seiner Wirkung.
Die Residenz Traunsteinblick ist mehr als ein Bauwerk. Es ist ein seltenes Zusammenspiel aus Natur, Architektur und Lage, das so nur einmal möglich ist - und nie wieder so realisierbar sein wird.
Das Ensemble besteht aus nur drei exklusiven Einheiten, jede für sich, auf einer eigenen Ebene. Es richtet sich an Menschen mit einem sicheren Gespür für das Besondere - an jene, die Qualität nicht suchen, sondern erkennen, wenn sie ihnen begegnet.
Das Mauerwerk tritt bewusst zurück, um das Wesentliche in den Vordergrund zu rücken: das Licht, das durch großzügige Glasflächen fällt, die Stille des angrenzenden Waldes, die Weite des Sees, das Panorama, das jeden Tag neu beginnt. Zeitlos, reduziert und stimmig fügt sich das Gebäude in die Landschaft - nicht als Kontrast, sondern als Fortsetzung ihrer Ästhetik.
Die Panoramasuite mit goldener Aussicht auf den Traunsee entsteht an einem Ort, den es so kein zweites Mal gibt.
Noch ist das Gebäude nicht errichtet - aber das Gefühl beim ersten Schritt auf dieses Grundstück ist bereits da.
?? Vereinbaren Sie noch heute Ihren persönlichen Besichtigungstermin
und spüren Sie, was Worte nicht beschreiben können.
Für offene Fragen oder individuelle Anliegen sind wir jederzeit persönlich für Sie erreichbar -
mit Zeit, Verständnis und einem sicheren Gespür für das Besondere.
Ihr Ansprechpartner:
Gregor Dietinger
office@toprealimmobilien.at
0660 3659043
---
Sie möchten selbst eine Immobilie verkaufen?
Seit über 30 Jahren begleiten wir Privatpersonen, Bauträger und Investoren auf dem Weg zur erfolgreichen Vermittlung -
mit Feingefühl, Strategie und einem Rundum-Service vom ersten Gespräch bis zur Schlüsselübergabe.
Wir freuen uns darauf, Sie kennenzulernen - als Käufer, als Verkäufer, als Partner auf Augenhöhe.
In privilegierter Panoramalage am Traunsteinblick 5 in Altmünster, eingebettet zwischen Wald und See, entsteht mit dem Projekt Residenz Traunsteinblick ein Neubau, der das Wort "Einmaligkeit" neu definiert.
Und inmitten dieses Ensembles liegt die vielleicht begehrteste Einheit:
Die unvergleichbare Panoramasuite mit goldener Aussicht auf den Traunsee - ein Ort, der nicht erklärt werden muss, sondern gespürt werden will.
Diese Panoramasuite ist nicht irgendein Zuhause - sondern eine einmalige Chance für jene, die das Unvergleichliche suchen. Denn eine Immobilie, die Luxus, Naturverbundenheit, architektonische Klarheit und einen unverbaubaren Panoramablick in dieser Form vereint, ist in dieser Region einzigartig - und wird es so kein zweites Mal mehr geben.
ARCHITEKTUR & AUSSTATTUNG
- 134,46?m² lichtdurchfluteter Wohnfläche
- Großzügigem Wohn-Essbereich (60,93?m²) mit klaren Linien und viel Offenheit
- Zwei Schlafzimmer, jeweils mit eigenem Bad, eines davon mit Ankleide
- Zwei edlen Bäder, ausgestattet mit hochwertigen Marken-Sanitärprodukten
- Drei WCs: jeweils eines in den beiden Badezimmern sowie ein separates Gäste-WC
- Panoramaterrasse mit 51,64?m², ganztägig besonnt
- Privatem Eigengarten mit 307,83?m² (nach Absprache mit Pool)
- Komfortabler Liftzugang auf die Wohnebene
- Fußbodenheizung & Deckenkühlung
- Luftwärmepumpe und Photovoltaikanlage für nachhaltige Energieversorgung
- Batteriespeicher mit ca. 15 kWh
- E-Ladestation vorbereitet
- Doppelgarage direkt vor der Haustüre - über Privatstraße erreichbar
- Kellerabteil (8,65?m²) im Untergeschoss
- Vollintegriertes Loxone Smart Home System
- Barrierefreie Ausführung
- Hochwertige, regionale Bauqualität - ausgeführt durch ein renommiertes Bauunternehmen aus der Region
- Gestaltungsspielraum in der finalen Ausführung - bei rechtzeitiger Kaufentscheidung besteht die Möglichkeit, Materialien, Ausstattung und sogar den Grundriss nach individuellen Wünschen mitzugestalten
?? Alle weiterführenden Details zur Ausstattung, Bauqualität und Grundrissgestaltung finden Sie im ausführlichen Exposé. Für weiterführende Fragen oder persönliche Anliegen sind wir jederzeit gerne für Sie erreichbar - telefonisch, per Mail oder im direkten Gespräch.
Die gesamte Abwicklung des Projekts erfolgt nach den Bestimmungen des Bauträgervertragsgesetzes (BTVG).
Damit genießen Käufer größtmögliche rechtliche Sicherheit - von der Vertragsunterzeichnung bis zur Übergabe.
Darüber hinaus wird das Projekt von der Abwerzger Bau GmbH realisiert - einem regional etablierten Bauträger, der bereits mehrere hochwertige Neubauten im Salzkammergut erfolgreich umgesetzt hat.
LAGE
Der Traunsee zählt längst zu den elegantesten Rückzugsorten Österreichs - ein Ort, der seit Generationen Menschen mit einem feinen Gespür für Lebensqualität, Ästhetik und Entschleunigung in seinen Bann zieht.
Altmünster, am westlichen Ufer gelegen, ist dabei so etwas wie der versteckte Juwel dieser Region. Authentisch, gepflegt, mit einer natürlichen Gelassenheit - und einem der spektakulärsten Panoramen des Landes:
Der dramatisch aufragende Traunstein, oft als "Wächter des Salzkammerguts" bezeichnet, erhebt sich imposant über das glasklare Blau des Sees und verleiht jeder Tageszeit eine eigene Stimmung - vom zarten Gold des Morgens bis zum magischen Violett der Abenddämmerung.
INFRASTRUKTUR
?? FREIZEIT & GENUSS
- Seepromenade mit Cafés & Bootsanlegestellen - - Yachtliegeplätze & Segelclubs - in Gehdistanz
- Thermen & Wellnessresorts - - Haubenrestaurants & Seelounges - direkt am See
- Weinverkostungen, Kulturveranstaltungen & Festivals - regelmäßig im Umkreis
?? SPORT & NATURAKTIVITÄTEN
- SUP & Schwimmen - direkt am Ufer
- Wander- & Radwege - ab der Haustür
- Reiten - - Golfplätze - 20-45 Min. (3 Clubs in Reichweite)
- Wintersport (Feuerkogel, Dachstein West) - 25-45?Min.
- Tennis & Padel - im Ort und in Gmunden
?? VERKEHR & ERREICHBARKEIT
- Bahnhof Altmünster - - Autobahnanschluss Regau (A1) - - Flughafen Linz - ca. 60 Min.
??? STÄDTE IN DER NÄHE
- Linz - ca. 60 Min.: Hauptstadt von OÖ, Flughafen, Szene
- Salzburg - ca. 80 Min.: Weltkulturerbe & Festspielstadt
- Wien - ca. 120 Min.: Wirtschafts- & Kulturmetropole
- München - ca. 135 Min.: Lifestyle, Business & Internationalität
?? GESUNDHEIT & WOHLBEFINDEN
- Arztpraxis & Fachärztezentrum - - Apotheke - - Landeskrankenhaus Gmunden - - Physiotherapie, Massage & Naturheilkunde - im Ort verfügbar
??? NAHVERSORGUNG & EINKAUF
- Supermärkte (Spar, Billa, Hofer) - - Bäckerei & Konditorei - - Wochenmarkt Altmünster & Gmunden - - Bankfilialen - fußläufig erreichbar
?? KINDER & BILDUNG
- Kindergarten Altmünster - - Volksschule - fußläufig erreichbar
- Musikschule Altmünster - - Gymnasien in Gmunden - - Vielfältige Freizeitangebote für Kinder - lokal verfügbar
- Ferienbetreuung (Sport, Kreativcamps) - regelmäßig buchbar
??? SONSTIGES
- Polizei - - Gemeindeamt, Banken, Post - zentral im Ort
- Hotels, Ferienvillen & gehobene Unterkünfte - in unmittelbarer Nähe
- Gepflegte Nachbarschaft & hohe Lebensqualität - spürbar ab dem ersten Moment
DIE RESIDENZ TRAUNSTEINBLICK
Architektonische Klarheit an einem Ort, wie es ihn kein zweites Mal gibt.
Am Ende einer ruhigen Zufahrtsstraße, eingebettet in eine sonnige Hanglage mit unverbautem Blick über Traunsee und Traunstein, entsteht ein Wohnprojekt, das sich still abhebt - in seiner Ausrichtung, seiner Form und seiner Wirkung.
Die Residenz Traunsteinblick ist mehr als ein Bauwerk. Es ist ein seltenes Zusammenspiel aus Natur, Architektur und Lage, das so nur einmal möglich ist - und nie wieder so realisierbar sein wird.
Das Ensemble besteht aus nur drei exklusiven Einheiten, jede für sich, auf einer eigenen Ebene. Es richtet sich an Menschen mit einem sicheren Gespür für das Besondere - an jene, die Qualität nicht suchen, sondern erkennen, wenn sie ihnen begegnet.
Das Mauerwerk tritt bewusst zurück, um das Wesentliche in den Vordergrund zu rücken: das Licht, das durch großzügige Glasflächen fällt, die Stille des angrenzenden Waldes, die Weite des Sees, das Panorama, das jeden Tag neu beginnt. Zeitlos, reduziert und stimmig fügt sich das Gebäude in die Landschaft - nicht als Kontrast, sondern als Fortsetzung ihrer Ästhetik.
Die Panoramasuite mit goldener Aussicht auf den Traunsee entsteht an einem Ort, den es so kein zweites Mal gibt.
Noch ist das Gebäude nicht errichtet - aber das Gefühl beim ersten Schritt auf dieses Grundstück ist bereits da.
?? Vereinbaren Sie noch heute Ihren persönlichen Besichtigungstermin
und spüren Sie, was Worte nicht beschreiben können.
Für offene Fragen oder individuelle Anliegen sind wir jederzeit persönlich für Sie erreichbar -
mit Zeit, Verständnis und einem sicheren Gespür für das Besondere.
Ihr Ansprechpartner:
Gregor Dietinger
office@toprealimmobilien.at
0660 3659043
---
Sie möchten selbst eine Immobilie verkaufen?
Seit über 30 Jahren begleiten wir Privatpersonen, Bauträger und Investoren auf dem Weg zur erfolgreichen Vermittlung -
mit Feingefühl, Strategie und einem Rundum-Service vom ersten Gespräch bis zur Schlüsselübergabe.
Wir freuen uns darauf, Sie kennenzulernen - als Käufer, als Verkäufer, als Partner auf Augenhöhe.
Merkmale
- Bezug: nach Vereinbarung
- 493,9 m² Grundstück
- Personenaufzug
- Keller
- 3 Stellplätze: Garage, 2 Außen-Stellplätze
- Garten
- Terrasse
- Fernblick
Grundrisse
Grundrisse
1 / 1
Realisiere Dein Projekt
Bausubstanz und Energie
Heizwärmebedarf (HWB)
B
Gesamtenergieeffizienz (fGEE)
A+
- Baujahr2025
- Zustand der ImmobilieNeubau, Erstbezug
- HeizungsartFußbodenheizung
Preisdetails
Kaufpreis
1698000 €1.698.000 €
12.628,29 €/m²
Provision für Käufer
3.00 % zzgl. MwSt.
Weitere Preisinformationen
2 Stellplätze
1 Garagenstellplatz
1 Garagenstellplatz
Lage

Altmünster (4813)
Der Anbieter hat die genaue Adresse nicht freigegeben
Weitere Informationen
Stichworte
Garage vorhanden, Stellplatz vorhanden, Anzahl der Schlafzimmer: 2, Anzahl der Badezimmer: 2, Anzahl der separaten WCs: 3, Anzahl Terrassen: 1, Balkon-Terrassen-Fläche: 51,64 m², Kellerfläche: 8,65 m², Bundesland: Oberösterreich
Sonstiges: Neubaustandard
Weitere Services
Lust auf eine Besichtigung?
Eine Frage zur Immobilie?
Über den Anbieter
Durisolstraße 1/3, 4600 WELS
Partnerschaft
Herr Gregor DietingerDein Kontakt
Online-ID: 262YNEFMQURW
Referenznummer: 3800/633
Wie zufrieden bist du mit dieser Seite (nicht mit der Immobilie selbst)?


