Version: 8.23.0Navigation überspringen
2.400.000 €
2.117 m² Grundstück
Immowelt logo

Grundstück zum Kauf
2400000 €
1.134 €/m²
2.117 m² Grundstück

Baugrundstück für zwei Mehrfamilienhäuser - positiver Bauvorbescheid liegt vor!

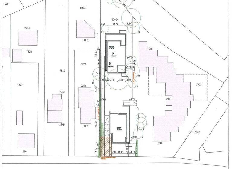
Das hier zum Verkauf angebotene Grundstück hat eine Größe von 2.117 m². Das Grundstück ist voll erschlossen und hat eine Breite von circa 22m und eine Tiefe von circa 100m. Dadurch verfügt das Grundstück über einen perfekten Zuschnitt sowie eine ideale Größe für eine Neubebauung mit zwei großzügigen Mehrfamilienhäusern.

Das Grundstück befindet sich im Geltungsbereich des Baustufenplans von Sasel aus dem Jahr 1955.

Die Ausweisung lautet:
Wohngebiet - zweigeschossig - offene Bauweise.

Ein positiver Bauvorbescheid für die Errichtung von zwei Mehrfamilienhäusern wurde bereits kürzlich vom zuständigen Bauamt erteilt. Dabei wurde in Aussicht gestellt, dass das vordere Mehrfamilienhaus mit drei Vollgeschossen und ausgebautem Dachgeschoss und das hintere Mehrfamilienhaus mit zwei Vollgeschossen und ausgebautem Dachgeschoss errichtet werden kann. Eine Wohnfläche von rund 1.600 m², verteilt auf beide Mehrfamilienhäuser, kann somit errichtet werden. Den Vorbescheid können wir Ihnen bei Interesse gern zur Verfügung stellen.

Auf dem Grundstück befindet sich ein zum Abriss bestimmtes Haus mit zwei Wohnungen, einem Büro sowie im hinteren Bereich eine Garage und eine Lagerhalle. Das vorhandene Gebäude ist teilunterkellert und wird mit einer Ölheizung beheizt. Die mit dem Abriss verbundenen Kosten hat der Käufer zu tragen.

Sollten Sie also folgende Ansprüche an Ihr neues Bauprojekt richten,

Øbebaubar mit zwei Mehrfamilienhäuser
Øca. 1.600 m² Wohnfläche
Øidealer Grundstückszuschnitt
Øzentrale Lage

sollten Sie einen individuellen Besichtigungstermin mit uns vereinbaren. Das Grundstück wird Sie überzeugen!

Merkmale

  • 2.117 m² Grundstück

Grundrisse

Grundrisse
1 / 1

Realisiere Dein Projekt

Bausubstanz und Energie

Der Anbieter hat keine Informationen zu Energieverbrauch oder Zustand der Immobilie bereit gestellt.
Immowelt logo

Preisdetails

Kaufpreis
2400000 €
1.133,68 €/m²
Provision für Käufer
6,30%
Geschätzte Gesamtkosten
2.551.200 €1
Kaufpreis
2.400.000 €
Provision für Käufer (6,3%)
151.200 €
1Der angezeigte Wert ist eine automatisch berechnete Schätzung von immowelt.
2Bei den Angaben handelt es sich um ortsübliche Werte. Individuelle Kosten können abweichen.

Lage

address-icon
SaselHamburg - Sasel (22393)
Der Anbieter hat die genaue Adresse nicht freigegeben
Sasel ist ein begehrtes Wohngebiet im Hamburger Norden, im schönen Alstertalgebiet. Im Zentrum, nur wenige Schritte entfernt, befindet sich der Saseler Park und dahinter der Saseler Markt, mit erstklassigen Einkaufsmöglichkeiten für den täglichen Bedarf. Der Fußweg zum Poppenbüttler S-Bahnhof beträgt ca. 15-20 Minuten, dort befindet sich auch das bekannte Alstertal-Einkaufs-Zentrum (AEZ). In nur 3 Minuten Entfernung befindet sich eine Busstation als Zubringer zum S-Bahnhof oder Richtung Volksdorf (U-Bahn Anbindung). Schulen wie Grundschule Alsterredder und Gymnasium Oberalster ca. 6 Gehminuten. Erstklassige Freizeitmöglichkeiten durch das unmittelbar angrenzende Naturschutzgebiet "Hainisch" sowie die Alster mit ihren ausgedehnten Wanderwegen.

Weitere Informationen

Stichworte Bundesland: Hamburg

Weitere Services

Lust auf eine Besichtigung?
Eine Frage zur Immobilie?
Nachricht hinzufügen
Mit der Nutzung der oben angegebenen Telefonnummer oder durch Klicken auf „Kontaktieren“ akzeptierst Du die Allgemeinen Nutzungsbedingungen, denen Du jederzeit widersprechen kannst. Weitere Informationen zum Datenschutz

Über den Anbieter

Saseler Chaussee 203, 22393 Hamburg
Herr Carsten GütschowDein Kontakt
Online-ID: 2n8cs5k
Referenznummer: 6232
WITTHÖFT Wohnimmobilien GmbH
WITTHÖFT Wohnimmobilien GmbH
Bewertung: 4,5 von 5 Sternen
Nachricht hinzufügen
Mit der Nutzung der oben angegebenen Telefonnummer oder durch Klicken auf „Kontaktieren“ akzeptierst Du die Allgemeinen Nutzungsbedingungen, denen Du jederzeit widersprechen kannst. Weitere Informationen zum Datenschutz
Wie zufrieden bist du mit dieser Seite (nicht mit der Immobilie selbst)?