Version: 8.25.1Navigation überspringen
1.707 €
3 Zimmer  •  64,7 m²  •  4. Geschoss
Immowelt logo

Wohnung zur Miete - Erstbezug
1.707 €
3 Zimmer  •  64,7 m²  •  4. Geschoss

Erstbezug mit Terrasse, Dachgarten und Garagenplatz bei U3

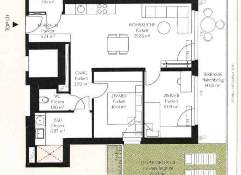
Zur Vermarktung gelangt eine attraktive 3-Zimmer-Wohnung im Erstbezug mit einer Wohnfläche von ca. 64,88 m². Die Wohnung überzeugt durch eine durchdachte Raumaufteilung sowie großzügige Freiflächen. Besonders hervorzuheben sind die ca. 12,42 m² große Terrasse sowie ein zusätzlicher Dachgarten mit ca. 17,83 m², die ein angenehmes Wohnerlebnis im Freien ermöglichen.

Die Einheit befindet sich in einer modernen Neubauanlage in ruhiger Hoflage und ist hochwertig ausgestattet. Elektrische Außenjalousien sowie eine Fußbodenheizung sorgen für hohen Wohnkomfort.

Die U-Bahn-Station Schlachthausgasse ist fußläufig erreichbar. Die Nähe zur Landstraßer Hauptstraße sowie zur Autobahnauffahrt St. Marx und dem Knoten Prater gewährleistet eine ausgezeichnete Infrastruktur und Verkehrsanbindung.

Ein Garagenstellplatz ist der Wohnung zugeordnet und ist mit anzumieten.

Raumaufteilung: 
- Vorraum
- geräumige Wohnküche mit Zugang zur Terrasse
- 2 Schlafzimmer eins davon mit Zugang zur Terrasse, eins mit Zugang zum Dachgarten
- Badezimmer mit Dusche, Waschbecken und Waschmaschinenanschluss
- Abstellraum
- separate Toilette
- Terrasse / Dachgarten

Lage und Infrastruktur:
Die Schimmelgasse liegt in einer zentralen, innerstädtischen Wohnlage mit guter Nähe zur Wiener Innenstadt, die in etwa 10-15 Minuten öffentlich erreichbar ist. Sie befindet sich in einer eher ruhigen Seitengasse unweit der Landstraßer Hauptstraße und verbindet damit eine urbane Lage mit vergleichsweise geringer Verkehrsbelastung. Die öffentliche Anbindung ist sehr gut: Die U3-Station Schlachthausgasse ist fußläufig erreichbar, ebenso Busverbindungen und die S-Bahn bei St. Marx. Auch mit dem Auto besteht eine schnelle Anbindung an die A4 und damit zum Flughafen. 
Die Nahversorgung ist ausgezeichnet, da sich zahlreiche Einkaufsmöglichkeiten, Supermärkte, Gastronomiebetriebe sowie der Rochusmarkt in unmittelbarer Umgebung befinden. Einrichtungen des täglichen Bedarfs, Schulen, Kindergärten und medizinische Versorgung sind ebenfalls gut erreichbar, was die Lage auch für Familien attraktiv macht. Zusätzlich bieten nahegelegene Grünflächen wie der Prater oder der Schweizergarten gute Freizeit- und Erholungsmöglichkeiten.

Kosten:
Miete (Wohnung & Garage): € 1.895,00 inkl. BK und 10% USt.
Kaution: € 6.000,00

Kontakt:
Bei Fragen oder zur Vereinbarung eines Besichtigungstermins wenden Sie sich bitte an Frau Danja Dieringer unter dieringer@estina.at oder mobil unter 0676 344 95 19 [tel:06763449519]. 

Der Immobilienmakler erklärt, dass er - entgegen dem in der Immobilienwirtschaft üblichen Geschäftsgebrauch des Doppelmaklers - einseitig nur für den Vermieter tätig ist.

Merkmale

  • Bezug: ab sofort
  • 4. Geschoss
  • Personenaufzug
  • offene Küche
  • Bad mit Dusche
  • Bodenbelag: Fliesen, Parkett
  • Terrasse
  • Garage

Grundrisse

Grundrisse
1 / 1

Realisiere Dein Projekt

Bausubstanz und Energie

Heizwärmebedarf (HWB)

B

Gesamtenergieeffizienz (fGEE)

A+
  • Baujahr2026
  • Zustand der ImmobilieNeubau, Erstbezug
Immowelt logo

Mietkosten

Gesamtmiete
1.895 €
Nettokaltmiete zzgl. Betriebskosten
26,65 €/m²
1.707,16 €
Kaution
6.000 €
Weitere Preisinformationen
1 Garagenstellplatz
Nettokaltmiete: 1.707,16 EUR

Lage

address-icon
SchimmelgasseWien (1030)
U-Bahn-Station Schlachthausgasse, Landstraße Hauptstraße, S-Bahn bei St. Marx, Knoten Prater, A4, A23, Rabenhof

Weitere Informationen

Stichworte Tiefgarage vorhanden, Süd-Balkon/Terrasse, Fahrradraum, Freifläche: 31,89 m², Anzahl der Badezimmer: 1, Anzahl der separaten WCs: 1, Anzahl Terrassen: 1, Balkon-Terrassen-Fläche: 14,06 m², Gartenfläche: 17,83 m², Bundesland: Wien

Weitere Services

Lust auf eine Besichtigung?
Eine Frage zur Immobilie?
Nachricht hinzufügen
Mit der Nutzung der oben angegebenen Telefonnummer oder durch Klicken auf „Kontaktieren“ akzeptierst Du die Allgemeinen Nutzungsbedingungen, denen Du jederzeit widersprechen kannst. Weitere Informationen zum Datenschutz

Über den Anbieter

Heinrichsgasse 4/12, 1010 WIEN
partner badge
Partnerschaft
Frau Danja DieringerDein Kontakt
Online-ID: 26JK61HIHJU1
Referenznummer: OBGC20260319110509849b1845467ea
ESTINA Immobilien GmbH
ESTINA Immobilien GmbH
Bewertung: 4,8 von 5 Sternen
Nachricht hinzufügen
Mit der Nutzung der oben angegebenen Telefonnummer oder durch Klicken auf „Kontaktieren“ akzeptierst Du die Allgemeinen Nutzungsbedingungen, denen Du jederzeit widersprechen kannst. Weitere Informationen zum Datenschutz
Wie zufrieden bist du mit dieser Seite (nicht mit der Immobilie selbst)?