Version: 8.25.1Navigation überspringen
Mietkosten auf Anfrage
265 m² Lagerfläche  •  teilbar ab 265 m²
Immowelt logo

Lagerhalle zur Miete • provisionsfrei
Mietkosten auf Anfrage
265 m² Lagerfläche  •  teilbar ab 265 m²

antaris Immobilien GmbH ** 1.550 m² Warmhalle mit Potenzial **

Zur Vermietung stehen zwei moderne, ebenerdige Hallen auf einem großzügig abgeschlossenen Grund-stück in Worms. Die Hallen bieten optimale Nutzungsmöglichkeiten für Gewerbebetriebe, die auf eine hoch-wertige Infrastruktur und eine gute Erreichbarkeit angewiesen sind.

Die Halle 1 hat eine Größe von ca. 1.550,00 m², integrierte Sozialräume bieten den Mietern eine bequeme Möglichkeit zur Nutzung von Büro- und Pausenräumen. Die Halle 2 misst ca. 1.500,00 m².

Der direkte Zugang über die Sektionaltore sowie die Kranbahnen ermöglichen eine hohe Flexibilität der beiden Hallen.

Zusätzlich stehen weitere Lagermöglichkeiten in einem Nebengebäude zur Verfügung. Die Halle 3 (Kalthalle) bietet eine Fläche von ca. 1.100,00 m². Weitere 170,00 m² (Halle 4) können ebenfalls separat genutzt werden.

Das Grundstück mit einer Gesamtfläche von ca. 35.309,00 m² bietet Ihnen vielfältige Nutzungsmöglichkeiten im gewerblichen Bereich mit entsprechend großen Freiflächen. Das gesamte Grundstück ist umzäunt und bietet daher einen hohen Sicherheitsstandard.


ENERGIEAUSWEIS
Ausweisart: Verbrauchsausweis
Energiekennwert: 173,88 kWh(m²-a)
Endenergieverbrauch Wärme: 126,00 kWh(m²-a)
Endenergieverbrauch Strom: 20,00 kWh(m²-a)
Energieträger: Öl
Ausstelldatum: 22.01.2025
Baujahr technische Anlage: 1997

Merkmale

  • 35.309 m² Grundstück
beheizbar
LAN-Verbindung
barrierefrei
Schließanlage
Starkstromanschluß
Sektionaltore
komplett umzäunt
beheizbar
LAN-Verbindung
barrierefrei
Schließanlage
Starkstromanschluß
Sektionaltore
komplett umzäunt

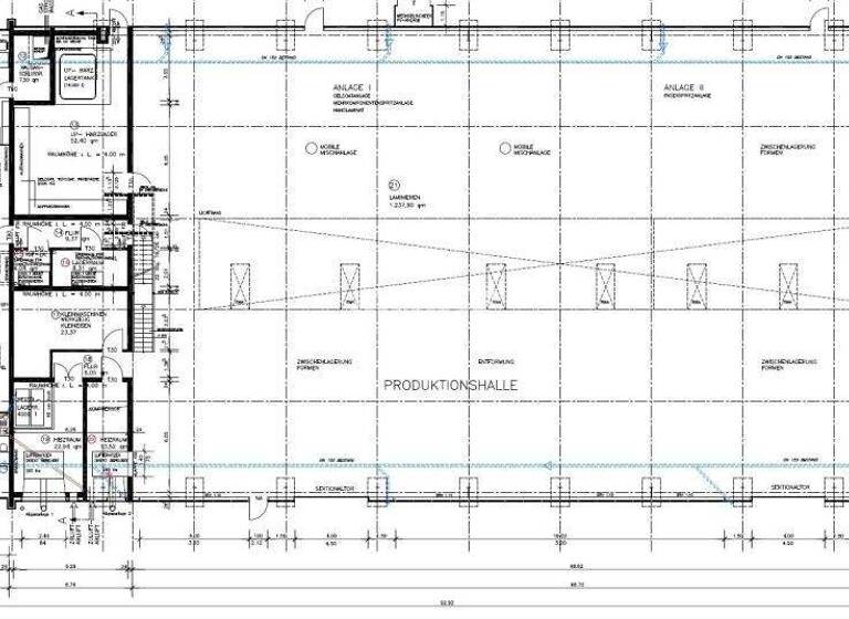
Grundrisse

Grundrisse
1 / 1

Realisiere Dein Projekt

Bausubstanz und Energie

Energieausweis

Endenergieverbrauch (Wärme)

Endenergieverbrauch (Strom)

  • Baujahr2004
Immowelt logo

Mietkosten

Miete auf Anfrage
Provision für Mieter
provisionsfrei; mieterprovisionsfrei
Kaution
keine Angabe

Lage

address-icon
Weißensee (99631)
Der Anbieter hat die genaue Adresse nicht freigegeben
Die Thüringer Stadt Weißensee ist ein attraktiver Standort für ihr Gewerbe und präsentiert sich als aufstrebender Standort für Unternehmen und Gewerbetreibende. Die Stadt bietet eine hervorragende Infrastruktur mit einer optimalen Anbindung über die B 86 an die Autobahn A 38 und A 71.
Gewerbetreibende profitieren von der Nähe zu wichtigen Städten wie Erfurt und Weimar, die zusätzliche Geschäftsmöglichkeiten eröffnen.
Weißensee ist nicht nur ein Ort mit einer hohen Lebensqualität, sondern auch ein Standort, der Innovation und Wachstum fördert. Nutzen Sie die Chance, Teil dieser lebendigen Gemeinschaft zu werden und Ihr Gewerbe in einer Stadt mit viel Potenzial zu etablieren!

Weitere Informationen

Sonstiges Widerrufsrecht
Sie können Ihre Vertragserklärung innerhalb von 14 Tagen ohne Angaben von Gründen in Textform (z.B. Brief, E-Mail) widerrufen. Die Frist beginnt nach Erhalt dieser Belehrung in Textform, jedoch nicht vor Vertragsabschluss und auch nicht vor Erfüllung unserer Informationspflichten gem. Art. 246 § 2 i.V.m. § 1 Abs. 1 und 2 EGBGB. Zur Wahrung der Widerrufsfrist genügt die rechtzeitige Absendung des Widerrufs. Im Falle eines wirksamen Widerrufs sind die beiderseits empfangener Leistungen zurück zu gewähren und ggf. bezogene Nutzungen (z.B. Zinsen) herauszugeben. Können Sie uns die empfangenen Leistungen sowie Nutzungen (z.B. Gebrauchsvorteile) nicht oder teilweise nicht oder nur in verschlechtertem Zustand zurückgewähren bzw. herausgeben, müssen Sie uns insoweit Wertersatz leisten. Dies kann dazu führen, dass Sie die vertraglichen Zahlungsverpflichtungen für den Zeitraum bis zum Widerruf gleichwohl erfüllen müssen. Verpflichtungen zur Erstattung von Zahlungen müssen innerhalb von 30 Tagen erfüllt werden.
Die Frist beginnt für Sie mit der Absendung Ihrer Widerrufserklärung, für uns mit deren Empfang. Das Widerrufsrecht erlischt vorzeitig, wenn der Vertrag von beiden Seiten auf Ihren ausdrücklichen Wunsch vollständig erfüllt ist, bevor Sie Ihr Widerrufsrecht ausgeübt haben.

Weitere Angebote finden Sie unter www.antaris-immobilien.de!

Weitere Services

Lust auf eine Besichtigung?
Eine Frage zur Immobilie?
Mit einer persönlichen Nachricht hast du bessere Chancen auf eine Antwort.
Mit der Nutzung der oben angegebenen Telefonnummer oder durch Klicken auf „Kontaktieren“ akzeptierst Du die Allgemeinen Nutzungsbedingungen, denen Du jederzeit widersprechen kannst. Weitere Informationen zum Datenschutz

Über den Anbieter

Juri-Gagarin-Ring 96-98, 99084 Erfurt
partner badge
6 Jahre Partnerschaft
Herr Felix ReinhardtDein Kontakt
Online-ID: 25QU2T9V99A5
Referenznummer: P255021/G1
Antaris Immobilien GmbH
Antaris Immobilien GmbH
Bewertung: 4,2 von 5 Sternen
Mit einer persönlichen Nachricht hast du bessere Chancen auf eine Antwort.
Mit der Nutzung der oben angegebenen Telefonnummer oder durch Klicken auf „Kontaktieren“ akzeptierst Du die Allgemeinen Nutzungsbedingungen, denen Du jederzeit widersprechen kannst. Weitere Informationen zum Datenschutz
Wie zufrieden bist du mit dieser Seite (nicht mit der Immobilie selbst)?