RE/MAX - Wohn- und Geschäftshaus Denkmalschutz in Sendling!
Zum Verkauf steht ein einzigartiges Wohn- und Geschäftshaus im Herzen von München. Dieses historisch bedeutsame Gebäude, erbaut um 1823, bietet sowohl eine interessante Geschichte als auch moderne Wohnqualität. Als ehemaliger Standort einer Hufschmiede, in der Pferdegespanne für die Reise über die Isar vorbereitet wurden, besitzt das Gebäude einen besonderen Charme.
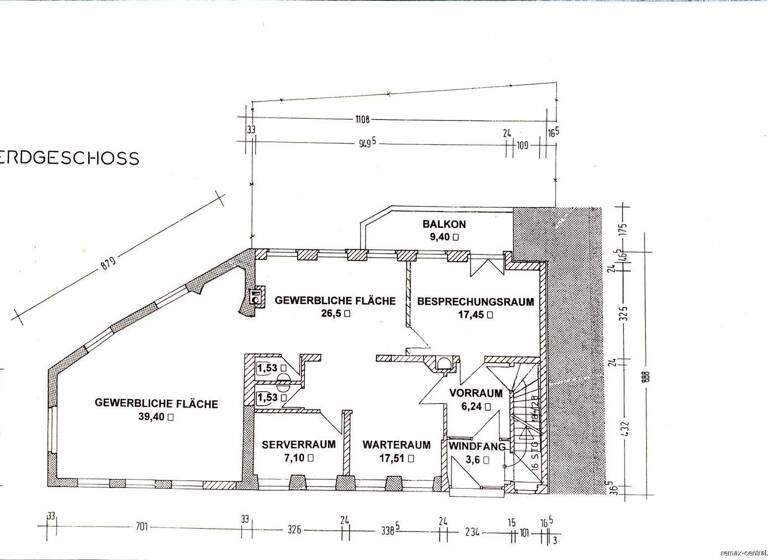
Mit einer Grundstücksgröße von 150 m², einer großzügigen Wohnfläche von 118 m² im OG und einer Nutzfläche von ca. 126 m² im EG als Ladeneinheit besticht das Haus durch die gelungene Symbiose aus Tradition und Moderne. Das obere Geschoss wurde 2021 umfassend renoviert und bietet ein separates Treppenhaus.
Die Wohneinheit steht leer und die Ladeneinheit im Erdgeschoss steht ebenfalls bald zur Verfügung. Dies bietet eine attraktive Gelegenheit sowohl für private als auch geschäftliche Nutzung.
Entdecken Sie die einmalige Möglichkeit, ein Stück Münchner Geschichte zu erwerben und zugleich modernen Wohnkomfort zu genießen.
Merkmale
150 m² Grundstück
Garage
- EG: Gewerbeeinheit mit 126 m² Nutzfläche - OG: Wohneinheit mit 118 m² Wohnfläche - KG: 42,73 m² mit Zugang Garage 19,59 m² - 1 x Garage
Grundrisse
Grundrisse
1 / 3
Realisiere Dein Projekt
Bausubstanz und Energie
Möchtest du Details zum Energieverbrauch?
Baujahr1800
Preisdetails
Kaufpreis
1450000 €1.450.000 €
12.288,14 €/m²
Provision für Käufer
3,57% inkl. MwSt.
Weitere Preisinformationen
1 Garagenstellplatz
Geschätzte Gesamtkosten
1.581.515 €1
Kaufpreis
1.450.000 €
Kaufnebenkosten
131.515 €
2
Notarkosten (1,5%)
21.750 €
Grunderwerbsteuer (3,5%)
50.750 €
Provision für Käufer (3,57%)
51.765 €
Grundbucheintrag (0,5%)
7.250 €
1Der angezeigte Wert ist eine automatisch berechnete Schätzung von immowelt.
2Bei den Angaben handelt es sich um ortsübliche Werte. Individuelle Kosten können abweichen.
Lage
Sendling, München (81369)
Der Anbieter hat die genaue Adresse nicht freigegeben
Das Wohn- und Geschäftshaus befindet sich in München-Sendling in einem gewachsenen, urban geprägten Umfeld mit ausgewogener Mischung aus Wohnen, Einzelhandel und Dienstleistungen. Der Standort zeichnet sich durch eine sehr gute Anbindung an den öffentlichen Nahverkehr aus, wodurch die Münchner Innenstadt sowie wichtige Knotenpunkte der Stadt in kurzer Zeit erreichbar sind. Auch die überregionalen Verkehrsachsen sind gut angebunden, was den Standort sowohl für Bewohner als auch für gewerbliche Nutzer attraktiv macht.
In der näheren Umgebung finden sich zahlreiche Einkaufsmöglichkeiten für den täglichen Bedarf, gastronomische Angebote sowie Ärzte und weitere Dienstleister. Schulen, Kindergärten und Freizeitangebote sind ebenfalls bequem erreichbar. Zusätzlich bieten nahegelegene Grün- und Erholungsflächen ideale Möglichkeiten für sportliche Aktivitäten und entspannte Spaziergänge. Insgesamt überzeugt die Lage in Sendling durch ihre zentrale, lebendige Stadtnähe und die hohe Alltagstauglichkeit für unterschiedliche Nutzungsansprüche.
Weitere Informationen
Sonstiges
Ihre Ansprechpartnerin, Frau Bölük, steht Ihnen für eine unverbindliche Besichtigung gerne unter 0160-8105140 oder 089-552152-13 zur Verfügung. Alle genannten Angaben zur Immobilie beruhen auf Informationen des Eigentümers. Für Richtigkeit und Vollständigkeit wird keine Haftung übernommen. Für den Käufer entsteht eine Maklercourtage von 3,57 % inklusive Mehrwertsteuer aus dem Kaufpreis. Diese Gebühr ist bei Vertragsabschluss zur Zahlung fällig. Wir dürfen auch für den Anbieter provisionspflichtig tätig sein.
Stichworte
Garage vorhanden, Nutzfläche: 126,00 m², Anzahl der Badezimmer: 1, Bundesland: Bayern