Version: 8.24.1Navigation überspringen
Mietkosten auf Anfrage
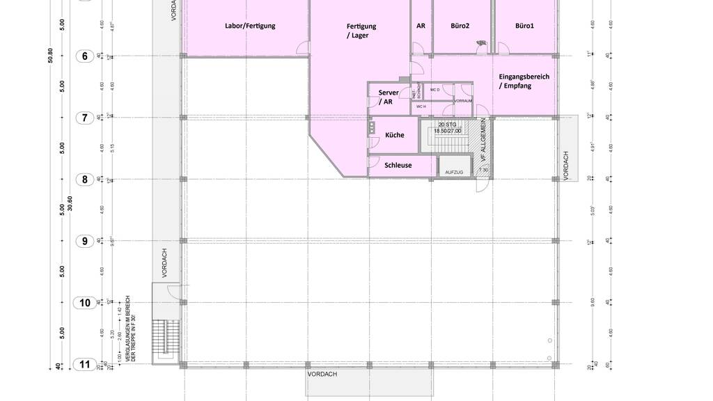
7 Zimmer  •  270 m² Bürofläche
Immowelt logo

Büro zur Miete • provisionsfrei
Mietkosten auf Anfrage
7 Zimmer  •  270 m² Bürofläche

Provisionsfrei - Büro-Lager & Praxisräume im 1.OG auf 270m² in Karlsfeld bei München

Das Geschäftshaus in der Ohmstraße 12, Karlsfeld, besteht aus zwei separaten Gebäudeteilen, Haus 1 und Haus 2. Dieses vielseitig nutzbare Gewerbeobjekt eignet sich ideal für Büros, Praxen, Produktionsstätten, Lagerflächen sowie Einzelhandelsgeschäfte.

Auf einer überbauten Grundfläche von 1.300 m² können Einheiten zwischen 150 m² und 3.500 m² Bruttogeschossfläche konfiguriert werden.

Das Erdgeschoss bietet zwei separate Eingänge und drei Sektionaltore. Die oberen Stockwerke sind über zwei innenliegende Treppenhäuser und zwei Personen-/Lastenaufzüge in den jeweiligen Gebäudeteilen zugänglich. Zusätzlich gibt es auf der Westseite des Gebäudes eine Fluchttreppe.

Die Stark-, Schwachstrom- und EDV-Verkabelung erfolgt unterputz oder in den vorgesehenen Medienschächten und Kabelkanälen. Das gesamte Bürogebäude ist mit einer modernen und komfortablen digitalen Schließanlage ausgestattet und verfügt über einen Glasfaseranschluss der Deutschen Telekom.

Die Wärmeversorgung erfolgt über das Fernwärmenetz der Stadtwerke Karlsfeld, welches nachhaltig mit Holzhackschnitzeln betrieben wird.

Auf den Außenanlagen des Gebäudes stehen 86 Pkw-Stellplätze und 5 Garagen zur Verfügung.

Merkmale

  • Bezug: sofort
  • 1. Geschoss
  • Personenaufzug
  • 3 Stellplätze: 3 Außen-Stellplätze
  • Gäste-WC
  • Barrierefrei
  • Bodenbelag: Fliesen
+ Elektrische Außenjalousien mit Windwächter
+ Manuelle Innenlamellen-Anlagen
+ EDV Verkabelung (CAT7)
+ Personen-/Lastenaufzug (1.000 kg)
+ getrennte Damen und Herren WC's
+ Büro1 + Flur in R11 gefliest
+ großzügige Fensterflächen
+ Barrierefreier Mietbereich
+ Glasfaseranschluss
+ Starkstromanschluss
+ Fernwärme aus Biomasse Heizkraftwerk Karlsfeld

** Eine individuelle Raumaufteilung sowie weitere Veränderungen der Ausstattungsmerkmale sind nach Rücksprache möglich **

Realisiere Dein Projekt

Bausubstanz und Energie

Der Anbieter hat keine Informationen zum Energieverbrauch bereit gestellt.
  • EnergieträgerFernwärme, Holz
Immowelt logo

Mietkosten

Miete auf Anfrage
Provision für Mieter
provisionsfrei
Kaution
keine Angabe
Weitere Preisinformationen
3 Stellplätze

Lage

address-icon
Ohmstraße 12Karlsfeld (85757)
Die Gemeinde Karlsfeld ist mit ihren ca. 18.000 Einwohnern und einer Fläche von ca. 16 Quadratkilometern die größte Gemeinde im Landkreis Dachau. Die Immobilie befindet sich in zentraler Lage des Karlsfelder Gewerbegebiets und in unmittelbarer Nähe des Stadtzentrums.

Mit der nächstgelegenen Anbindung an die Münchnerstraße sparen Sie sich wertvolle Zeit, um sowohl die Autobahn A8 - A9 - A92 als auch die Autobahn A99 in wenigen Minuten zu erreichen.

Gewerbesteuer Hebesatz: 350 % für Karlsfeld.
(München 490%)

sonstige Verkehrsnetze:
+ Buslinie 711 Karlsfeld ca. 500m entfernt, 2 Gehminuten
+ S-Bahn, S2 Karlsfeld ca. 3,4 km entfernt, ca 8 Fahrminuten
+ Flughafen München ca. 28km, ca. 20 Fahrminuten
+ Hauptbahnhof München ca. 15km, ca. 25 Fahrminuten
+ Neue Messe München ca. 34 km entfernt, ca. 27 Fahrminuten

Weitere Informationen

Sonstiges Unsere Angebote erfolgen freibleibend und unverbindlich.
Irrtum und Zwischenverkauf bleiben vorbehalten.

[URL="https://outlook.office365.com/book/Besichtigungstermine@ampere.gmbh/s/ViUa56sERUe-uS5pXuuhvA2"]Besichtigungstermin[/URL] Energiepass Energieausweis wird bei Besichtigung vorgelegt. Stichworte Stellplatz vorhanden, Gesamtfläche: 3.500,00 m², Bundesland: Bayern, 2 Etagen, modernisiert: 2024, Zustand nach Vereinbarung, Distanz zum Flughafen: 28, Distanz zum Hauptbahnhof: 15, Distanz zur Autobahn: 2.5, Distanz zum Bus: 0.5

Weitere Services

Lust auf eine Besichtigung?
Eine Frage zur Immobilie?
Nachricht hinzufügen
Mit der Nutzung der oben angegebenen Telefonnummer oder durch Klicken auf „Kontaktieren“ akzeptierst Du die Allgemeinen Nutzungsbedingungen, denen Du jederzeit widersprechen kannst. Weitere Informationen zum Datenschutz

Über den Anbieter

Ampere GmbH
Ampere GmbHMaklerbüro
Ohmstr. 12, 85757 Karlsfeld
partner badge
Partnerschaft
Herr Ernst Hindelang jun.Dein Kontakt
Online-ID: 2fgh952
Referenznummer: 420-102
Ampere GmbH
Ampere GmbH
Nachricht hinzufügen
Mit der Nutzung der oben angegebenen Telefonnummer oder durch Klicken auf „Kontaktieren“ akzeptierst Du die Allgemeinen Nutzungsbedingungen, denen Du jederzeit widersprechen kannst. Weitere Informationen zum Datenschutz
Wie zufrieden bist du mit dieser Seite (nicht mit der Immobilie selbst)?