Wohnung in Valtournenche
Penthouse
Neue Wohnsiedlung in Valtournenche (Stadtzentrum) - "Les Deux Chalets"
Im "Cervino Skiparadies" in Valtournenche gibt es diese prächtige, noch zu errichtende Wohnung mit 98 m² Fläche.
"Les Deux Chalets" befindet sich im historischen Dorf Valtournenche (1.524 Meter über dem Meeresspiegel), nahe Bars, Restaurants, Geschäften und nur 300 Meter vom Beginn der Skilifte Cime Bianche und des Skigebiets CERVINO SKI PARADISE (Breuil-Cervinia - Valtournenche - Chamois - Torgnon - Zermatt) mit über 350 km Pisten.
Das Chalet ist Teil eines Komplexes, der aus zwei miteinander verbundenen Chalets besteht.
* Chalet 1 besteht aus zwei Wohnungen
* Chalet 2 besteht aus vier Wohnungen
* Die Preise sind 10 % Mehrwertsteuer und 3 % Agenturprovision (ohne Mehrwertsteuer).
In Chalet 2 steht die Wohnung Kapitel 2.6 zum Verkauf, wie unten beschrieben
Alle Abschlusszahlungen werden gemäß italienischem Recht durch eine Anzahlung garantiert, um die Käufer zu schützen.
Das Projekt:
Das Wohnungsprojekt befindet sich zum Zeitpunkt des Schreibens (November 2023) noch in Entwicklung, was bedeutet, dass frühe Käufer die Möglichkeit haben, Änderungen am Grundriss vorzuschlagen. Wenn Sie spezifische Anforderungen oder eine persönliche Vision für das Layout haben, steht unser Architekt Ihnen zur Verfügung, um dabei zu arbeiten.
Wohnung CH2.6:
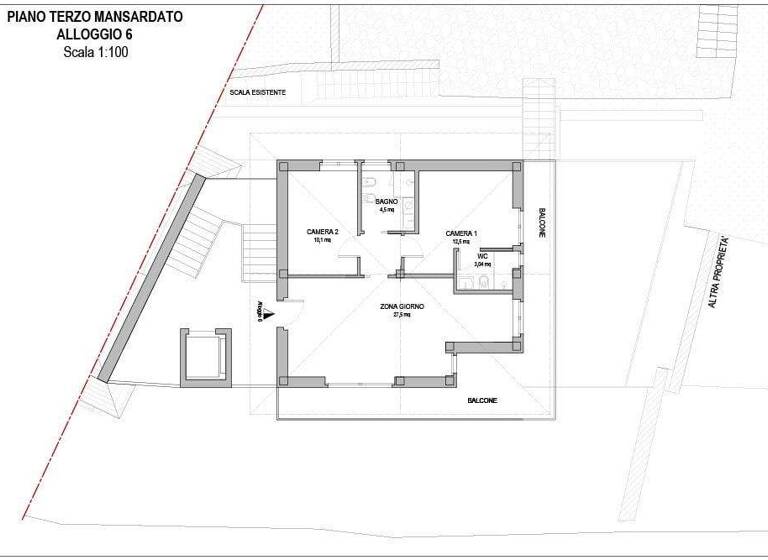
* Apartment CH2.6 befindet sich im Erdgeschoss (Piano Terra) (98 m²) und besteht aus: einem geräumigen Wohnzimmer, einer offenen Küche, 3 Schlafzimmern und 2 Badezimmern.
* Ein Balkon und eine Terrasse von 75 m²
* Auf Straßenniveau gibt es eine Garage, einen Lagerraum und einen unüberdachten Parkplatz.
Moderne Architektur, geschickt mit traditionellen Materialien verbunden
Innovative Bauweise entsteht durch sorgfältige Planung mit modernem Stil und die Verwendung prestigeträchtiger Materialien und Nischen, die dem Bau den Geschmack und die Wärme von Berghäusern verleihen.
Neue Anlagentechnologie, Wärmedämmung sowie handgefertigte Fenster und Türen bieten unseren Immobilien eine optimale Energieeffizienz für niedrige Betriebskosten und gleichzeitig den höchsten Wohnkomfort.
Tradition und Innovation für ein einladendes Zuhause
Durch die Verwendung natürlicher, umweltfreundlicher Materialien bringen wir den Geschmack und die Wärme der alpinen Tradition in Ihr Zuhause.
Eine sichere Immobilieninvestition, in einem zunehmend internationalen Umfeld und mit der Sicherheit einer garantierten Wertsteigerung über die Zeit - dies ist das richtige Haus am richtigen Ort für die ganze Familie.
Standort:
"Les Deux Chalets" befindet sich im historischen Dorf Valtournenche (1.524 Meter über dem Meeresspiegel) in der Nähe von Bars, Restaurants, Geschäften und nur 300 Meter vom Start der Skilifte Cime Bianche und des Skigebiets CERVINO SKI PARADISE https://www.cervinia.it/en (Breuil-Cervinia - Valtournenche - Chamois - Torgnon - Zermatt) mit über 350 km Pisten und einem der größten Skigebiete der Welt.
Planung:
Die Fertigstellung des Chalets ist für den Sommer 2025 geplant.