+++PREISSENKUNG+++NEUBAUPROJEKT+++Exklusive Ferienwohnung mit Balkon im Ostseebad Zingst
Bei unserem Angebot handelt es sich um "Wohnung 5" in einer kleinen und stilvollen Wohnanlage mit jeweils 5 Ferienwohnungen. Die modern und hochwertig ausgestatteten 2 Raumwohnungen haben eine Wohnfläche zwischen 41 und 50 m². Das Wohnhaus wird nach dem neuesten Stand der Technik errichtet und bietet Ihnen alles für ein angenehmes Wohnen.
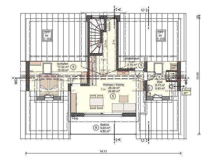
Der südlich ausgerichtete Balkon, der hier angebotenen Wohnung, ist vom Wohn- bzw. Kochbereich aus begehbar, des Weiteren bietet er sich für gemütliche Stunden ob zum grillen oder chillen an. Helle Räume, eine gute Raumaufteilung, ein Tageslichtbad mit Dusche sprechen für diese exklusive Ferienwohnung.
Behagliche Wärme entfaltet sich in jedem Raum durch den Einsatz einer Fußbodenheizung, die durch eine Luft-Wasser-Wärmepumpe betrieben wird. Alle Fenster sind in 3- fach Isolierverglasung und zusätzlich mit elektrischen Rollläden ausgestattet. Zur Wohnung gehört ein großzügiger PKW-Stellplatz mit einer Abstellfläche für Fahrräder.
Merkmale
Bezug: 2025
Dachgeschoss, 2. Geschoss
Außen-Stellplatz
Balkon
DSL-Anschluss
kontrollierte Be- und Entlüftungsanlage
Badezimmer: Bad mit Dusche, Bad mit Fenster
Bodenbelag: Fliesen, Kunststoff
Grundrisse
Grundrisse
1 / 1
Realisiere Dein Projekt
Bausubstanz und Energie
Der Anbieter hat keine Informationen zum Energieverbrauch bereit gestellt.
Zustand der ImmobilieNeubau, Erstbezug
HeizungsartZentralheizung: Fußbodenheizung
EnergieträgerElektro, Luft-/Wasser-Wärmepumpe
Preisdetails
Kaufpreis
361050 €361.050 €
7.250 €/m²
Provision für Käufer
provisionsfrei
Geschätzte Gesamtkosten
389.934 €1
Kaufpreis
361.050 €
Kaufnebenkosten
28.884 €
2
Notarkosten (1,5%)
5.416 €
Grunderwerbsteuer (6%)
21.663 €
Grundbucheintrag (0,5%)
1.805 €
1Der angezeigte Wert ist eine automatisch berechnete Schätzung von immowelt.
2Bei den Angaben handelt es sich um ortsübliche Werte. Individuelle Kosten können abweichen.
Lage
Zingst (18374)
Der Anbieter hat die genaue Adresse nicht freigegeben
Das Ostseeheilbad Zingst ist eine amtsfreie Gemeinde im Nordwesten des Landkreises Vorpommern-Rügen in Mecklenburg-Vorpommern, Landesteil Vorpommern. Zur Gemeinde gehört fast die gesamte gleichnamige Halbinsel sowie die ihr südlich vorgelagerten Inseln Kirr und Barther Oie. Die Gemeinde ist seit 2002 ein staatlich anerkanntes Seeheilbad.
Die Halbinsel Zingst oder der Zingst ist der östliche Teil der Halbinsel Fischland-Darß-Zingst, die zwischen den Städten Rostock und Stralsund an der südlichen Ostseeküste liegt. Der Zingst schließt sich in einer Länge von knapp 20 km und einer Breite von 2 bis 4 km von Westen nach Osten östlich an die Halbinsel Darß an und wird nördlich von der Ostsee und südlich vom Barther Bodden und Grabow begrenzt, die zur Darß-Zingster Boddenkette gehören. Durch Versandung ist die ehemals östlich vorgelagerte Insel Großer Werder eine Halbinsel am Zingst geworden.
Die Verbindung zum Darß im Westen ist eine nur etwa 100 m breite Landbrücke direkt an der Ostsee. An dieser Stelle wurde im Jahre 1874 nach dem großen Ostseesturmhochwasser 1872 der Prerower Strom künstlich geschlossen, der vorher Bodden und Ostsee verbunden hatte. Erst seit dieser Zeit ist Zingst keine Insel mehr.
Der Siedlungskern des Ortes Zingst liegt zwischen dem Freesenbruch im Westen, der Ostsee im Norden, der Alten Straminke, einem ehemaligen Meeresarm mit einem ihn umgebendem Sumpfgebiet, im Osten und dem Zingster Strom im Süden. Die Gemeinde liegt kaum oberhalb des Meeresspiegels, so dass der Ort zum Schutz vor Sturmhochwassern von Deichen eingeschlossen ist. Östlich des Hauptortes am Zingster Strom befindet sich die Ortslage Müggenburg. Östlich der Gemeinde liegt ein größeres, sehr wildreiches Waldgebiet, der Osterwald. Daran schließen sich die Sundischen Wiesen an. Östlichster Punkt der Halbinsel ist der Pramort.
Der dominierende Wirtschaftsfaktor auf der Halbinsel ist der Tourismus. Durch den Bau zahlreicher Ferienhäuser und Hotels stieg die Zahl der Übernachtungen seit der Wende stetig an. Mehrere Zeltplätze befinden sich auf der Halbinsel. So wurden im Jahr 2001 erstmals über eine halbe Million Übernachtungen registriert. Die beiden größten Hotels sind das Steigenberger-Hotel und das Resort-Hotel Vier Jahreszeiten mit jeweils rund einhundert Betten.
Weitere Informationen
Eckdaten:
+++PREISSENKUNG++++
Wohnung 05/ 2.OG: + 2- Raumwohnung ca. 49,80 m² inkl. 50% der Balkonfläche, 1 PKW-Stellplatz inkl. Abstellfläche für 2 Fahrräder
+ Kaufnebenkosten wie Grunderwerbsteuer, Notar und Gerichtskosten sowie etwaige Finanzierungskosten sind vom Erwerber zu tragen
Ausstattung: + 1 Wohnbereich mit offener Küche + 1 Schlafzimmer + 1 Bad mit Dusche + 1 Balkon + 1 PKW-Stellplatz inkl. Abstellfläche für 2 Fahrräder + hochwertige Sanitärausstattung namhafter Hersteller + Fußbodenheizung + Rollläden elektrisch
Besichtigungstermine:
Hat dieses exklusive Angebot Ihr Interesse geweckt und wünschen Sie ein persönliches Beratungsgespräch, dann lassen Sie es uns einfach wissen! Wir sind gerne für Sie da! Sie erreichen uns Montag-Freitag von 8.00-16.00 Uhr.
Sonstiges:
Das Mehrfamilienhaus ist bereits projektiert und genehmigt, Wohnungsübergabe nach Absprache. *Nach §13b Abs.2 Nr.3 und Abs.5 UStG. ist der Leistungsempfänger Steuerschuldner der Umsatzsteuer. Der Rechnungsaussteller wird im Notarvertrag gemäß §9 UStG. auf die Umsatzsteuerbefreiung gemäß §4 Nr.9 a UStG. verzichten. Bei Eigennutzung würde die Mehrwertsteuer anfallen. Änderungen des Preises oder der Ausstattungen, sowie Irrtümer oder Zwischenverkauf sind vorbehalten. Es gilt die jeweilige Baubeschreibung und Preisliste der Firma BAUTEAM GmbH Stralsund. Für Angaben von Dritten und/oder Behörden kann keine Gewähr übernommen werden. Hinweis zu den gesetzlichen Pflichtangaben gemäß des GEG 2020: Die hier angebotene Eigentumswohnung ist ein Neubauprojekt, daher liegt noch kein Energieausweis vor. Dieser wird Ihnen spätestens im Rahmen der Erstellung des Objektes ausgehändigt.
Stichworte
Versorgung: Städtische Wasserversorgung, Städtische Stromversorgung
Sonstiges: Neubaustandard