Version: 8.25.1Navigation überspringen
869 €
3 Zimmer  •  79 m²  •  1. Geschoss  •  frei ab 01.07.2026
Immowelt logo

Wohnung zur Miete
869 €
3 Zimmer  •  79 m²  •  1. Geschoss  •  frei ab 01.07.2026

Hochwertiges Wohnen in ruhiger Lage mit Weitblick - 3 Zimmerwohnung

Die Wohnung befindet sich in einem Vierfamilienhaus in Engelskirchen Loope, in einer ruhigen Wohnstraße gelegen mit einem herrlichen Weitblick ins Bergische Land. Die Errichtung erfolgt nach den neuesten Energiestandards und in einer hochwertigen Ausführung. Die Grundrisse der Wohnungen sind alle offen gestaltet und die großformatigen Fenster sorgen für eine lichtdurchflutete Atmosphäre in allen Räumen. Alle Etagen des Hauses lassen sich über einen Aufzug erreichen und die Wohnungen sind alle barrierefrei ausgeführt. Die Balkone und Terrassen sind südlich ausgerichtet und bieten Platz um sonnige Stunden zu genießen. Zu jeder Wohnung ist ein Kellerraum im Erdgeschoss zugeordnet und die vor dem Haus befindlichen Stellplätze runden das perfekte Angebot ab. Hier heißt es: Einziehen und wohlfühlen.

Merkmale

  • frei ab 01.07.2026
  • 1. Geschoss
  • Barrierefrei
  • Personenaufzug
  • Keller
  • Balkon
Alle Wohnungen werden in den Bädern mit großformatigen Fliesen ausgelegt und die Duschen sind bodengleich ausgeführt. Es handelt sich bei allen Bädern um Tageslichtbäder die mit modernen Einbauten versehen sind. Die Wohn- und Schlafräume werden alle mit einem hochwertigen Natursteinboden ausgelegt und die gesamte Wohnung wird mit einem Flies tapeziert und weiß gestrichen. Die überwiegend bodentiefen Fenster sorgen in allen Räumen für eine helle und lichtdurchflutete Atmosphäre und der südlich ausgerichtete Balkon lässt Sie die ruhige Wohnlage genießen.

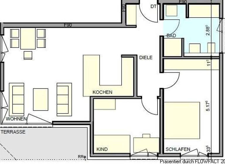
Grundrisse

Grundrisse
1 / 1

Realisiere Dein Projekt

Bausubstanz und Energie

Möchtest du Details zum Energieverbrauch?info_energy_calculation-icon
  • Baujahr2018
  • Zustand der Immobilieneuwertig
  • HeizungsartZentralheizung
Immowelt logo

Mietkosten

Warmmiete
1.119 €
Kaltmiete
11 €/m²
869 €
Nebenkosten
250 €
Heizkosten
in Warmmiete enthalten
Kaution
1390 €

Lage

address-icon
Engelskirchen-LoopeEngelskirchen (51766)
Der Anbieter hat die genaue Adresse nicht freigegeben
Die Häuser werden in Engelskirchen Loope in einer ruhigen Seitenstraße errichtet. Loope liegt rund vier Kilometer westlich von Engelskirchen an der Bundesstraße 55, die einen schnellen Anschluss zur A4 bietet. Loope ist der größte Ortsteil Engelskirchens und verfügt über neben allen Einrichtungen des täglichen Bedarfs auch über eine Grundschule sowie einen Kindergarten. Die Katholischen Kliniken Oberberg, die Aggertalklinik und Ärzte aller Fachrichtungen lassen sich in wenigen Minuten mit dem Auto erreichen. Durch die Lage in einem gewachsenen Wohngebiet wohnen Sie hier Ruhig und dennoch mit einem schnellen Anschluss in die umliegenden Städte und Gemeinden.

Weitere Informationen

Sonstiges Zögern Sie nicht und vereinbaren Sie einen gemeinsamen Besichtigungstermin - ein persönlicher Eindruck vor Ort ist durch nichts zu ersetzen. Energiepass Energieausweis wird bei Besichtigung vorgelegt. Stichworte Ergänzendes dezentrales Warmwasser, Anzahl der Schlafzimmer: 2, Anzahl der Badezimmer: 1, Anzahl Balkone: 1, 3 Etagen, modernisiert: 2018

Weitere Services

Lust auf eine Besichtigung?
Eine Frage zur Immobilie?
Mit einer persönlichen Nachricht hast du bessere Chancen auf eine Antwort.
Mit der Nutzung der oben angegebenen Telefonnummer oder durch Klicken auf „Kontaktieren“ akzeptierst Du die Allgemeinen Nutzungsbedingungen, denen Du jederzeit widersprechen kannst. Weitere Informationen zum Datenschutz

Über den Anbieter

Hochstraße 20, 51688 Wipperfürth
partner badge
6 Jahre Partnerschaft
Pierre SchildbergDein Kontakt
Keine Telefonnummer hinterlegt
Keine Telefonnummer hinterlegt
Online-ID: 266KYWE5DUHT
Referenznummer: 187540
Schmitz Immobilienservice
Schmitz Immobilienservice
Bewertung: 3,9 von 5 Sternen
Mit einer persönlichen Nachricht hast du bessere Chancen auf eine Antwort.
Mit der Nutzung der oben angegebenen Telefonnummer oder durch Klicken auf „Kontaktieren“ akzeptierst Du die Allgemeinen Nutzungsbedingungen, denen Du jederzeit widersprechen kannst. Weitere Informationen zum Datenschutz
Wie zufrieden bist du mit dieser Seite (nicht mit der Immobilie selbst)?