




Halle/Industriefläche zur Miete • provisionsfreiMietkosten auf Anfrage15.454 m² Lagerfläche • teilbar ab 4.124 m²
Mietkosten auf Anfrage
15.454 m² Lagerfläche • teilbar ab 4.124 m²
Neubau für Logistik nahe der A114!
Merkmale
- Bezug: Q4 2026/Q1 2027
- 99 Stellplätze
- Laderampe
- LKW-Zufahrt
- Raumaufteilung flexibel
- Bodenbelag: Estrich
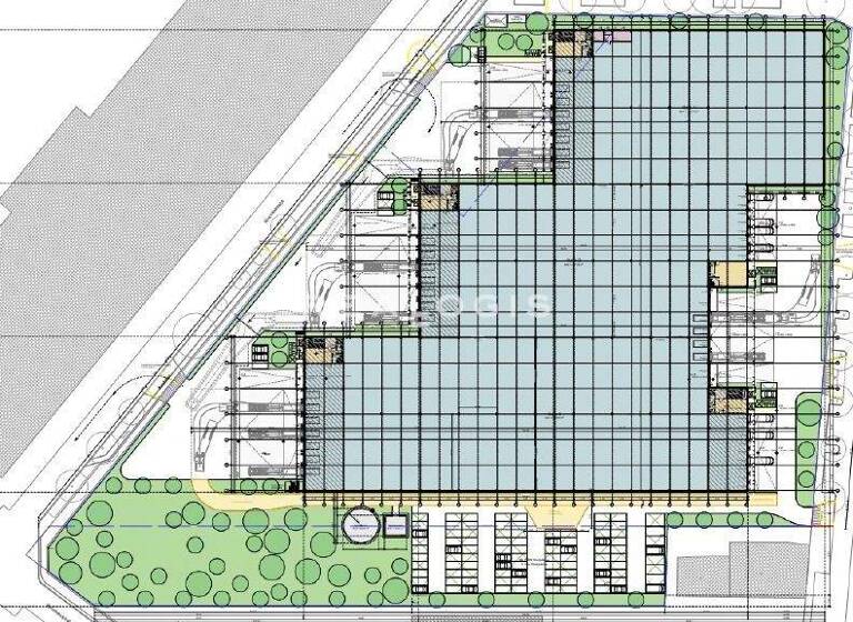
Grundrisse
Grundrisse
1 / 1
Realisiere Dein Projekt
Bausubstanz und Energie
Der Anbieter hat keine Informationen zu Energieverbrauch oder Zustand der Immobilie bereit gestellt.
Mietkosten
Miete auf Anfrage
Provision für Mieter
provisionsfrei; Provisionsfrei
Dieses Angebot unterbreiten wir Ihnen --- provisionsfrei für den Mieter---
Dieses Angebot unterbreiten wir Ihnen --- provisionsfrei für den Mieter---
Kaution
keine Angabe
Lage

Weißensee, Berlin (13088)
Der Anbieter hat die genaue Adresse nicht freigegeben
Weitere Informationen
Weitere Services
Lust auf eine Besichtigung?
Eine Frage zur Immobilie?
Über den Anbieter
Realogis Immobilien Berlin GmbHMaklerbüro
Wilhelm-Kabus-Str. 77, 10829 Berlin
Partnerschaft

Herr Miguel SchwarzDein Kontakt
Online-ID: 297395c
Referenznummer: 1000275
Wie zufrieden bist du mit dieser Seite (nicht mit der Immobilie selbst)?


