Version: 8.24.1Navigation überspringen
FALC Immobilien GmbH & Co. KG
1.112.000 €
6 Zimmer  •  380 m²  •  1.100 m² Grundstück

Einfamilienhaus zum Kauf • provisionsfrei
1112000 €
2.855 €/m²
6 Zimmer  •  380 m²  •  1.100 m² Grundstück

"Exklusive Villa in idyllischer Lage mit einem wunderschönen Anwesen eingebettet in ein ruhiges Eck.

Zum Verkauf steht ein luxuriöses freistehendes Haus in Ozankoy, Kyrenia. Das im Jahr 2013 erbaute Haus wird im Moment umfassend renoviert und wird in einem erstklassigen Zustand übergeben. Mit einer Wohnfläche von ca. 380 m² bietet das Haus auf drei Etagen ausreichend Platz für eine Familie.

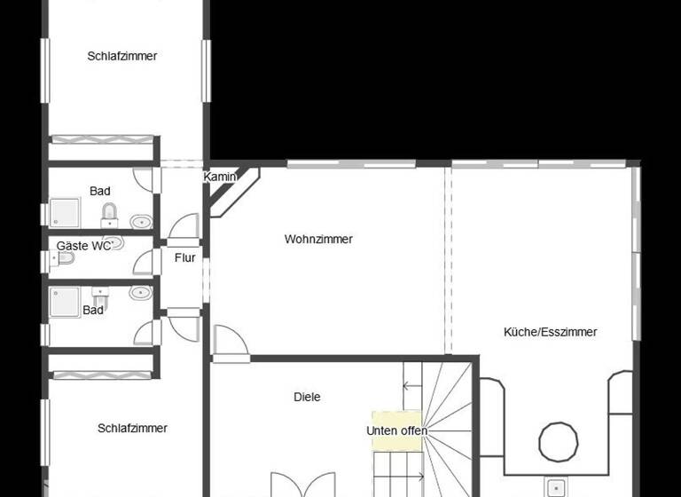
Das Haus verfügt über insgesamt sechs Zimmer, darunter vier Schlafzimmer und vier Badezimmer. Die hochwertige Ausstattung und die luxuriöse Bauweise machen dieses Objekt zu einem echten Highlight. Eine moderne Einbauküche, ein Gäste-WC und ein Kamin sorgen für zusätzlichen Komfort.

Die Immobilie ist vollständig klimatisiert und verfügt über eine Terrasse und einen Balkon, die zum Entspannen und Genießen der mediterranen Atmosphäre einladen. Ein Swimmingpool rundet das Angebot ab und bietet an heißen Tagen eine erfrischende Abkühlung.

Das Haus ist ab sofort verfügbar und eignet sich ideal für anspruchsvolle Käufer, die ein exklusives Wohnobjekt in einer attraktiven Lage suchen. Lassen Sie sich diese einmalige Gelegenheit nicht entgehen und vereinbaren Sie noch heute einen Besichtigungstermin.

Merkmale

  • Bezug: sofort
  • 1.100 m² Grundstück
  • Einbauküche
  • 2 Stellplätze: 2 Außen-Stellplätze
  • Gäste-WC
  • Balkon
  • Terrasse

Grundrisse

Grundrisse
1 / 3

Virtueller Rundgang

3D tour

Realisiere Dein Projekt

Bausubstanz und Energie

Der Anbieter hat keine Informationen zum Energieverbrauch bereit gestellt.
  • Baujahr2013
  • HeizungsartZentralheizung
  • EnergieträgerElektro
MediumRectangleTop

Preisdetails

Kaufpreis
1112000 €
2.855,26 €/m²
Provision für Käufer
provisionsfrei
Weitere Preisinformationen
2 Stellplätze

Lage

address-icon
Ozankoy (99320)
Fallback location image
Die Karte ist nicht verfügbar.
Das freistehende Haus befindet sich in der charmanten Stadt Ozankoy auf Zypern. Die Immobilie mit der Hausnummer 2 liegt in einer ruhigen Wohngegend und ist ideal für Familien geeignet.

Die Lage des Hauses zeichnet sich durch ihre Nähe zum Stadtzentrum aus, das nur 1 Kilometer entfernt ist. Hier finden Sie eine Vielzahl von Einkaufsmöglichkeiten, Restaurants und Unterhaltungsmöglichkeiten.

Auch die Autobahn ist nur 2,5 Kilometer entfernt, was eine gute Anbindung an die umliegenden Städte und Regionen bietet.

Für Familien mit kleinen Kindern ist die Nähe zum Kindergarten und zur Grundschule von Vorteil. Der Kindergarten ist nur 0,8 Kilometer entfernt und die Grundschule befindet sich in einer Entfernung von 1 Kilometer.

Die Lage des Hauses kombiniert die Vorzüge einer ruhigen Wohngegend mit der Nähe zu allen wichtigen Einrichtungen und Verkehrsanbindungen.

Weitere Informationen

Sonstiges Bitte beachten Sie, dass kein Energieausweis vorhanden ist, da es keine Pflicht zur Erstellung gibt. Die genaue Lage und weitere Details zur Immobilie können Sie gerne bei uns erfragen. Wir stehen Ihnen jederzeit gerne zur Verfügung und freuen uns auf Ihre Anfrage. Die Objektbeschreibung beruht ganz oder zum Teil auf Angaben des Eigentümers. Für die Richtigkeit oder Vollständigkeit übernehmen wir keine Gewähr.

FALC Exposé Homepage - https://www.falcimmo.de/immobilie/intern-1842062.html Stichworte Stellplatz vorhanden, Anzahl der Schlafzimmer: 4, Anzahl der Badezimmer: 4, Anzahl Balkone: 1, Anzahl der Wohneinheiten: 1, Bundesland: Kyrenia, 3 Etagen, Distanz zum Flughafen: 40.0, Distanz zur Autobahn: 2.5

Weitere Services

Lust auf eine Besichtigung?
Eine Frage zur Immobilie?
Nachricht hinzufügen
Mit der Nutzung der oben angegebenen Telefonnummer oder durch Klicken auf „Kontaktieren“ akzeptierst Du die Allgemeinen Nutzungsbedingungen, denen Du jederzeit widersprechen kannst. Weitere Informationen zum Datenschutz

Über den Anbieter

Humperdinckstraße 3, 53773 Hennef
partner badge
10 Jahre Partnerschaft
Frau Leonie LaarmannDein Kontakt

Weitere Unterlagen

Online-ID: 2lkt55d
Referenznummer: FALC-AnKu-40811
FALC Immobilien GmbH & Co. KG
FALC Immobilien GmbH & Co. KG
Bewertung: 4 von 5 Sternen
Nachricht hinzufügen
Mit der Nutzung der oben angegebenen Telefonnummer oder durch Klicken auf „Kontaktieren“ akzeptierst Du die Allgemeinen Nutzungsbedingungen, denen Du jederzeit widersprechen kannst. Weitere Informationen zum Datenschutz
MediumRectangleTop
MediumRectangleTop
Wie zufrieden bist du mit dieser Seite (nicht mit der Immobilie selbst)?