Version: 8.25.1Navigation überspringen
1.521 €
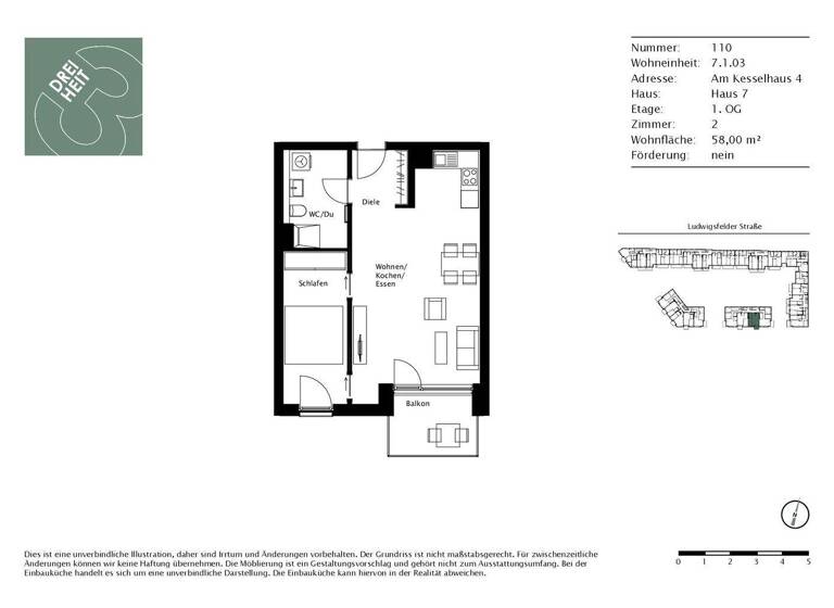
2 Zimmer  •  58 m²  •  1. Geschoss  •  frei ab 01.05.2026
Immowelt logo

Wohnung zur Miete
1.521 €
2 Zimmer  •  58 m²  •  1. Geschoss  •  frei ab 01.05.2026

Wohnen im Dreiheit: Gemütliche 2 Zimmer Wohnung!

Die Wohnung ist Teil des Projekts DREIHEIT und liegt im Norden des Quartiers DIAMALTPARK. In dieser 2 Zimmer Wohnung finden Paare und anspruchsvolle Singles ein schickes Zuhause. Die smarte Grundrisslösung schafft ebenso Platz zum Ankommen und Abschalten, Gemeinsamkeit und Rückzug wie Raum zur individuellen Gestaltung. Einladend präsentiert sich das Wohnzimmer, mit Zugang zum Balkon, als Herzstück der 2-Zimmer-Wohnung. Der Koch- und Essbereich bietet Zugang zum gemütlichen Schlafzimmer. Ein Duschbad macht das Raumangebot komplett.

Merkmale

  • frei ab 01.05.2026
  • 1. Geschoss
  • Einbauküche
  • Keller
  • Balkon
  • Außen-Stellplatz
Alle Besonderheiten des DREHEIT auf einen Blick:

Echtholz-Parkettboden in den Wohnbereichen
Fußbodenheizung sowie ein zusätzlicher elektrischer Handtuchheizkörper im Bad
Spiegel mit Spiegelleuchte und randlose WC mit Absenkautomatik im Bad
Bodengleiche Duschen mit Glas-Trennwänden
Voll ausgestattete Einbauküchen
Dreifach-Verglasung
Videogegensprechanlage
Gemeinschaftsdachgärten
Highspeed-Glasfaser-Anschluss

Grundrisse

Grundrisse
1 / 1

Realisiere Dein Projekt

Bausubstanz und Energie

Energieausweis

B
  • Baujahr2021
  • Zustand der ImmobilieNeubau, neuwertig
  • EnergieträgerFernwärme
Immowelt logo

Mietkosten

Warmmiete
1.806 €
Kaltmiete
26,22 €/m²
1.521 €
Nebenkosten
285 €
Heizkosten
in Warmmiete enthalten
Zusätzliche Kosten
Miete pro Stellplatz
110 €
Kaution
4563 €
Weitere Preisinformationen
1 Stellplatz, Miete: 110,00 EUR

Lage

address-icon
Am Kesselhaus 4Allach-UntermenzingMünchen (80999)
Hervorragend gelegen und ökologisch nachhaltig bebaut - Der DIAMALTPARK überzeugt in München-Allach als neues Stadtquartier mit besonderer Wohn- und Lebensqualität. Die innovative und weitläufige Bebauung, integrierte historische Gebäude und ein 10.000 m2 großer Park auf dem 8,5 ha großen Areal machen den DIAMALTPARK zur Wohnanlage mit einzigartigem Charakter und einer Mischung aus Eigentums- und Mietwohnungen, die inmitten großräumig angelegter Grünflächen liegen.

Die großzügige Freiflächenplanung und das Park-Wohn-Konzept schaffen Freiraum für Generationen und eine gelungene Kombination persönlicher Freiheit und beschütztem Wohnen - in ruhiger Lage und guter Nachbarschaft. Auch der Stadtteil selbst, obwohl bedeutender Industriestandort, überzeugt mit liebenswerten ländlichen Strukturen, grünem Umfeld, historischem Kern, Bauernhöfen und Siedlungen.

Die Neuentwicklung historischer Industrieareale wie dem DIAMALTPARK sichert Allach eine lebenswerte Zukunft mit bester Versorgung der Bewohner. Die Landschaftsschutzgebiete Angerlohe und Allacher Forst bieten in nur 2 km Entfernung weitgehend unberührte Natur.

Weitere Informationen

Sonstiges Wir bitten Sie Terminanfragen über das Kontaktformular zu senden.

Bei den Bildern kann es sich um unverbindliche Visualisierungen und Bilder einer Musterwohnung handeln. Gerne können Sie sich im Zuge einer Besichtigung der Wohnung selbst vom DREIHEIT überzeugen.

HAFTUNGSAUSSCHLUSS:
Diese Anzeige dient nur der ersten Information und stellt kein Vertragsangebot dar. Die Anzeige begründet keine vertraglichen Ansprüche. Der Inhalt und die Angaben wurden nach bestem Wissen und Gewissen ermittelt. Für Richtigkeit und Vollständigkeit wird keine Haftung übernommen. Stichworte Tiefgarage vorhanden, Anzahl der Schlafzimmer: 1, Anzahl der Badezimmer: 1, Anzahl Balkone: 1, 5 Etagen

Weitere Services

Lust auf eine Besichtigung?
Eine Frage zur Immobilie?
Mit einer persönlichen Nachricht hast du bessere Chancen auf eine Antwort.
Mit der Nutzung der oben angegebenen Telefonnummer oder durch Klicken auf „Kontaktieren“ akzeptierst Du die Allgemeinen Nutzungsbedingungen, denen Du jederzeit widersprechen kannst. Weitere Informationen zum Datenschutz

Über den Anbieter

Galileistraße 1, 69115 Heidelberg
partner badge
10 Jahre Partnerschaft
Frau Karola LoucasDein Kontakt
Keine Telefonnummer hinterlegt
Keine Telefonnummer hinterlegt
Online-ID: 26YSQWWGJI68
Referenznummer: M-DR-110#EpnLD
Müller Merkle Immobilien GmbH
Müller Merkle Immobilien GmbH
Bewertung: 4,2 von 5 Sternen
Mit einer persönlichen Nachricht hast du bessere Chancen auf eine Antwort.
Mit der Nutzung der oben angegebenen Telefonnummer oder durch Klicken auf „Kontaktieren“ akzeptierst Du die Allgemeinen Nutzungsbedingungen, denen Du jederzeit widersprechen kannst. Weitere Informationen zum Datenschutz
Wie zufrieden bist du mit dieser Seite (nicht mit der Immobilie selbst)?