Version: 8.25.1Navigation überspringen
Winegg Makler GmbH
2.165 €

Bar/Café zur Miete
2.165 €

Ablösefrei! Bar | Café | Bistro nächst Hauptplatz | Große Lagerfläche

Die Liegenschaft befindet sich in der Adlergasse 7, in sehr guter Innenstadtlage und unmittelbarer Nähe zum Hauptplatz, Domplatz und den Fußgängerzonen Wiener Neustadts.

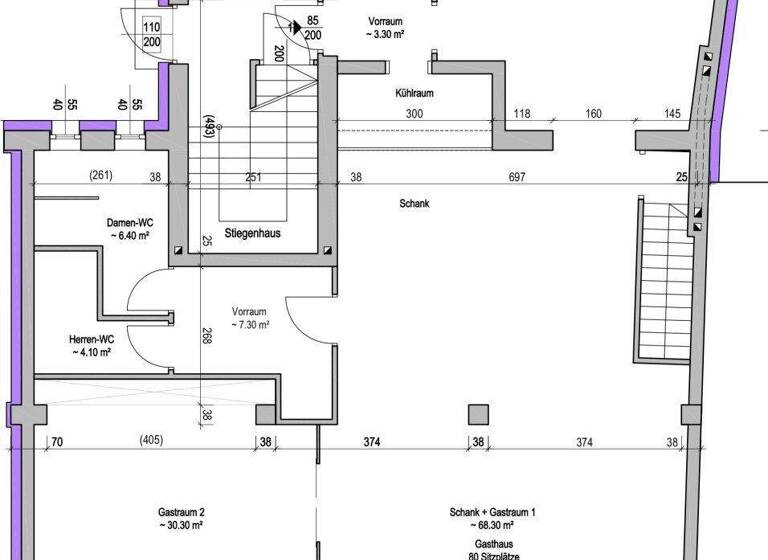
Die Geschäftsfläche befindet sich im Erdgeschoß und bietet eine Gesamtnutzfläche von ca. 211 qm (ca. 145 qm im EG / ca. 66 qm im Kellergeschoß).

Die Gewerbeeinheit verfügt über eine großzügige, straßenseitig ausgerichtete Räumlichkeit inklusive Barbereich. Im hinteren, hofseitig ausgerichteten Teil befindet sich eine weitere Räumlichkeit mit Getränkekühlschränken, diversen Lagermöglichkeiten und/oder Platz für einen kleinen Küchenbereich. Der Kellerbereich inkl. natürlicher Belüftung bietet einen großen Raum und ist direkt vom Geschäftslokal über eine Innentreppe zu begehen. Der Gesamtzustand der Immobilie ist als gut zu bewerten.

Das Mietverhältnis ist unbefristet.

 

Nettomiete: € 2.165,- (Hauptmietzins & Betriebskosten zzgl. 20% USt)

Gesamtmiete: € 3.241,19  (inkl. Betriebskosten und 20 % Umsatzsteuer)

Kaution: 3 bis 6 Bruttomonatsmieten (je nach Bonität des Mieters)

Provision: 3 Bruttomonatsmieten zzgl. 20% USt

Vertragserrichtungskosten: € 240,-

Vergebührung des Mietvertrags an das Finanzamt: € 1.167,-

Die Kosten für Strom und Gas (Heizung/Warmwasser) sind im Mietzins nicht inkludiert.

 

Dieses Objekt wird Ihnen unverbindlich und freibleibend zur Anmietung angeboten.
Oben angeführte Angaben basieren auf Informationen und Unterlagen der Eigentümerin und sind unsererseits ohne Gewähr.
Als Vermittlungshonorar gelten die allgemeinen Geschäftsbedingungen und die Verordnung für Immobilienmakler des BM für Handel, Gewerbe und Industrie, BGBL. 297/1996. Für den Fall, dass es diesbezüglich zu einem entsprechenden Rechtsgeschäft kommt, verrechnen wir Ihnen eine Vermittlungsprovision von 2 Bruttomonatsmieten zuzüglich der gesetzlichen Mehrwertsteuer. Wir möchten noch darauf hinweisen, dass wir in einem wirtschaftlichen Naheverhältnis zur Vermieterin stehen.

Wir weisen darauf hin, dass zwischen dem Vermittler und dem zu vermittelnden Dritten ein familiäres oder wirtschaftliches Naheverhältnis besteht.

Der Vermittler ist als Doppelmakler tätig.

Merkmale

  • Bezug: ab sofort
  • Bodenbelag: Fliesen

Grundrisse

Grundrisse
1 / 1

Realisiere Dein Projekt

Bausubstanz und Energie

Heizwärmebedarf (HWB)

B

Gesamtenergieeffizienz (fGEE)

Der Anbieter hat keine Daten zum Energieausweis hinterlegt.
  • Zustand der ImmobilieNeubau, Gepflegt
  • HeizungsartZentralheizung
  • EnergieträgerGas
MediumRectangleTop

Mietkosten

Nettokaltmiete
2.165 €
Betriebskosten
535,99 €
Provision für Mieter
9.723,56 € inkl. 20% USt.
Kaution
9.723,57 €
Weitere Preisinformationen
Nettokaltmiete: 2.165,00 EUR

Lage

address-icon
AdlergasseWiener Neustadt (2700)
Die Infrastruktur ist als sehr gut zu bewerten. So befinden sich diverse Autobuslinien in unmittelbarer Nähe, auch der Bahnhof ist in ca. 10 Gehminuten schnell zu erreichen.
Die Nahversorgung ist durch diverse Geschäfte aller Art exzellent gegeben.

Weitere Informationen

Stichworte Nutzfläche: 211,00 m², Anzahl der separaten WCs: 3, Kellerfläche: 66,00 m², Bundesland: Niederösterreich

Weitere Services

Lust auf eine Besichtigung?
Eine Frage zur Immobilie?
Nachricht hinzufügen
Mit der Nutzung der oben angegebenen Telefonnummer oder durch Klicken auf „Kontaktieren“ akzeptierst Du die Allgemeinen Nutzungsbedingungen, denen Du jederzeit widersprechen kannst. Weitere Informationen zum Datenschutz

Über den Anbieter

Herrengasse 1-3 / 4. Stockwerk, 1010 WIEN
Frau Katrin Kuba
Frau Katrin KubaDein Kontakt
Online-ID: 25CPW52QY7F1
Referenznummer: OBGC2026032209555887488b25437cf
Winegg Makler GmbH
title
Winegg Makler GmbH
Nachricht hinzufügen
Mit der Nutzung der oben angegebenen Telefonnummer oder durch Klicken auf „Kontaktieren“ akzeptierst Du die Allgemeinen Nutzungsbedingungen, denen Du jederzeit widersprechen kannst. Weitere Informationen zum Datenschutz
MediumRectangleTop
MediumRectangleBottom
MediumRectangleTop
Wie zufrieden bist du mit dieser Seite (nicht mit der Immobilie selbst)?