Version: 8.24.0Navigation überspringen
ohne-makler.net - Immobilien selbst vermarkten
Preis auf Anfrage
4.611 m² Grundstück

Grundstück zum Kauf • provisionsfrei
4.611 m² Grundstück

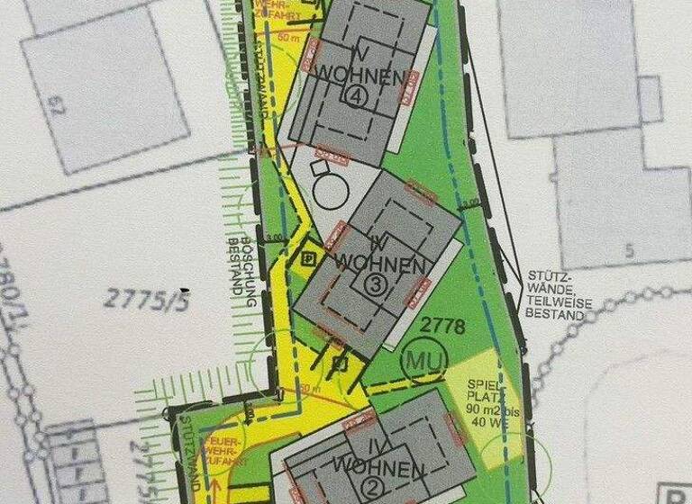
Neubauprojekt in Treuchtlingen: 46 moderne Wohn- und 2 attraktive Gewerbeeinheiten

In zentraler Lage von Treuchtlingen bietet sich die Möglichkeit zur Errichtung eines modernen Wohn- und Gewerbeensembles. Das Neubauprojekt besteht aus vier Wohngebäuden mit insgesamt 46 Wohneinheiten auf rund 3.900 m² Wohnfläche sowie einem separaten Gewerbegebäude mit zwei Einheiten auf ca. 450 m² Gewerbefläche.
Das Gewerbegebäude umfasst eine ca. 108 m² große Betriebsleiterwohnung. Alle Gebäude sind über vier Geschosse geplant. Zum Projekt gehören weitere 55 Tiefgaragenstellplätze, 30 Außenstellplätze und 70 Fahrradstellplätze.
Der relevante vorhabenbezogene Bebauungsplan liegt bereits vor, sodass eine zügige Projektumsetzung möglich ist. Darüber hinaus erlaubt die Planung eine flexible und individuelle Gestaltung der Grundrisse, wodurch gezielt auf Anforderungen potenzieller Mieter oder Käufer eingegangen werden kann.
Die Planung kann auf dem bestehenden Grundstück realisiert werden, auf dem sich derzeit ein Bestand befindet.

Merkmale

  • Bezug: sofort
  • 4.611 m² Grundstück

Grundrisse

Grundrisse
1 / 1

Realisiere Dein Projekt

Bausubstanz und Energie

Der Anbieter hat keine Informationen zu Energieverbrauch oder Zustand der Immobilie bereit gestellt.
MediumRectangleTop

Preisdetails

Provision für Käufer
provisionsfrei; keine Provision, courtagefrei

Lage

address-icon
Treuchtlingen (91757)
Der Anbieter hat die genaue Adresse nicht freigegeben
Treuchtlingen liegt im Herzen des Altmühltals in Bayern und bietet eine ausgezeichnete Lebensqualität. Die Stadt verbindet eine idyllische Naturlandschaft mit einer guten Infrastruktur. Durch die direkte Anbindung an die B2 und den Bahnhof, ist Treuchtlingen verkehrstechnisch sehr gut erschlossen. Schulen, Einkaufsmöglichkeiten und Freizeiteinrichtungen befinden sich in unmittelbarer Nähe.
Die Region ist besonders für Pendler nach München, Nürnberg, Ingolstadt zum Wohnen ideal. Gleichzeitig ist sie für Naturliebhaber und Erholungssuchende attraktiv und bietet zahlreiche Wander- und Radwege.
Infrastruktur (im Umkreis von 5 km):
Apotheke, Lebensmittel-Discount, Allgemeinmediziner, Kindergarten, Grundschule, Hauptschule, Realschule, Gymnasium, Gesamtschule, Öffentliche Verkehrsmittel

Weitere Informationen

Sonstiges Makleranfragen nicht erwünscht. Nach § 7 UWG sind unaufgeforderte Kontaktaufnahmen durch Makler ohne ausdrückliche Einwilligung des Empfängers verboten!

ohne-makler (OM) ist weder Anbieter noch Vermittler der Immobilie. OM betreibt eine Plattform für Immobilieneigentümer, die unter anderem die gleichzeitige Veröffentlichung einzelner Inserate auf mehreren Immobilienportalen ermöglicht. Die Inhalte dieser Inserate werden ausschließlich von Dritten verantwortet. Für die Richtigkeit, Vollständigkeit oder Rechtmäßigkeit der Angaben übernimmt OM keine Haftung. Hinweise auf mögliche Rechtsverstöße können jederzeit gemeldet werden und werden nach Prüfung umgehend bearbeitet. Stichworte Bundesland: Bayern

Weitere Services

Lust auf eine Besichtigung?
Eine Frage zur Immobilie?
Nachricht hinzufügen
Mit der Nutzung der oben angegebenen Telefonnummer oder durch Klicken auf „Kontaktieren“ akzeptierst Du die Allgemeinen Nutzungsbedingungen, denen Du jederzeit widersprechen kannst. Weitere Informationen zum Datenschutz

Über den Anbieter

Humboldtstr. 25 A, 21509 Glinde
partner badge
Partnerschaft
Privat von Arte Immobilien VV2 GmbHDein Kontakt
Online-ID: 2nhf65g
Referenznummer: 378777
ohne-makler.net - Immobilien selbst vermarkten
ohne-makler.net - Immobilien selbst vermarkten
Nachricht hinzufügen
Mit der Nutzung der oben angegebenen Telefonnummer oder durch Klicken auf „Kontaktieren“ akzeptierst Du die Allgemeinen Nutzungsbedingungen, denen Du jederzeit widersprechen kannst. Weitere Informationen zum Datenschutz
MediumRectangleTop
MediumRectangleBottom
MediumRectangleTop
Wie zufrieden bist du mit dieser Seite (nicht mit der Immobilie selbst)?