Mehrfamilienhaus zum Kauf • als Kapitalanlage geeignet
999999 €999.999 €
2.045 €/m²
19 Zimmer • 489 m² • 780 m² Grundstück
Attraktives MFH mit Klinkerfassade im schönen Leutzsch!
Kapitalanleger aufgepasst, Mehrfamilienhaus in Leutzsch zu verkaufen!
Es handelt sich um ein Mietshaus in geschlossener Bebauung, mit Tordurchfahrt und Klinkerfassade.
Das Objekt ist geteilt nach dem WEG-Gesetz und demzufolge hervorragend für Projektentwickler geeignet.
Die Grundstücksfläche beträgt ca. 780 m². Hinter dem Haus befindet sich ein großzügiger Hof bzw. Garten, welcher von allen Mietern genutzt werden kann.
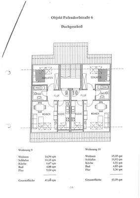
Das Objekt verfügt über 10 Wohneinheiten, davon sind alle vermietet.
Die Nettomieteinnahmen betragen aktuell monatlich 3.473,02 EUR. Bei noch ausstehenden Mieterhöhungsverlangen wären Mieteinnahmen i.H.v. ca. 3.548,75 EUR erzielbar.
Die Beheizung des Objektes erfolgt über eine Erdgas-Zentralheizung.
Bei den Wohneinheiten handelt es sich um 9x 2-Raum-Wohnungen von ca. 42 m² bis 56 m² sowie 1x 1-Raum-Wohnung mit ca. 30 m². Auf jeder Etage befinden sich 2 Einheiten. Die Einheiten sind im Wohn- und Flurbereich mit Laminatboden, die Bäder mit Wanne und 1 Wohnung im Erdgeschoss mit Dusche ausgestattet.
Lage: Leutzsch ist ein klassisches Arbeiter- und Industriellenviertel und gehört seit 1922 zu Leipzig. Im Norden lockt der Leipziger Auwald mit dem Leutzscher Holz als Ausflugs- und Erholungsziel. Den Sportfans ist vor allem das Fußballstadion Alfred-Kunze-Sportpark ein Begriff.
Sämtliche Angaben beruhen auf Aussagen der Eigentümer/Vertreter, für die wir trotz aller Sorgfalt keinerlei Gewähr übernehmen.
Haben wir Ihr Interesse an einer Besichtigung bzw. weiteren Informationen geweckt? Unser Team freut sich auf Ihre Kontaktaufnahme!
Merkmale
frei ab sofort
vermietet
780 m² Grundstück
Keller
voll erschlossen
Grundrisse
Grundrisse
1 / 6
Realisiere Dein Projekt
Bausubstanz und Energie
Energieausweis
Ein Energieausweis ist für diesen Gebäudetyp nicht notwendig.
Baujahr1899
Zustand der ImmobilieAltbau (bis 1945), Massivhaus, Gepflegt
HeizungsartZentralheizung
EnergieträgerGas
Preisdetails
Kaufpreis
999999 €999.999 €
2.044,99 €/m²
Provision für Käufer
7,14 % inkl. MwSt.
Geschätzte Gesamtkosten
1.110.699 €1
Kaufpreis
999.999 €
Kaufnebenkosten
110.700 €
2
Notarkosten (1,5%)
15.000 €
Grunderwerbsteuer (5,5%)
55.000 €
Provision für Käufer (3,57%)
35.700 €
Grundbucheintrag (0,5%)
5.000 €
1Der angezeigte Wert ist eine automatisch berechnete Schätzung von immowelt.
2Bei den Angaben handelt es sich um ortsübliche Werte. Individuelle Kosten können abweichen.
Lage
Pufendorfstraße 6, Leutzsch, Leipzig (04179)
Weitere Informationen
Stichworte
Wohnfläche: 489,00 m², Gesamtfläche: 489,00 m², vermietbare Fläche: 489,00 m², Anzahl der Schlafzimmer: 10, Anzahl der Badezimmer: 10, Anzahl der Wohneinheiten: 10, Bundesland: Sachsen