




Logistikzentrum zur Miete • provisionsfrei4,90 €/m²19.697 m² Lagerfläche • teilbar ab 19.697 m²
4,90 €
/m²
19.697 m² Lagerfläche • teilbar ab 19.697 m²
Attraktive Hallenflächen im Bremer GVZ
Merkmale
- Bezug: Q2 2026
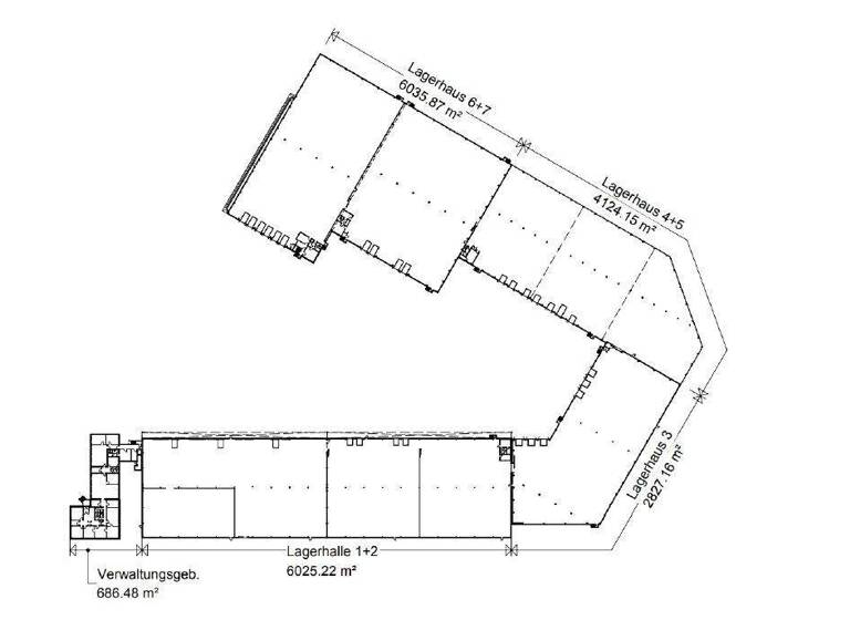
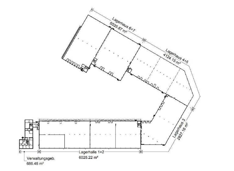
- 44.575 m² Grundstück
- Raumaufteilung flexibel
Grundrisse
Grundrisse
1 / 1
Realisiere Dein Projekt
Bausubstanz und Energie
Der Anbieter hat keine Informationen zu Energieverbrauch oder Zustand der Immobilie bereit gestellt.
Mietkosten
Nettomiete zzgl. Nebenkosten
4,90 €/m²
4,90 €
Provision fĂĽr Mieter
provisionsfrei; Provisionsfrei fĂĽr den Mieter!
Kaution
keine Angabe
Lage

Strom, Bremen (28197)
Der Anbieter hat die genaue Adresse nicht freigegeben
Weitere Informationen
Weitere Services
Lust auf eine Besichtigung?
Eine Frage zur Immobilie?
Ăśber den Anbieter
Domshof 21, 28195 Bremen
Partnerschaft
Herr Stefan FathDein Kontakt
Online-ID: 2n47k5j
Referenznummer: 33142/1
Wie zufrieden bist du mit dieser Seite (nicht mit der Immobilie selbst)?



