Version: 8.25.1Navigation überspringen
16 €
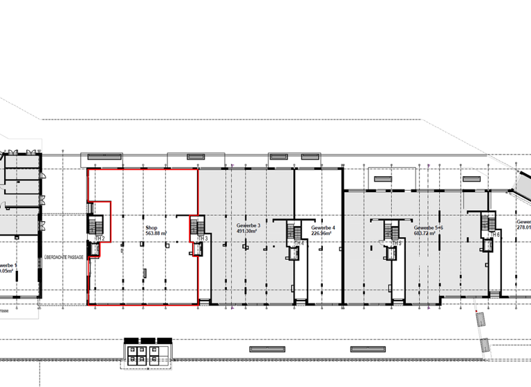
563,9 m² Verkaufsfläche
Immowelt logo

Ladenfläche zur Miete • provisionsfrei
16 €
/m²
563,9 m² Verkaufsfläche

Exklusiv über uns: Verkaufsfläche mittig im Neubaugebiet - mit guter Anlieferung

Bei dem Neubauprojekt handelt es sich um ein modernes Hybridgebäude in energieeffizienter KfW-40-Bauweise, das Wohnraum und Gewerbe unter einem Dach vereint. Das Gebäude umfasst künftig 126 geförderte Mietwohnungen, vielfältige Büro- und Gewerbeflächen sowie eine große Tiefgarage.

Die zur Vermietung stehende Gewerbefläche befinden sich im Erdgeschoss und verfügt über ca. 564 m². Dank Deckenhöhen von bis zu 6 Metern, großzügiger Rolltore für die Anlieferung sowie einer barrierefreien Erschließung eignet sich diese Mietfläche ideal für einen Nahversorgungsmarkt oder vergleichbare Nutzungskonzepte.

Insgesamt entstehen auf dem Areal bis zu 400 neue Wohneinheiten sowie zahlreiche attraktive Gewerbeflächen.

Eine Zusammenlegung mehrerer Mietflächen zu einer größeren Mieteinheit ist baulich möglich. Je nach Vereinbarung kann die Übergabe der Mietflächen sowohl im Rohbauzustand als auch im bezugsfertigen Zustand erfolgen.

Zusätzlich stehen den Gewerbemietern bis zu 116 Tiefgaragenstellplätze sowie ca. 20 Außenstellplätze zur Anmietung zur Verfügung.

Eine Fertigstellung ist für Spätsommer 2026 geplant.

Merkmale

  • Bezug: Spätsommer 2026
  • Personenaufzug
  • Außen-Stellplatz, Tiefgarage

Grundrisse

Grundrisse
1 / 1

Realisiere Dein Projekt

Bausubstanz und Energie

Energieausweis

Der Anbieter hat keine Daten zum Energieausweis hinterlegt.
  • Baujahr2026
Immowelt logo

Mietkosten

Monatliche Miete
16 €/m²
Provision für Mieter
provisionsfrei; Provisionsfrei für den Mieter ab 5 Jahren Vertragslaufzeit
Kaution
keine Angabe

Lage

address-icon
Groß BorstelHamburg (22453)
Der Anbieter hat die genaue Adresse nicht freigegeben
Das Neubauprojekt Petersen Park liegt im Hamburger Stadtteil Groß Borstel, nur wenige Autominuten vom Flughafen entfernt. Das Wohn- und Gewerbeobjekt auf dem Baufeld 4b wird nördlich durch die Papenreye und südlich durch die Stavenhagenstraße erschlossen. Kunden- und Lieferverkehre nutzen die Zufahrt von der Papenreye, Mitarbeiter und Mieter können zusätzlich die Tiefgaragenzufahrt an der Stavenhagenstraße nutzen.

Das Grundstück ist als Urbanes Gebiet ausgewiesen – im Südosten schließt Wohnbebauung an, im Norden ein Gewerbegebiet. Der Flughafen Hamburg ist mit dem Auto in ca. 9 Minuten erreichbar, die Bushaltestelle der Linie 23 liegt unmittelbar am Objekt (Ecke Niendorfer Weg / Stavenhagenstraße) und ermöglicht eine gute Anbindung zur U2 Niendorfer Markt in ca. 6 Minuten.

Weitere Informationen

Besichtigung Gern stehen wir Ihnen für individuelle Besichtigungstermine zur Verfügung. Wir freuen uns auf Ihre Anfrage! Sonstiges Alle Angaben sind ohne Gewähr und basieren ausschließlich auf Informationen, die uns von unserem Auftraggeber zur Verfügung gestellt wurden.
Wir übernehmen keine Gewähr für die Vollständigkeit, Richtigkeit und Aktualität dieser Angaben.

Weitere Services

Lust auf eine Besichtigung?
Eine Frage zur Immobilie?
Mit einer persönlichen Nachricht hast du bessere Chancen auf eine Antwort.
Mit der Nutzung der oben angegebenen Telefonnummer oder durch Klicken auf „Kontaktieren“ akzeptierst Du die Allgemeinen Nutzungsbedingungen, denen Du jederzeit widersprechen kannst. Weitere Informationen zum Datenschutz

Über den Anbieter

Alsterchaussee 23, 20149 Hamburg
partner badge
Partnerschaft
Herr Philipp Blank
Herr Philipp BlankDein Kontakt
Online-ID: 25TBD1D8FA1N
Blank Immobilien GmbH
title
Blank Immobilien GmbH
Bewertung: 5 von 5 Sternen
Mit einer persönlichen Nachricht hast du bessere Chancen auf eine Antwort.
Mit der Nutzung der oben angegebenen Telefonnummer oder durch Klicken auf „Kontaktieren“ akzeptierst Du die Allgemeinen Nutzungsbedingungen, denen Du jederzeit widersprechen kannst. Weitere Informationen zum Datenschutz
Wie zufrieden bist du mit dieser Seite (nicht mit der Immobilie selbst)?