Version: 8.25.1Navigation überspringen
540 €
2 Zimmer  •  51 m²  •  EG
Immowelt logo

Terrassenwohnung zur Miete
540 €
2 Zimmer  •  51 m²  •  EG

Helle und freundliche 2 Zimmer Wohnung im schönen Sigmaringen

Die freundliche 2-Zimmer-Wohnung liegt im Erdgeschoss eines Mehrfamilienhauses mitten in einer ruhigen aber doch zentralen Wohnlage. Der Zuschnitt der Wohnung ist praktisch und modern.

Merkmale

  • Bezug: ab 01.06.2026
  • Erdgeschoss
  • Einbauküche
  • Bad mit Dusche
  • Keller
  • Terrasse
  • Außen-Stellplatz
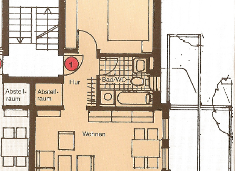
Die Wohnung betreten Sie über den Flur, der in alle übrigen Zimmer erschließt, er ist zu Gunsten der übrigen Räume knapp bemessen. Das Badezimmer ist mit einer Dusche und einem WC ausgestattet.

Die Küche ist ein lichtdurchfluteter Raum, dieser mit einer modernen Einbauküche ausgestattet ist. In dem hellen Wohnbereich kann der Essbereich integriert werden. Vom Wohnzimmer aus gelangen Sie auch auf den Balkon mit kleinem Gartenanteil. (Gemeinschaftliche Nutzung der Hausgemeinschaft)

Das Schlafzimmer ist hell und freundlich. Eine praktische Nische neben der Wohnungstüre rundet das Angebot ab.

Grundrisse

Grundrisse
1 / 1

Realisiere Dein Projekt

Bausubstanz und Energie

Möchtest du Details zum Energieverbrauch?info_energy_calculation-icon
  • Baujahr1983
  • Zustand der ImmobilieGepflegt
  • EnergieträgerGas
Immowelt logo

Mietkosten

Warmmiete
841 €
Kaltmiete
10,59 €/m²
540 €
Nebenkosten
165 €
Heizkosten
106 €
Zusätzliche Kosten
Miete pro Stellplatz
30 €
Kaution
3 x Kaltmiete
Weitere Preisinformationen
1 Stellplatz, Miete: 30,00 EUR
Nettokaltmiete: 540,00 EUR

Lage

address-icon
Sonnenhalde 39Sigmaringen (72488)
Die Wohnung befindet sich in attraktiver Wohnlage von Sigmaringen im Wohngebiet Sonnenhalde. Die Umgebung ist geprägt von gepflegten Wohnhäusern und einer ruhigen, angenehmen Nachbarschaft mit hohem Wohnwert.

Das Stadtzentrum von Sigmaringen mit seinen vielfältigen Einkaufsmöglichkeiten, Restaurants, Cafés sowie Ärzten, Schulen und weiteren Einrichtungen des täglichen Bedarfs ist in wenigen Minuten erreichbar. Eine gute Anbindung an den öffentlichen Nahverkehr sowie an das regionale Straßennetz sorgt für eine komfortable Erreichbarkeit der umliegenden Städte und Gemeinden.

Die landschaftlich reizvolle Region rund um das Donautal bietet zudem einen hohen Freizeit- und Erholungswert mit zahlreichen Rad- und Wanderwegen in unmittelbarer Nähe. Insgesamt verbindet die Lage ruhiges Wohnen mit einer gut ausgebauten Infrastruktur und naturnahem Umfeld.

Weitere Informationen

Sonstiges Zur Wohnung gehört ein Kellerraum. Der Waschmaschinenplatz ist in der Wohnung. Im Keller steht der Hausgemeinschaft ein Trockenraum und ein Fahrradraum zur Verfügung.

Zur Wohnung gehört ein Außenstellplatz. Die monatliche Miete für den Stellplatz beträgt 30.00 Euro.

Ansprechpartner:
Frau Vanessa Haile
v.haile@gsw-sigmaringen.de Stichworte Stellplatz vorhanden, Nutzfläche: 51,00 m², Anzahl der Schlafzimmer: 1, Anzahl der Badezimmer: 1, Anzahl Balkone: 1

Weitere Services

Lust auf eine Besichtigung?
Eine Frage zur Immobilie?
Mit einer persönlichen Nachricht hast du bessere Chancen auf eine Antwort.
Mit der Nutzung der oben angegebenen Telefonnummer oder durch Klicken auf „Kontaktieren“ akzeptierst Du die Allgemeinen Nutzungsbedingungen, denen Du jederzeit widersprechen kannst. Weitere Informationen zum Datenschutz

Über den Anbieter

Leopoldplatz 1, 72488 Sigmaringen
partner badge
6 Jahre Partnerschaft
Frau Vanessa HaileDein Kontakt
Online-ID: 23VRAWAECXBH
Referenznummer: 4703.1.1
GSW Gesellschaft für Siedlungs-und Wohnungsbau Baden-Württ. mbH
GSW Gesellschaft für Siedlungs-und Wohnungsbau Baden-Württ. mbH
Bewertung: 4,3 von 5 Sternen
Mit einer persönlichen Nachricht hast du bessere Chancen auf eine Antwort.
Mit der Nutzung der oben angegebenen Telefonnummer oder durch Klicken auf „Kontaktieren“ akzeptierst Du die Allgemeinen Nutzungsbedingungen, denen Du jederzeit widersprechen kannst. Weitere Informationen zum Datenschutz
Wie zufrieden bist du mit dieser Seite (nicht mit der Immobilie selbst)?