Version: 8.25.1Navigation überspringen
714 €
2 Zimmer  •  42,2 m²  •  2. Geschoss  •  frei ab sofort
Immowelt logo

Terrassenwohnung zur Miete
714 €
2 Zimmer  •  42,2 m²  •  2. Geschoss  •  frei ab sofort

NEUBAU | Helle 2-Zimmer-Wohnung mit toller Aussicht, Einbauküche und Balkon

Merkmale

  • frei ab sofort
  • 2. Geschoss
  • Personenaufzug
  • Einbauküche
  • Keller
  • Balkon
  • Parkhaus
-Raumhöhe mit ca. 2,60 m
-Hochwertige Eichenparkettböden
-Ein modern ausgestattetes Bad mit Badewanne und Waschmaschinenanschluss
-Fußbodenheizung mit raumweiser Regulierung
-Kontrollierte Be- und Entlüftung mit Wärmerückgewinnung
-Dreifach verglaste Holzfenster mit Sonnen- und Sichtschutz
-Energieeffizient mit KfW-Effizienzhaus 40 Standard
-Zusätzlichem Abstellkeller im Untergeschoss
-Zwei Fahrradstellplätze im Keller bzw. vor dem Gebäude.
-Aufzug zum straßenseitigen Hauseingang und zum Garten im Innenhof
-KFZ-Stellplatz (optional)
-Mitbenutzung des gemeinschaftlichen Innenhofes

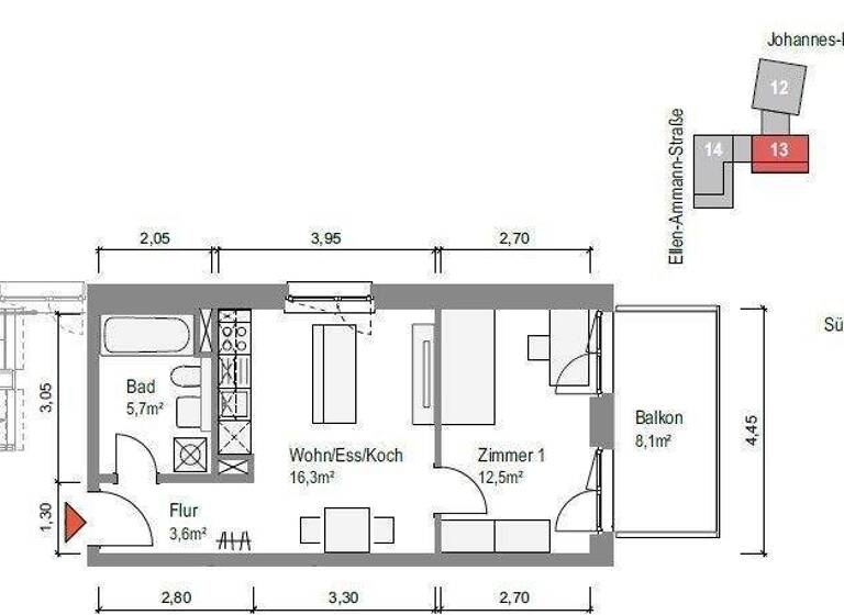
Grundrisse

Grundrisse
1 / 1

Realisiere Dein Projekt

Bausubstanz und Energie

Möchtest du Details zum Energieverbrauch?info_energy_calculation-icon
  • Baujahr2025
  • Zustand der Immobilieneuwertig
  • HeizungsartFußbodenheizung
Immowelt logo

Mietkosten

Warmmiete
866,14 €
Kaltmiete
16,95 €/m²
714,40 €
Nebenkosten
75,87 €
Zusätzliche Kosten
Heizkosten
75,87 €
Miete pro Stellplatz
85 €
Kaution
2143.2 €
Weitere Preisinformationen
1 Parkhausstellplatz, Miete: 85,00 EUR

Lage

address-icon
Ellen-Ammann-Straße 9Bamberg (96052)
Lagarde Höfe Bamberg
Die neu entstehenden Wohnungen sind energetisch hocheffizient (KfW-40) mit familienfreundlich geschnittenen Grundrissen und sind mit großzügigem Wohn- und Essbereich, Abstellraum und ab 4 Zimmern mit zwei Bädern ausgestattet. Auch Wohnungen für studentische Wohngemeinschaften sowie Sonderwohnformen sind geplant.

Zur gemeinschaftlichen Nutzung stehen unterschiedlichste Flächen und Räume zur Verfügung. Eine Besonderheit und zentrales Element wird ein 200 m² großer Gemeinschaftsraum am Quartiersplatz sein. Der Raum mit integrierter Küche ist teilbar und ermöglicht so Veranstaltungen verschiedener Größenordnung. Ergänzt wird das Angebot durch zwei Gästeappartements.

Der Campus verfügt über ein Parkhaus, sowie Tiefgarage mit Auto- und Fahrradabstellplätzen (mindestens 2 Fahrradstellplätze pro Wohnung) sowie individuellen Kellerräumen. Sämtliche Wohnungen und Gemeinschaftsflächen sind barrierefrei erreichbar.

Die Erdgeschoss-Wohnungen verfügen über einen kleinen privaten Gartenbereich mit Terrasse, die Wohnungen in den Obergeschossen über großzügige Balkone.

Das gesamte Quartier wird im Energiestandard KfW-Effizienzhaus 40 errichtet. Auf dem Dach sind Photovoltaikanlagen in Zusammenarbeit mit Naturstrom geplant. Die Mieter beziehen ihren Haushaltsstrom so teilweise vom eigenen Dach im Mieterstrom-Modell.

Weitere Informationen

Sonstiges Die Wohnung hat eine Staffelmietvereinbarung von 2,2 % jährlich für die ersten 5 Jahre. Alle weiteren Mieterhöhungen lt. §558 bis §5559b BGB sind hiermit ausgeschlossen. Energiepass Energieausweis wird bei Besichtigung vorgelegt. Stichworte Parkhaus vorhanden, Anzahl der Schlafzimmer: 1, Anzahl der Badezimmer: 1, Anzahl Balkone: 1, 4 Etagen

Weitere Services

Lust auf eine Besichtigung?
Eine Frage zur Immobilie?
Mit einer persönlichen Nachricht hast du bessere Chancen auf eine Antwort.
Mit der Nutzung der oben angegebenen Telefonnummer oder durch Klicken auf „Kontaktieren“ akzeptierst Du die Allgemeinen Nutzungsbedingungen, denen Du jederzeit widersprechen kannst. Weitere Informationen zum Datenschutz

Über den Anbieter

Reuther Weg 11, 96199 Zapfendorf
partner badge
10 Jahre Partnerschaft
Ann-Kathrin KlöselDein Kontakt
Online-ID: 26R8KBEML4PU
Referenznummer: 184558
basis wohnbau GmbH & Co. KG
basis wohnbau GmbH & Co. KG
Mit einer persönlichen Nachricht hast du bessere Chancen auf eine Antwort.
Mit der Nutzung der oben angegebenen Telefonnummer oder durch Klicken auf „Kontaktieren“ akzeptierst Du die Allgemeinen Nutzungsbedingungen, denen Du jederzeit widersprechen kannst. Weitere Informationen zum Datenschutz
Wie zufrieden bist du mit dieser Seite (nicht mit der Immobilie selbst)?