Version: 8.22.6Navigation überspringen
Modernes altengerechtes Wohnen im Energiesparhaus im Grünen - in ruhiger Lage von Koblenz, Horchheimer Höhe - Achtung Vermieter Steuervorteile durch Neubauabschreibung sichern !
Bezugsbereit Frühjahr 2026  •  3 bis 4 Zimmer  •  114 bis 133 m²

Neubauprojekt · provisionsfrei
Bezugsbereit Frühjahr 2026  •  3 bis 4 Zimmer  •  114 bis 133 m²

Über dieses Projekt

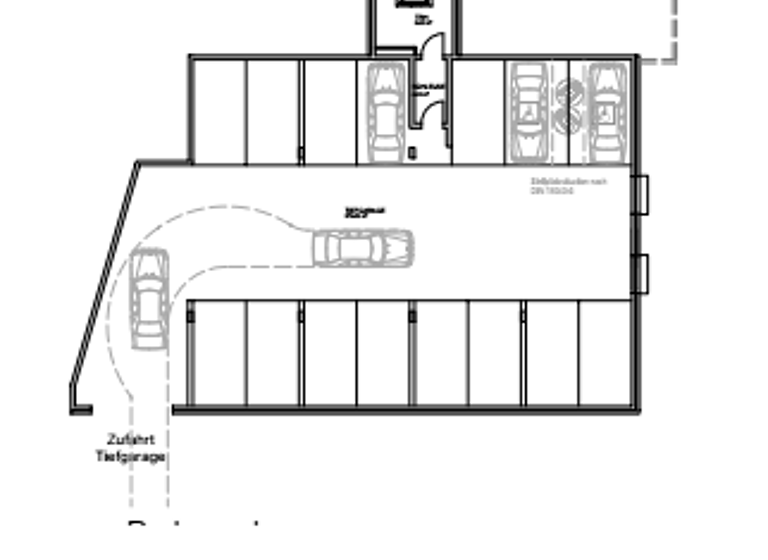
Moderne helle altersgerechte Wohnung mit moderner Technik im Energiesparhaus im attraktiven Wohngebiet im Grünen "Horchheiner Höhe" mit guter Verkehrsanbindung nach Koblenz Hohe Steuervorteile durch Neubauabschreibungen für Vermieter möglich ! Schöne helle sonnige Wohnung in gefragter ruhiger Lage am Ende einer Sackgasse - angrenzend an schöne Waldflächen. Energiesparendes Bauen mit hohen Steuervorteilen für Vermieter. Altengerechtes schönes Wohnen mit moderner kostengünstiger Heiztechnik in gefragter Lage im Koblenz-Horchheimer Höhe-. In dieser exponierten Lage entstehen moderne attraktive Eigentumswohnungen von ca. 75 bis ca. 130 m² mit moderner Technik in altersgerechter Ausführung mit Lift, Tiefgarage sowie Außenstellplätzen entstanden. Elektrische Rollläden, die gut befahrbaren Tiefgaragenstellplätze bzw. die Außenstellplätze, schöne Fliesen und Sanitärausstattungen, hochwertige Wohnungseingangstüren, moderne 3-fach verglaste Fenster, eine gute Elektroausstattung, eine kontrollierter Wohnraumbelüftung mit Wärmerückgewinnung sowie attraktive Parkettböden werden ausgeführt. Sie können der Wohnung noch Ihre persönliche Note durch die individuelle Ausstattung geben. Bei der Konzeption des Objektes wurde besonders auf Energiesparendes Bauen geachtet, was durch den aufwendigen KFW 40 Standard dokumentiert wird (Energieklasse A +). Die Kombination von moderner Technik sowie hochwertiger Isolierung führt zu sehr günstigen Heizkosten bzw. Nebenkosten. Alle Wohnungen verfügen über schöne Balkone oder großzügige Terrassen mit guter Besonnung . Jeder Wohnung ist ein Abstellraum im Untergeschoss zugeordnet. Geniesen Sie den Wohnkomfort eines modernen hellen überwiegend barrierefreien Gebäudes mit neuester Technik. Jeder Wohnung ist ein Kellerraum zugeordnet. Es besteht die Möglichkeit Außenstellplätze für 15.000 € sowie Tiefgaragenstellplätze für 27.000 € zu erwerben. Die Bezugsfertigkeit ist für Ende 2025 vorgesehen. Hinweis bei Vermietung: Die Wohnungen können bei einem Erwerb bis zum Jahr der Fertigstellung und einer Vermietung entsprechend den aktuellen Änderungen des Wirtschaftschancengesetzes mit einer degressiven Abschreibung von jährlich 5 % bezogen auf den jeweiligen Buchwert abgeschrieben werden. Hierdurch werden hohe Steuervorteile erzielt. Wir übernehmen weder eine steuerliche Beratung noch die Haftung für steuerliche Ziele. Sprechen Sie mit Ihrem Steuerberater. Dieser berät Sie gerne umfassend und fachgerecht. Weitere interessante Kauf- oder Mietangebote finden Sie unter www.scherf-immobilien.de Weitere interessante Kauf- oder Mietangebote finden Sie unter www.scherf-immobilien.de

Einheiten des Neubauprojekts

Modernes altengerechtes Wohnen im Energiesparhaus im Grünen - in ruhiger Lage von Koblenz, Horchheimer Höhe - Achtung Vermieter Steuervorteile durch Neubauabschreibung sichern !: 5 Einheiten verfügbar von insgesamt 12

Merkmale

  • Wohnung
  • 5 Einheiten
  • Stellplatz
  • Balkon, Terrasse
  • Gehoben
  • Fliesen, Parkett

Grundrisse

Grundrisse
1 / 11

Realisiere Dein Projekt

Bausubstanz und Energie

  • HeizungsartFußbodenheizung
  • EnergieträgerLuft-/Wasser-Wärmepumpe

Preisdetails

Lage

address-icon
Im Junckerstück 57 dPfaffendorfer HöheKoblenz (56076)

Weitere Services

Lust auf eine Besichtigung?
Eine Frage zum Projekt?
Nachricht hinzufügen
Mit der Nutzung der oben angegebenen Telefonnummer oder durch Klicken auf „Kontaktieren“ akzeptierst Du die Allgemeinen Nutzungsbedingungen, denen Du jederzeit widersprechen kannst. Weitere Informationen zum Datenschutz

Anbieter des Projekts

Paulinstraße 104, 54292 Trier
partner badge
Partnerschaft
Herr Norbert ScherfDein Kontakt

Weitere Unterlagen

Online-ID: k27n932
Referenznummer: KOJU
Anzeigen ID: 2539SE68LCYT
Scherf Profi Immobilien Service GmbH
Scherf Profi Immobilien Service GmbH
Bewertung: 4,7 von 5 Sternen
Nachricht hinzufügen
Mit der Nutzung der oben angegebenen Telefonnummer oder durch Klicken auf „Kontaktieren“ akzeptierst Du die Allgemeinen Nutzungsbedingungen, denen Du jederzeit widersprechen kannst. Weitere Informationen zum Datenschutz
Wie zufrieden bist du mit dieser Seite (nicht mit der Immobilie selbst)?