Version: 8.26.0Navigation überspringen
Beste Lage von Klotzsche - Neubau im Erstbezug
Bezugsbereit 01/27  •  3 bis 4 Zimmer  •  97 bis 114 m²
Neubauprojekt · provisionsfrei

Beste Lage von Klotzsche - Neubau im Erstbezug

Bezugsbereit 01/27  •  3 bis 4 Zimmer  •  97 bis 114 m²

Über dieses Projekt

Dieses energieeffiziente Bauprojekt im gefragten Stadtteil Klotzsche bietet gut geschnittene 3-und 4-Raum Wohnungen. Die barrierefreien Wohnungen erreicht man bequem über einen Aufzug. Im Untergeschoss ist jeweils ein Kellerabteil, ein Wasch-Trockenraum sowie ein Fahrrad-Abstellraum vorgesehen. Gern beraten wir Sie zu einer möglichen Finanzierung und weiteren Details. Da es sich um einen Neubau handelt, liegt noch kein Energieausweis vor. Dieser wird nach Erstellung nachgereicht.

Einheiten des Neubauprojekts

Beste Lage von Klotzsche - Neubau im Erstbezug: 7 Einheiten verfügbar von insgesamt 7

Merkmale

  • Wohnung
  • 7 Einheiten
  • Stellplatz
  • Balkon, Terrasse
  • Gehoben
  • Parkett
Werthaltige Ausstattung nach Käuferwunsch, u.a. mit Fußbodenheizung, elektrischen Rollläden, Aufzug, Parkett und Sanitärausstattung von deutschen Markenherstellern. - Gäste-WC - Balkon bzw. Terrasse - Rollläden - schöne Gemeinschaftsfläche im Garten - Hauswirtschaftsraum - barrierefrei mit Aufzug - Keller - Fahrrad-Abstellraum - Wasch-Trockenraum im Untergeschoss (+ Stellplatz in der Wohnung)

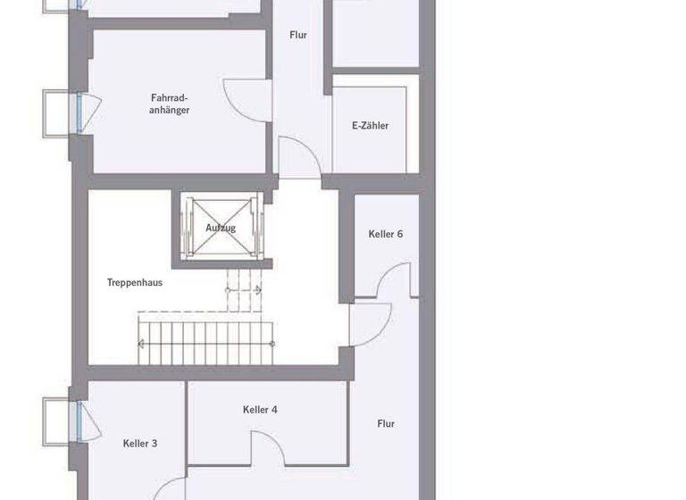
Grundrisse

Grundrisse
1 / 1

Bausubstanz und Energie

  • HeizungsartZentralheizung: Fußbodenheizung
  • EnergieträgerLuft-/Wasser-Wärmepumpe

Preisdetails

Lage

address-icon
Stendaler StraßeKlotzscheDresden (01109)

Weitere Informationen

Sonstiges Das Angebot ist freibleibend und unverbindlich. Alle Informationen und Daten wurden nach bestem Wissen gemacht und beruhen auf Angaben unserer Auftraggeber. Eine Zwischenvermarktung bleibt vorbehalten. Die Angebote und Mitteilungen sind nur für den Empfänger persönlich bestimmt und müssen vertraulich behandelt werden. Weitere zahlreiche Immobilien in Dresden, Radebeul und Umgebung finden Sie auch im Internet unter https://www.immovista.de ! KUNDEN WERBEN KUNDEN! Kunden die einen Immobilienkäufer oder Verkäufer einer Immobilie empfehlen, erhalten nach erfolgter notarieller Beurkundung eine Prämie in Höhe von 1.000 €.

Weitere Services

Lust auf eine Besichtigung?
Eine Frage zum Projekt?
Nachricht hinzufügen
Mit der Nutzung der oben angegebenen Telefonnummer oder durch Klicken auf „Kontaktieren“ akzeptierst Du die Allgemeinen Nutzungsbedingungen, denen Du jederzeit widersprechen kannst. Weitere Informationen zum Datenschutz

Anbieter des Projekts

Westendstraße 3, 01187 Dresden
partner badge
Partnerschaft
Herr Karsten Riedel
Herr Karsten RiedelDein Kontakt

Weitere Unterlagen

Online-ID: 252L3CARJC21
Referenznummer: 9083
Wie zufrieden bist du mit dieser Seite (nicht mit der Immobilie selbst)?