Version: 8.25.1Navigation überspringen
Steuern sparen durch Sonderabschreibungen-Modernes altersgerechtes Wohnen im KFW 40 QNG Energiesparhaus im neuen Wohngebiet „Grünes Quartier“ mit guter Verkehrsanbindung Luxemburg - Sehr hohe Steuervorteile durch Sonderabschreibung für Vermieter
Bezugsbereit Ende 2027  •  1 bis 2 Zimmer  •  25 bis 62 m²
Neubauprojekt · provisionsfrei

Steuern sparen durch Sonderabschreibungen-Modernes altersgerechtes Wohnen im KFW 40 QNG Energiesparhaus im neuen Wohngebiet „Grünes Quartier“ mit guter Verkehrsanbindung Luxemburg - Sehr hohe Steuervorteile durch Sonderabschreibung für Vermieter

Bezugsbereit Ende 2027  •  1 bis 2 Zimmer  •  25 bis 62 m²

Über dieses Projekt

Altengerechtes schönes Wohnen mit moderner kostengünstiger Heiztechnik in gefragter Lage im neuen „Grünen Quartier“ im ruhigen Innenbereich. In dieser exponierten Lage entstehen moderne attraktive Eigentumswohnungen von ca. 25 bis ca. 225 m² mit moderner Technik in altersgerechter Ausführung mit Aufzug und Tiefgarage in nachhaltiger Bauweise im hochwertigen Standard KFW 40 QNG . Eine hochwertige Außenfassade mit ansprechender Klinkerfassade, elektrische Rollläden, ein moderner Aufzug, schöne Fliesen und Sanitärausstattungen, attraktive Parkettböden, hochwertige Wohnungseingangstüren, moderne 3-fach verglaste Fenster, eine gute Elektroausstattung, eine kontrollierter Wohnraumbelüftung mit Wärmerückgewinnung sowie attraktive Parkettböden werden ausgeführt. Im Showroom des Bauträgers können Sie sich über mögliche Ausstattungsvarianten informieren. Bei der Konzeption des Objektes wurde besonders nachhaltiges Bauen geachtet, was durch den sehr aufwendigen KFW 40 QNG Standard dokumentiert wird. Die Kombination von moderner Technik sowie hochwertiger Isolierung führt zu sehr günstigen Heizkosten bzw. Nebenkosten. Alle Wohnungen verfügen über schöne Balkone oder großzügige Terrassen bzw. Dachterrassen. Jeder Wohnung ist ein Abstell- /Kellerraum im Untergeschoss zugeordnet. Auf Wunsch können den Wohnungen im Erdgeschoß Gartenflächen als Sondernutzungsrecht zugeordnet werden. Aufteilung: Es stehen mehrere Varianten von 1, 2, 3, 4 und 5 Zimmerwohnungen von ca. 25 bis ca. 225 m² zur Verfügung. Parken: Es besteht die Möglichkeit Tiefgaragenstellplätze im Gebäude ab 26.500 € zu erwerben. Der Baubeginn ist für Frühjahr 2026 vorgesehen. Der Bezug der Wohnungen ist für Ende 2027 geplant. Die Wohnanlage erfüllt die technischen Voraussetzungen um die KFW Darlehen nach den Programmen 297, 298 und dem Programm 300 (Familienförderung) zu ermöglichen. Bei den Programmen 297 und 298 sind aufgrund des Standards KFW 40 QNG je Wohnung Darlehen von 150.000 € zu günstigen Zinsen möglich. Die Zinssätze richten sich nach dem Tilgungszeitraum und betragen ab 0,60 % Die Förderungen sind an keine persönlichen Voraussetzungen gebunden. Sie sind sowohl für die Eigennutzung (Programm 297) sowie für die Vermietung (Programm 298) möglich. Beim Programm 300 - Familienförderung sind aufgrund des Standards KFW 40 je Wohnung Darlehen für eine Familie mit einem Kind von 220.000 € zu sehr günstigen Zinsen möglich. Die Zinssätze richten sich nach der Zinsfestschreibung und dem Tilgungszeitraum und betragen bei einer Zinsfestschreibung von 10 Jahren ab 0,01 %. Die Wohnungen können bei einem Erwerb bis zum Jahr der Fertigstellung und einer Vermietung mit einer degressiven Abschreibung von jährlich 5 % bezogen auf den jeweiligen Buchwert abgeschrieben werden. Aufgrund des Standards KFW 40 QNG und der weiteren Voraussetzungen ist eine Kombination der degressiven Abschreibung von 5 % mit der Sonderabschreibung für den Mietwohnungsneubau möglich. Hier können zusätzlich 4 Jahre Sonderabschreibungen von 5 % von bis zu 4.000 € pro m² in Anspruch genommen werden. Sowohl bei der Kostengrenze von 5.200 € pro m² als auch beim Abschreibungswert von 4.000 € pro m² können die Bruttogrundflächen der Wohnung sowie Nebenflächen zugrunde gelegt werden. Hierdurch werden die Kostengrenzen eingehalten Beispiel Wohnung 1 Kaufpreis mit TG-Stellplatz 237.400 € - Abschreibungswert Jahr 1-4 insgesamt 91.484 € Sprechen Sie mit Ihrem Steuerberater. Dieser berät Sie umfassend

Einheiten des Neubauprojekts

Steuern sparen durch Sonderabschreibungen-Modernes altersgerechtes Wohnen im KFW 40 QNG Energiesparhaus im neuen Wohngebiet „Grünes Quartier“ mit guter Verkehrsanbindung Luxemburg - Sehr hohe Steuervorteile durch Sonderabschreibung für Vermieter: 4 Einheiten verfügbar von insgesamt 28

Merkmale

  • Wohnung
  • 4 Einheiten
  • Stellplatz
  • Terrasse, Garten
  • Gehoben
  • Fliesen, Kunststoff, Parkett

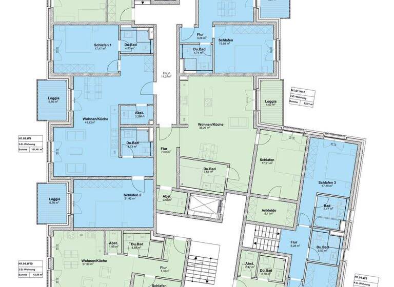
Grundrisse

Grundrisse
1 / 12

Realisiere Dein Projekt

Bausubstanz und Energie

  • HeizungsartFußbodenheizung
  • EnergieträgerFernwärme, Elektro

Preisdetails

Lage

address-icon
Peter Molz Straße 27EurenTrier (54294)

Weitere Informationen

Sonderabschreibungen Vermieter Die Wohnungen können bei einem Erwerb bis zum Jahr der Fertigstellung und einer Vermietung entsprechend den aktuellen Änderungen des Wirtschaftschancengesetzes mit einer degressiven Abschreibung von jährlich 5 % bezogen auf den jeweiligen Buchwert abgeschrieben werden. Hierdurch werden hohe Steuervorteile erzielt. Aufgrund des Standards KFW 40 QNG und der weiteren Voraussetzungen ist eine Kombination der degressiven Abschreibung von 5 % mit der Sonderabschreibung für den Mietwohnungsneubau möglich. Hier können zusätzlich 4 Jahre Sonderabschreibungen von 5 % von bis zu 4.000 € pro m² in Anspruch genommen werden. Sowohl bei der Kostengrenze von 5.200 € pro m² als auch beim Abschreibungswert von 4.000 € pro m² können die Wohn- und Nebenflächen (Bruttogrundfläche) zugrunde gelegt werden. Hierdurch werden die Kostengrenzen eingehalten. Im Falle einer Vermietung sind vom Gesetzgeber Vorgaben benannt, die zur Erlangung der degressiven Abschreibung ( § 7 Abs.5a EStG) sowie der zusätzlichen Mietwohnabschreibung ( § 7 b EStG) erforderlich sind, die bei diesem Objekt erfüllt werden: a) Ersterwerb einer neuen, bisher nicht vorhandenen Wohnung vom Bauträger bis zum Jahr der Fertigstellung b) Bauantrag ab dem 01.01.2023. Der Bauantrag wurde am 04.06.2025 gestellt c) Einhaltung der Kostengrenzen von 5.200 € je m² sowie Abschreibungswert bis 4.000 €. Für die Berechnung der Baukostenobergrenze kann alternativ zur Wohnfläche auch auf die Bruttogrundfläche Bezug genommen werden (BMF Schreiben vom 07.07.2020, Tz 52 BStBlI 2020 Seite 623). Die Vorgaben sind eingehalten. Die Bruttogrundfläche der Wohnung beträgt 12 nebst TG-Stellplatz 63,78 sowie für die Wohnung 15 nebst TG-Stellplatz 98,56 m² d) Die Wohnung muß im Jahr der Anschaffung und in den folgenden neun Jahren der entgeltlichen Überlassung zu Wohnzwecken dienen. Eine Kurzzeitvermietung erfüllt diese Voraussetzungen nicht e) Die Voraussetzungen der De-minimis-Beihilfen müssen eingehalten werden (keine Überschreitung der Kosten innerhalb 3 Jahren). Wir übernehmen keine steuerliche Beratung und keine Haftung für steuerliche Ziele. Fragen Sie zu diesen Punkten Ihren Steuerberater. Dieser berät Sie umfassend und fachgerecht. Beispiel Wohnung 1 Kaufpreis mit TG-Stellplatz 237.400 € - Abschreibungen Jahr 1 – 4 ca. 91.484 € KFW-Förderungen ab 0,01 % Zins KFW-Förderung: Die Wohnanlage erfüllt die technischen Voraussetzungen um die KFW Darlehen nach den Programmen 297, 298 und dem Programm 300 (Familienförderung) zu ermöglichen. Bei den Programmen 297 und 298 sind aufgrund des Standards KFW 40 QNG je Wohnung Darlehen von bis zu 150.000 € zu günstigen Zinsen möglich. Die Zinssätze richten sich nach dem Tilgungszeitraum und betragen: a) bei einer Tilgung innerhalb 10 Jahren 0,60 % b) bei einer Tilgung innerhalb 25 Jahren 1,70 % c) bei einer Tilgung innerhalb 35 Jahren 1,85 %. Die Förderungen sind an keine persönlichen Voraussetzungen gebunden. Sie sind sowohl für die Eigennutzung (Programm 297) sowie für die Vermietung (Programm 298) möglich. Beim Programm 300 - Familienförderung sind aufgrund des Standards KFW 40 je Wohnung Darlehen für eine Familie mit einem Kind von 220.000 € zu sehr günstigen Zinsen möglich. Die Zinssätze richten sich nach der Zinsfestschreibung und dem Tilgungszeitraum und betragen bei einer Zinsfestschreibung von 10 Jahren: a) bei einer Tilgung innerhalb 10 Jahren 0,01 % b) bei einer Tilgung innerhalb 25 Jahren 0,95 % c) bei einer Tilgung innerhalb 35 Jahren 1,27 %. Zinsfestschreibung von 20 Jahren sind mit höheren Zinsen möglich. Die Förderung ist an persönliche Vorrausetzungen gebunden zu versteuerndes Einkommen (auch Luxemburg) – 90.000 – Mittelwert 2023 und 2024) Die Zinssätze verändern sich entsprechend den Vorgaben der KFW. Die KFW Darlehen können über die jeweils finanzierende Bank mit dem Sitz in Deutschland beantragt und abgewickelt werden. Die erforderliche Bestätigung wird durch den Energieberater erstellt. Betreuung TÜVBausachverständigen Bausachverständiger: Die Betreuung des Objektes einschließlich der QNG Zertifierzung erfolgt zusätzlich durch den TÜV Rheinland mit seinen Bausachverständigen. Dieser führt gemeinsam mit den Käufern die Abnahmen der Wohnungen sowie des Gemeinschaftseigentums durch. Dies ist ein zusätzlicher Qualitätsbeweis.

Weitere Services

Lust auf eine Besichtigung?
Eine Frage zum Projekt?
Nachricht hinzufügen
Mit der Nutzung der oben angegebenen Telefonnummer oder durch Klicken auf „Kontaktieren“ akzeptierst Du die Allgemeinen Nutzungsbedingungen, denen Du jederzeit widersprechen kannst. Weitere Informationen zum Datenschutz

Anbieter des Projekts

Paulinstraße 104, 54292 Trier
partner badge
Partnerschaft
Herr Norbert ScherfDein Kontakt

Weitere Unterlagen

Online-ID: 25IBIA1FJWER
Referenznummer: 27ETNBPMZ
Scherf Profi Immobilien Service GmbH
Scherf Profi Immobilien Service GmbH
Bewertung: 4,7 von 5 Sternen
Nachricht hinzufügen
Mit der Nutzung der oben angegebenen Telefonnummer oder durch Klicken auf „Kontaktieren“ akzeptierst Du die Allgemeinen Nutzungsbedingungen, denen Du jederzeit widersprechen kannst. Weitere Informationen zum Datenschutz
Wie zufrieden bist du mit dieser Seite (nicht mit der Immobilie selbst)?