Version: 8.24.1Navigation überspringen
J&P Immobilienmakler GmbH
199.000 €
2 Zimmer  •  46,4 m²

Wohnung zum Kauf
199000 €
4.285 €/m²
2 Zimmer  •  46,4 m²

Sanierungsbedürftige 2-Zimmer-Wohnung in 1090 Wien

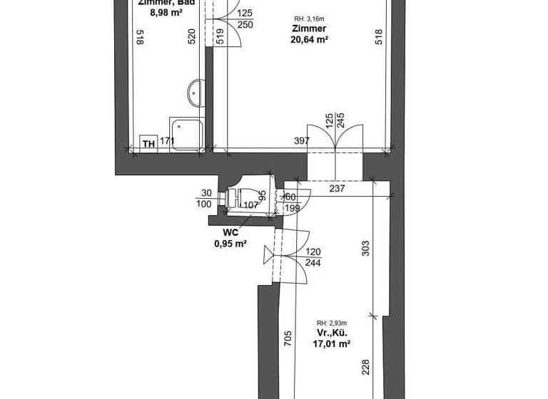
In der Löblichgasse 9, 1090 Wien, gelangt diese ca. 47m² große Wohnung im Hochparterre (Top 3) zum Verkauf.

Die Einheit verfügt über eine kompakte Raumaufteilung mit Wohnraum, Schlafzimmer, separater Küche sowie Bad/WC. Die Wohnung befindet sich in sanierungsbedürftigem Zustand und bietet damit eine attraktive Grundlage für individuelle Modernisierungs- und Gestaltungskonzepte. Sämtliche Oberflächen, Sanitär- und Küchenausstattung entsprechen nicht mehr dem heutigen Standard und sind im Zuge einer Generalsanierung zu erneuern.
Die Lage im 9. Bezirk bietet eine stabile Nachfrage und sehr gute Infrastruktur. Eine Immobilie mit Entwicklungspotenzial in gefragter Wiener Wohnlage.

Ihre Highlights auf einen Blick:
- Stilvolles Gründerzeithaus mit Altbaucharakter
- Teilweise saniert teilweise mit Entwicklungspotenzial
- Top-Lage im 9. Bezirk
- U-Bahn und Nahversorgung in unmittelbarer Nähe

Lage
Die Liegenschaft in der Löblichgasse 9 befindet sich in ausgezeichneter Lage des 9. Wiener Gemeindebezirks (Alsergrund), einem der gefragtesten innerstädtischen Wohnbezirke Wiens. Die Umgebung ist geprägt von repräsentativen Altbauten, gepflegten Wohnhäusern und einer gewachsenen städtischen Infrastruktur.
Die Nahversorgung ist umfassend gesichert: Supermärkte, Bäckereien, Apotheken sowie diverse Fachgeschäfte befinden sich in fußläufiger Distanz. Darüber hinaus bietet die nahegelegene Nußdorfer Straße eine Vielzahl an Gastronomiebetrieben, Cafés und Dienstleistungsangeboten. Durch die Nähe zur Innenstadt profitieren Bewohner von einem urbanen Umfeld mit hoher Lebensqualität.
Die öffentliche Verkehrsanbindung ist sehr gut. Mehrere Straßenbahnlinien (u. a. 37, 38, 40, 41, 42) sowie Busverbindungen sind rasch erreichbar und gewährleisten eine schnelle Anbindung an das Stadtzentrum sowie an weitere Bezirke. Die U-Bahn-Stationen der Linien U6 (Währinger Straße/Volksoper bzw. Nußdorfer Straße) befinden sich in komfortabler Reichweite.
Erholungs- und Freizeitmöglichkeiten sind ebenfalls gegeben: Der nahegelegene Liechtensteinpark sowie der Donaukanal bieten Grünflächen und Möglichkeiten zur Freizeitgestaltung im Freien. Bildungseinrichtungen, darunter Universitäten, Schulen und Kindergärten, befinden sich im direkten Umfeld, was die Lage zusätzlich attraktiv macht.

Ansprechpartner
Frau Doris Kurzweil || +43 699 17 55 66 16 || dk@jpi.at
Herr Iman Ajdari || +43 699 17 55 66 68 || ia@jpi.at

Wir weisen darauf hin, dass wir mit dem Abgeber in ständiger Geschäftsbeziehung stehen und schon aus diesem Grund ein wirtschaftliches Naheverhältnis vorliegt.

Merkmale

  • Bezug: sofort

Grundrisse

Grundrisse
1 / 1

Realisiere Dein Projekt

Bausubstanz und Energie

Heizwärmebedarf (HWB)

F

Gesamtenergieeffizienz (fGEE)

E
  • Zustand der ImmobilieAltbau (bis 1945)
  • HeizungsartEtagenheizung
  • EnergieträgerGas
MediumRectangleTop

Preisdetails

Kaufpreis
199000 €
4.285,10 €/m²
Provision für Käufer
3%

Lage

address-icon
Löblichgasse 9Wien (1090)

Weitere Informationen

Stichworte Anzahl der Badezimmer: 1, Anzahl der separaten WCs: 1, Wohnungsnr.: 3

Weitere Services

Lust auf eine Besichtigung?
Eine Frage zur Immobilie?
Nachricht hinzufügen
Mit der Nutzung der oben angegebenen Telefonnummer oder durch Klicken auf „Kontaktieren“ akzeptierst Du die Allgemeinen Nutzungsbedingungen, denen Du jederzeit widersprechen kannst. Weitere Informationen zum Datenschutz

Über den Anbieter

Lehargasse 7, 1060 WIEN
partner badge
Partnerschaft
Herr Iman Ajdari
Herr Iman AjdariDein Kontakt
Online-ID: 2nhjb5s
Referenznummer: 101/18647
J&P Immobilienmakler GmbH
title
J&P Immobilienmakler GmbH
Nachricht hinzufügen
Mit der Nutzung der oben angegebenen Telefonnummer oder durch Klicken auf „Kontaktieren“ akzeptierst Du die Allgemeinen Nutzungsbedingungen, denen Du jederzeit widersprechen kannst. Weitere Informationen zum Datenschutz
MediumRectangleTop
MediumRectangleBottom
MediumRectangleTop
Wie zufrieden bist du mit dieser Seite (nicht mit der Immobilie selbst)?