Wohnung mit 45 qm Dachterrasse und Ausbaupotential / TI IM 985
Diese großzügige Wohnung ist Teil einer Häuserzeile im historischen Ortskern von Calderara, einem kleinen Dorf im Hinterland von Imperia. Umgeben von Olivenhainen und Wäldern findet man hier Ruhe und Erholung pur. Zum Hauptort Pieve di Teco mit Einkaufsmöglichkeiten und Restaurants sind es 5 Autominuten, die Riviera mit den schönen Sandstränden von Alassio und Imperia ist über die Schnellstraße in 30 Minuten zu erreichen. Der nächst gelegene, internationale Flughafen ist im rund 1,5 Autostunde entfernten Nizza.
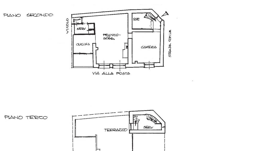
Die Wohnung liegt in der zweiten Etage und hat rund 90 m² Wohnfläche auf einer Ebene. Zentraler Punkt ist das großzügige, helle Wohn-Esszimmer mit einem Pellet-Kamin und einem Pizzaofen. Die angrenzende Küche bietet Zugang zu einer kleinen Terrasse (ca. 5 m2), perfekt für einen morgendlichen Kaffee. Ein Schlafzimmer, ein Badezimmer und ein flexibler Arbeits- oder Schlafbereich vervollständigen das Raumangebot.
Das absolute Highlight ist die 45 m² große Dachterrasse mit wunderschönem Ausblick auf die umliegenden Hügel. Ein externer Keller bietet zusätzlichen Stauraum.
Die Wohnung verfügt über eine Zentralheizung, die entweder mit Strom oder über den Holzofen in der Küche betrieben werden kann.
Ein besonderes Highlight ist das Ausbaupotential des angrenzenden, ruinösen Gebäudeteils mit rund 45 m2über drei Ebenen. Hier bieten sich vielfältige Möglichkeiten zur Erweiterung oder zur Gestaltung eines Gästebereichs.
Die Immobilie ist von den öffentlichen Parkplätzen nur zu Fuß erreichbar.
Merkmale
Einbauküche
Bidet
Balkon
Terrasse
Bergblick, Fernblick
möbliert
Badezimmer: Bad mit Dusche, Bad mit Fenster
Grundrisse
Verschaffe dir einen genauen Überblick über die Raumaufteilung.
Realisiere Dein Projekt
Bausubstanz und Energie
Möchtest du Details zum Energieverbrauch?
Zustand der ImmobilieGepflegt
HeizungsartZentralheizung
EnergieträgerFernwärme, Elektro
Preisdetails
Kaufpreis
140000 €140.000 €
1.555,56 €/m²
Provision für Käufer
Die Provision, zahlbar vom Käufer, beträgt 3,66% des Kaufpreises inklusive MwSt.