Version: 8.25.1Navigation überspringen
597.800 €
3 Zimmer  •  97,4 m²  •  4. Geschoss
Immowelt logo

Wohnung zum Kauf - Erstbezug
597800 €
6.137 €/m²
3 Zimmer  •  97,4 m²  •  4. Geschoss

Großzügige Penthousewohnung in 1220, klimaaktiv zertifiziert

EXKLUSIVES NEUBAUPROJEKT IN GRÜNLAGE - KHUENWEG 5, 1220 WIEN, NACHHALTIG INVESTIEREN - MODERN WOHNEN - ZUKUNFT SICHERN

Am Khuenweg 5 befindet sich ein hochwertiges Neubauprojekt in ruhiger Lage der Wiener Donaustadt. Zeitgemäße Architektur, durchdachte Grundrisse und nachhaltige Energiekonzepte bieten höchste Wohnqualität - ideal für Eigennutzer und Anleger.

Die 30 bezugsfertigen Wohnungen mit 2 bis 4 Zimmern und ca. 42 m² bis 103 m² Wohnfläche überzeugen durch edle Eichenparkettböden, Feinsteinzeug in den Nassräumen sowie großzügige Fensterflächen. Jede Einheit verfügt über eine Freifläche (Balkon, Terrasse oder Eigengarten).

Nachhaltig & effizient

*
klimaaktiv Bronze zertifiziert

*
Wasser-Wasser-Wärmepumpe & Photovoltaik

*
Fußbodenheizung mit Einzelraumsteuerung

*
3-fach verglaste Fenster & Sonnenschutz

*
Teilweise Klimaanlagen (DG)

Highlights der Anlage

*
Bezugsfertig - sofort einziehen oder vermieten

*
Barrierefreier Zugang

*
Tiefgarage mit E-Ladevorbereitung

*
Kleinkinderspielplatz

*
Ruhige Grünlage nahe Mühlwasser & Donau

*
Sehr gute öffentliche Anbindung

Jetzt besichtigen & Zukunft sichern

Ob als wertstabile Kapitalanlage oder als nachhaltiges Eigenheim - diese Wohnungen bieten Wohnqualität, Effizienz und Sicherheit auf hohem Niveau.
Vereinbaren Sie jetzt einen Besichtigungstermin und entdecken Sie nachhaltiges Wohnen mit Stil und Komfort.

Weitere spannende Immobilien finden Sie direkt auf unserer Homepage. [http://www.wohnreich.at]

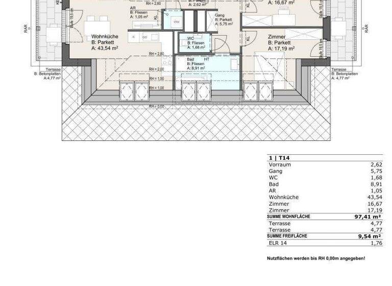
Die Wohnung befindet sich im 4ten Stockwerk und hat folgende Raumaufteilung:

* Vorraum
* Wohn/Esszimmer mit Platz für Ihre Küche
* 2 Schlafzimmer
* Badezimmer mit Dusche und Badewanne
* separate Toilette
* Abstellraum mit Waschmaschinenanschluss
* 2 Terrassen (Nord- und Südausrichtung)

Überzeugen Sie sich im Zuge einer Besichtigung von dieser Wohnung! 

Wir weisen darauf hin, dass zwischen dem Vermittler und dem zu vermittelnden Dritten ein familiäres oder wirtschaftliches Naheverhältnis besteht.

Der Vermittler ist als Doppelmakler tätig.

Infrastruktur / Entfernungen

Gesundheit
Arzt <250m
Apotheke <1.000m
Klinik <1.250m
Krankenhaus <1.500m

Kinder & Schulen
Schule <500m
Kindergarten <500m
Universität <2.750m
Höhere Schule <2.500m

Nahversorgung
Supermarkt <250m
Bäckerei <1.000m
Einkaufszentrum <3.500m

Sonstige
Geldautomat <750m
Bank <750m
Post <1.000m
Polizei <750m

Verkehr
Bus <250m
U-Bahn <1.250m
Straßenbahn <750m
Bahnhof <1.250m
Autobahnanschluss <2.500m

Angaben Entfernung Luftlinie / Quelle: OpenStreetMap

Merkmale

  • Bezug: ab sofort
  • Dachgeschoss, 4. Geschoss
  • Terrasse

Grundrisse

Grundrisse
1 / 1

Realisiere Dein Projekt

Bausubstanz und Energie

Heizwärmebedarf (HWB)

B

Gesamtenergieeffizienz (fGEE)

A+
  • Zustand der ImmobilieNeubau, Erstbezug
  • HeizungsartZentralheizung: Fußbodenheizung
Immowelt logo

Preisdetails

Kaufpreis
597800 €
6.136,95 €/m²
Provision für Käufer
21.520,80 € inkl. 20% USt.

Lage

address-icon
KhuenwegWien,Donaustadt (1220)

Weitere Informationen

Stichworte Anzahl der Badezimmer: 1, Anzahl der separaten WCs: 1, Anzahl Terrassen: 1, Balkon-Terrassen-Fläche: 9,54 m², Kellerfläche: 1,76 m², Bundesland: Wien, Wohnungsnr.: 1.14

Weitere Services

Lust auf eine Besichtigung?
Eine Frage zur Immobilie?
Nachricht hinzufügen
Mit der Nutzung der oben angegebenen Telefonnummer oder durch Klicken auf „Kontaktieren“ akzeptierst Du die Allgemeinen Nutzungsbedingungen, denen Du jederzeit widersprechen kannst. Weitere Informationen zum Datenschutz

Über den Anbieter

Grazbachgasse 30, 8010 GRAZ
partner badge
Partnerschaft
Herr Florian SchwarzenbergerDein Kontakt
Online-ID: 26EFAT61ZY4H
Referenznummer: OBGC202501101526314613a3d7650c4
Wohnreich Immobilienverwertungs GmbH
Wohnreich Immobilienverwertungs GmbH
Nachricht hinzufügen
Mit der Nutzung der oben angegebenen Telefonnummer oder durch Klicken auf „Kontaktieren“ akzeptierst Du die Allgemeinen Nutzungsbedingungen, denen Du jederzeit widersprechen kannst. Weitere Informationen zum Datenschutz
Wie zufrieden bist du mit dieser Seite (nicht mit der Immobilie selbst)?