Version: 8.26.0Navigation überspringen
Ofner Immobilien GmbH
399.000 €
3 Zimmer  •  146,4 m²

Haus zum Kauf
399000 €
2.725 €/m²
3 Zimmer  •  146,4 m²

Komplett möbliertes Haus mit Pool - Radovin, Razanac

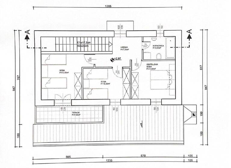
Ein schönes Haus mit Pool steht in Radovin, einem ruhigen Ort in der Gemeinde Razanac, zum Verkauf. Es liegt 4,8 km vom Meer und 1,3 km vom Ortszentrum entfernt. Das Haus besteht aus Erdgeschoss und Obergeschoss, bietet eine funktionale Raumaufteilung und 146,40 m² Wohnfläche, während die Gesamtgrundstücksfläche 669 m² beträgt.

Es ist komplett möbliert und bereit zur Nutzung sowie zur touristischen Vermietung.

Das Erdgeschoss umfasst einen Flur, eine Küche mit Essbereich und Wohnraum, ein Badezimmer, einen Abstellraum, sowie eine Terrasse und bietet insgesamt 91,30 m² Fläche. Im Obergeschoss befinden sich ein Flur, drei Schlafzimmer, ein Badezimmer und eine weitere Terrasse mit insgesamt 55,10 m². Im Außenbereich stehen ein 32 m² großer Pool, ein großzügiger Garten und ein Grill zur Verfügung. Außerdem sind vier Parkplätze vorhanden.

AUSSTATTUNG

Das Haus wurde in Ziegel-Thermoblockbauweise errichtet und ist mit Aluminiumfenstern samt Fensterläden, Insektenschutzgittern und Doppelverglasung ausgestattet. Im Erdgeschoss wurden Fliesen verlegt, während in den Schlafzimmern im Obergeschoss Laminatböden für Wohnkomfort sorgen. Die Fassade verfügt über eine 7 cm starke Wärmedämmung.

Ein Schornstein ist vorhanden und im Wohnzimmer schafft ein Kamin eine besonders angenehme Atmosphäre. Die Vorbereitung für eine Zentralheizung ist bereits abgeschlossen, und die Klimatisierung erfolgt über vier Einheiten - im Wohnzimmer sowie in allen drei Schlafzimmern.

Das Haus wurde im Jahr 2023 renoviert und verfügt über ein Energiezertifikat der Klasse A.

LAGE

Radovin ist eine kleine Ortschaft in der Gemeinde Razanac, ideal für entspannende ruhige Ferien, in der Nähe von vielen attraktiven Destinationen, nur 5 km vom Meer entfernt, 20 km von Zadar und zahlreichen anderen touristischen Zentren mit großem Angebot an Inhalten.

Ich freue mich auf Ihre Anfrage per Mail und stehe gerne für Ihre Fragen zur Verfügung.

Staatlich geprüfter Immobilientreuhänder Walter Ofner, Tel. +43 664 1883929

Weitere Immobilien in Kroatien finden Sie hier. [https://www.ofner-immobilien.at/kroatien]

Bei näherem Kaufinteresse empfehlen wir dringend eine rechtliche Abklärung durch die renommierte, deutschsprachige Anwaltskanzlei in Zagreb, mit der wir eng zusammenarbeiten.

Noch nichts gefunden? Wir informieren Sie über geeignete Immobilienangebote noch vor allen anderen.
Legen Sie jetzt Ihren individuellen Suchagenten unter folgendem Link an. Wir schicken Ihnen passende Immobilien exklusiv vorab zu.
Suchagent anlegen [https://ofner-immobilien.service.immo/registrieren/de] - https://ofner-immobilien.service.immo/registrieren/de

Der Vermittler ist als Doppelmakler tätig.

Merkmale

  • Terrasse

Grundrisse

Grundrisse
1 / 2

Bausubstanz und Energie

Möchtest du Details zum Energieverbrauch?info_energy_calculation-icon
MediumRectangleTop

Preisdetails

Kaufpreis
399000 €
2.725,41 €/m²
Provision für Käufer
3% des Kaufpreises zzgl. 20% USt.

Lage

address-icon
Razanac (23248)
Ein schönes Haus mit Pool steht in Radovin, einem ruhigen Ort in der Gemeinde Razanac, zum Verkauf. Es liegt 4,8 km vom Meer und 1,3 km vom Ortszentrum entfernt. Das Haus besteht aus Erdgeschoss und Obergeschoss, bietet eine funktionale Raumaufteilung und 146,40 m² Wohnfläche, während die Gesamtgrundstücksfläche 669 m² beträgt.

Weitere Informationen

Stichworte Anzahl der Badezimmer: 3, Anzahl Terrassen: 1, Balkon-Terrassen-Fläche: 55,00 m²

Weitere Services

Lust auf eine Besichtigung?
Eine Frage zur Immobilie?
Nachricht hinzufügen
Mit der Nutzung der oben angegebenen Telefonnummer oder durch Klicken auf „Kontaktieren“ akzeptierst Du die Allgemeinen Nutzungsbedingungen, denen Du jederzeit widersprechen kannst. Weitere Informationen zum Datenschutz

Über den Anbieter

Hauptstraße 86, 8582 ROSENTAL AN DER KAINACH
partner badge
Partnerschaft
Herr Walter OfnerDein Kontakt
Online-ID: 25JUGA2FCQHH
Referenznummer: OBGC20251211144530174d937b78bf9
MediumRectangleTop
Wie zufrieden bist du mit dieser Seite (nicht mit der Immobilie selbst)?