Version: 8.25.1Navigation überspringen
1.950.000 €
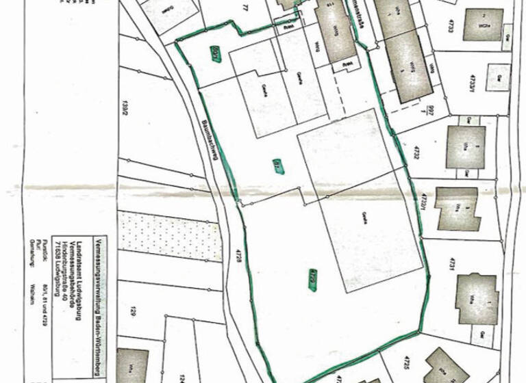
4.971 m² Grundstück
Immowelt logo

Grundstück zum Kauf
1950000 €
392 €/m²
4.971 m² Grundstück

Großes Entwicklungsgrundstück zur Wohnbebauung direkt am Baumbach in Walheim

Diese durch uns zum Verkauf kommende Grundstücke zur Wohnbebauung mit einer Gesamtgrundstücksfläche von 4.971 m² befindet sich in sehr guter und ruhiger Südhang-Wohnlage in Walheim.

Grundstück 4729 mit 2.494 m²
Grundstück 81. mit 2.125 m²
Grundstück 80/1 mit 352 m²

Ein Teil des Verkaufsgrundstücks liegt im Geltungsbereich des Paragraph 34 Baugesetzbuch. Der andere Teil ist aktuell noch Gärtnereifläche. Die Gemeinde Walheim hat in einer Gemeinderatssitzung 2023 mehrheitlich einem Aufstellungsbeschluss zugestimmt, die Landwirtschaftsfläche in eine Wohnbaufläche umnutzen zu können.
Der Erwerber hat die Möglichkeit, seine Bebauungsvorstellungen im Rahmen eines qualifizierten Bebauungsplans oder eines vorhabenbezogenen Bebauungsplans in Abstimmung mit der Gemeinde Walheim zu relaiseieren.
Ein bereits abgestimmter Bebauungsentwurf eines renommierten Architekturbüros liegt der Gemeinde Weilheim bereits vor. Der Gebäudemix sah folgendermaßen aus:
24 Wohnungen mit einer Wohnfläche von 1812 m², sechs Reihenhäuser mit einer Wohnfläche von 804 m² und vier Doppelhaushälften mit einer Wohnfläche von 696 m². Dadurch würde sich eine Gesamtwohnfläche von 3312 m² ergeben.

Altbestand: Die Grundstu?cke werden in ihrem derzeitigen Zustand
verkauft. Die vorhanden Gebäude werden besenrein u?bergeben.

Merkmale

  • Bezug: Sofort
  • 4.971 m² Grundstück
  • teilweise erschlossen

Grundrisse

Grundrisse
1 / 1

Realisiere Dein Projekt

Bausubstanz und Energie

Möchtest du Details zum Energieverbrauch?info_energy_calculation-icon
Immowelt logo

Preisdetails

Kaufpreis
1950000 €
392,28 €/m²
Provision für Käufer
4,76% inlusive der gesetzlichen Mehrwertsteuer, zahlbar bei Vertragsabschluss
Geschätzte Gesamtkosten
2.042.820 €1
Kaufpreis
1.950.000 €
Provision für Käufer (4,76%)
92.820 €
1Der angezeigte Wert ist eine automatisch berechnete Schätzung von immowelt.
2Bei den Angaben handelt es sich um ortsübliche Werte. Individuelle Kosten können abweichen.

Lage

address-icon
Walheim (74399)
Der Anbieter hat die genaue Adresse nicht freigegeben
Die Gemeinde Walheim liegt mit ihren knapp 3.000 Einwohnern im reizvollen Neckartal am Zusammenfluss von Neckar und Enz. Die Landschaft wird geprägt durch den Weinbau, insbesondere in den Steillagen oberhalb von Neckar und Enz sowie durch den Obstbau, der hier noch intensiv betrieben wird.

Walheim ist zwischen den Kreisstädten Ludwigsburg und Heilbronn verkehrsgünstig gelegen: Die Bundesstraße 27 berührt die Gemeinde und sorgt so für eine gute überörtliche Anbindung; die Autobahn A 81 ist in wenigen Minuten problemlos zu erreichen. Außerdem verfügt die Gemeinde über eine Haltestation der Deutschen Bahn AG entlang der Bahnstrecke Stuttgart - Heilbronn, so dass jedes Ziel in der Region schnell mit dem Zug zu erreichen ist. Die ungefähre Fahrzeit nach Stuttgart beträgt 35 Minuten und nach Heilbronn 30 Minuten.

Neben den traditionellen einheimischen Handwerks- und Gewerbebetrieben, die in großer Vielfalt und mit einem breiten Leistungsspektrum vorhanden sind, sind in der Gemeinde mehrere namhafte Betriebe mit zahlreichen Arbeitsplätzen ansässig.

Ein breites Angebot der örtlichen Vereine und Institutionen prägt das Zusammenleben in der Gemeinde, traditionelle Feste und zahlreiche kulturelle Veranstaltungen zeugen von
einem lebendigen Gemeinwesen. Moderne öffentliche Einrichtungen runden das Leistungsspektrum Walheims ab.
Weitere Informationen erhalten Sie auch unter www.walheim.de

Weitere Informationen

Sonstiges Die Angaben in diesem Exposé beruhen auf uns erteilten Informationen. Eine Haftung für die Richtigkeit und Vollständigkeit können wir jedoch nicht übernehmen. Unser Nachweis- und/oder Vermittlungshonorar beträgt vom Käufer bei einem Kauf 4,76% des Kaufpreises, inklusive der gesetzlichen Mehrwertsteuer, fällig bei Vertragsabschluss.

Dieses Objekt wird in Kooperation mit Hörrmann Immobilienberatung GmbH vermarktet.

WICHTIG - Bitte beachten:
Bei Interesse an dieser Immobilie füllen Sie bitte das Kontaktformular vollständig aus. Bitte haben Sie Verständnis dafür, dass wir nur Anfragen bearbeiten können, bei denen die vollständige Adresse und Telefonnummer angegeben ist.

Seit mehr als 33 Jahren bin ich in der Immobilienbranche für meine Kunden erfolgreich tätig unter anderem als ehemaliger Prokurist eines großen Immobilienunternehmens.
Mit einer riesigen Markterfahrung im Bereich An-/und Verkauf von Immobilien, Renovierungs- und Sanierungsarbeiten sowie die Objektbewertung kann ich den Wert Ihrer Immobilie fach- und marktgerecht einschätzen.

Möchten Sie Ihre Immobilie verkaufen? Oder möchten Sie eine Immobilienbewertung?

Selbstverständlich bewerte ich auch Ihre Immobilie sehr gerne unverbindlich und kostenlos. Stichworte Distanz zum Kindergarten: 0.28, Distanz zur Grundschule: 0.33, Distanz zur Realschule: 1.57, Distanz zur nächsten Einkaufsmöglichkeit: 2.20, Distanz zum Gymnasium: 1.64, Distanz zum Flughafen: 5.18, Distanz zum Hauptbahnhof: 0.30, Distanz zur Autobahn: 6.00, Distanz zum Bus: 0.24, Distanz zur nächsten Gaststätte: 0.27, Distanz zur Hauptschule: 1.70

Weitere Services

Lust auf eine Besichtigung?
Eine Frage zur Immobilie?
Nachricht hinzufügen
Mit der Nutzung der oben angegebenen Telefonnummer oder durch Klicken auf „Kontaktieren“ akzeptierst Du die Allgemeinen Nutzungsbedingungen, denen Du jederzeit widersprechen kannst. Weitere Informationen zum Datenschutz

Über den Anbieter

Königstraße 48, 70173 Stuttgart
partner badge
Partnerschaft
Herr Hüseyin Akcadag
Herr Hüseyin AkcadagDein Kontakt
Online-ID: 258NWUVQG3FK
Referenznummer: 211
Königshaus Immobilien e.K.
title
Königshaus Immobilien e.K.
Nachricht hinzufügen
Mit der Nutzung der oben angegebenen Telefonnummer oder durch Klicken auf „Kontaktieren“ akzeptierst Du die Allgemeinen Nutzungsbedingungen, denen Du jederzeit widersprechen kannst. Weitere Informationen zum Datenschutz
Wie zufrieden bist du mit dieser Seite (nicht mit der Immobilie selbst)?