Version: 8.24.1Navigation überspringen
Ritter Bauträger & Immobilien GmbH
1.632 €
7 Zimmer  •  272 m² Bürofläche  •  teilbar ab 272 m²

Bürofläche zur Miete • provisionsfrei
1.632 €
7 Zimmer  •  272 m² Bürofläche  •  teilbar ab 272 m²

Top Bürofläche im Gewerbegebiet Taufkirchen / Potzham! Gewerbesteuerhebesatz: 250%

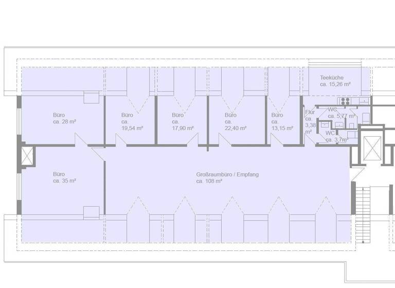
Die hier angebotene attraktive und multifunktionale Bürofläche befindet sich im Gewerbegebiet Taufkirchen / Potzham, welches in wenigen Minuten von der Autobahnausfahrt Oberhaching zu erreichen ist. Die Gewerbeeinheit im Dachgeschoss ist auf 7 großzügige Räume aufgeteilt und umfasst insgesamt ca. 272 m². Zusätzlich befindet sich in der Einheit ein heller Küchenraum und zwei getrennte Toilettenbereiche. Das Bürogebäude ist bereits mit einem Glasfaserkabelanschluss ausgestattet, welcher nach Bedarf in der Einheit verlegt werden kann. Ein Lastenaufzug, eine Rampe zur Anlieferung sowie Außenstellplätze vor dem Gebäude stehen zur Verfügung.

Merkmale

  • Bezug: ab sofort
  • 2. Geschoss
  • Teeküche
  • Personenaufzug, Lastenaufzug
  • 5 Stellplätze: 5 Außen-Stellplätze
  • Laderampe
  • LKW-Zufahrt
  • kontrollierte Be- und Entlüftungsanlage

Grundrisse

Grundrisse
1 / 1

Virtueller Rundgang

3D tour

Realisiere Dein Projekt

Bausubstanz und Energie

Energieausweis

Endenergieverbrauch (Wärme)

Endenergieverbrauch (Strom)

  • Baujahr1988
  • Zustand der ImmobilieGepflegt
  • HeizungsartZentralheizung
  • EnergieträgerGas

Mietkosten

Warmmiete
2.542 €
Nettomiete
1.632 €
Nebenkosten
760 €
Heizkosten
in Warmmiete enthalten
Zusätzliche Kosten
Miete pro Stellplatz
30 €
Provision für Mieter
provisionsfrei
Kaution
3 Nettokaltmieten
Weitere Preisinformationen
5 Stellplätze, Miete je: 30,00 EUR

Lage

address-icon
Wallbergstr. 5PotzhamTaufkirchen (82024)
Gewerbegebiet Taufkirchen / Potzham

Das Gewerbegebiet in Taufkirchen / Potzham zeichnet sich durch seine hervorragende Lage und eine optimale Anbindung an die umliegende Infrastruktur aus. Das Areal bietet Unternehmen unterschiedlichster Branchen ideale Bedingungen, sich im südlichen Umland von München niederzulassen.

Infrastruktur:

Das Gewerbegebiet befindet sich in unmittelbarer Nähe zur Autobahn A8 (München-Salzburg) sowie der A99, was eine schnelle Erreichbarkeit sowohl in das Stadtzentrum Münchens als auch in die umliegenden Regionen ermöglicht. Der Münchner Flughafen ist in etwa 40 Minuten über die A99 zu erreichen, wodurch das Gebiet auch für internationale Geschäftspartner gut angebunden ist.

Öffentliche Verkehrsmittel:

Die Anbindung an den öffentlichen Nahverkehr ist ebenfalls hervorragend. Der S-Bahnhof Taufkirchen (S3) ist nur wenige Minuten entfernt und bietet regelmäßige Verbindungen in Richtung München und Holzkirchen. Zudem gibt es mehrere Buslinien, die das Gewerbegebiet erschließen und eine direkte Anbindung an den S-Bahnhof sowie die umliegenden Orte wie Ottobrunn oder Unterhaching sicherstellen.

Zusammengefasst bietet das Gewerbegebiet Taufkirchen / Potzham eine optimale Kombination aus verkehrsgünstiger Lage, öffentlicher Anbindung und einer breiten Auswahl an Verpflegungsmöglichkeiten, was es zu einem attraktiven Standort für Unternehmen jeder Größe macht.


ENTFERNUNGEN:

Autobahnauffahrt Oberhaching (AB8 / AB99): 3 Minuten

S-Bahnhof Furth (S3): 5 Minuten

Busverbindung: Bus 225 nach Taufkirchen S-Bahn, 20 min. Takt

Bushaltestation "Wallbergstraße": 1 Minuten Gehweg

Flughafen München: 40 Minuten Fahrtweg

Hbf München: 30 Minuten Fahrtweg

Weitere Informationen

Sonstiges Staffelung der Miete für die ersten Jahre, danach Indexierung (individuell zu vereinbaren) Stichworte Sonstiges: EDV-Verkabelung, Kabelkanäle, Getrennte Damen- und Herren-WCs

Weitere Services

Lust auf eine Besichtigung?
Eine Frage zur Immobilie?
Nachricht hinzufügen
Mit der Nutzung der oben angegebenen Telefonnummer oder durch Klicken auf „Kontaktieren“ akzeptierst Du die Allgemeinen Nutzungsbedingungen, denen Du jederzeit widersprechen kannst. Weitere Informationen zum Datenschutz

Über den Anbieter

Hubertusplatz 1, 82041 Deisenhofen
partner badge
10 Jahre Partnerschaft
Herr Maximilian RitterDein Kontakt

Weitere Unterlagen

Online-ID: 2mgwh5d
Referenznummer: 1362
Ritter Bauträger & Immobilien GmbH
Ritter Bauträger & Immobilien GmbH
Bewertung: 4,6 von 5 Sternen
Nachricht hinzufügen
Mit der Nutzung der oben angegebenen Telefonnummer oder durch Klicken auf „Kontaktieren“ akzeptierst Du die Allgemeinen Nutzungsbedingungen, denen Du jederzeit widersprechen kannst. Weitere Informationen zum Datenschutz
Wie zufrieden bist du mit dieser Seite (nicht mit der Immobilie selbst)?