Version: 8.22.4Navigation überspringen
12,74 €
518,3 m² Verkaufsfläche
Immowelt logo

Ladenfläche zur Miete - Erstbezug
12,74 Euro pro Quadratmeter
518,3 m² Verkaufsfläche

Beste Sichtbarkeit in Wiener Neudorf - Moderne Geschäftsfläche

Highlights

* Markante Ecklage & starke Präsenz
* Nachbarschaft mit Frequenzbringern
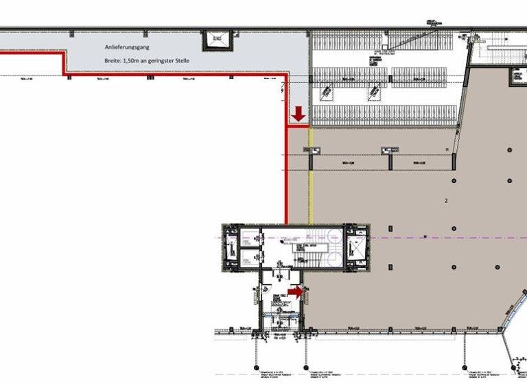
* Durchdachte Logistik: eigener Anlieferungsgang ca. 164,85 m², min. Breite ca. 1,50 m
* Nutzungsbereit: Übernahme "wie liegt und steht"; Innenausbau verbleibt
* Leistungsfähige Fläche: gesamt ca. 784,83 m², davon ca. 518,27 m² Verkaufsfläche

Das Objekt

An einer der wichtigsten Ausfallstraßen des Großraums Wien in Wiener Neudorf, präsentiert sich ein markantes Ecklokal mit starker Präsenz. Die Lage profitiert von etablierten Nahversorgern und Frequenzbringern in der unmittelbaren Umgebung - u. a. BILLA und als direkter Nachbar ACTION -, was die Sichtbarkeit und Kundenfrequenz zusätzlich unterstreicht. Der jüngst fertiggestellte Neubau überzeugt mit moderner Architektur. Der hochwertige, state-of-the-art Innenausbau verbleibt im Objekt und ermöglicht eine zeitnahe Inbetriebnahme mit minimalem Adaptionsaufwand.

Die Mietfläche umfasst insgesamt ca. 784,83 m². Davon entfallen ca. 518,27 m² auf die Verkaufsfläche; innerhalb dieser ist ein Anteil von 48,50 m² für "zentrumsrelevante Waren" gemäß NÖ Warengruppenverordnung zulässig. Diese Ausgestaltung bietet vielseitige Nutzungsszenarien von Handel über Showroom bis hin zu serviceorientierten Konzepten mit klar definierten Warenanteilen.

Ein eigener Anlieferungsbereich sorgt für effiziente Logistikabläufe: Der Anlieferungsgang misst rund 164,85 m² und weist an der schmalsten Stelle eine Breite von ca. 1,50 m auf - ideal für Warenanlieferung, Back-of-House-Funktionen und interne Wegeführungen.

Damit verbindet das Objekt eine sofort nutzbare Fläche mit der Möglichkeit, betriebs­spezifische Anpassungen zielgerichtet vorzunehmen. Die Fläche ist aktuell vermietet - die vertraglichen Rahmenbedingungen sehen eine Restlaufzeit von rund 8 Jahren vor; die Übernahme erfolgt "wie liegt und steht" und ermöglicht eine zeitnahe Umsetzung.

Die Ecklage mit hoher Sichtbarkeit, die zeitnahe Verfügbarkeit und die durchdachte Logistik machen diese Adresse zu einem leistungsfähigen Standort für moderne Handels- und Dienstleistungskonzepte - mit klaren Vorteilen in Frequenz, Erreichbarkeit und operativer Effizienz

Verkehrsanbindung & Lage

* Wr. Neudorf Bahnhof (Badner Bahn) - fußläufig in Sekunden; Buslinien 2, 215, 216, 217
Straße:
* A2, S1, A21 in wenigen Fahrminuten
* Flughafen Wien-Schwechat: ca. 20 Min. mit dem Auto

 

Konditionen

* Betriebskosten: € 2,80 / m² / Monat (exkl. Heiz- und Kühlkostenakonti)
* Alle Preise verstehen sich zuzüglich der gesetzlichen Umsatzsteuer.

 

Infrastruktur / Entfernungen

Gesundheit
Arzt <500m
Apotheke <500m
Klinik <2.500m
Krankenhaus <1.500m

Kinder & Schulen
Schule <500m
Kindergarten <500m
Universität <9.500m
Höhere Schule <2.500m

Nahversorgung
Supermarkt <500m
Bäckerei <500m
Einkaufszentrum <1.000m

Sonstige
Bank <500m
Geldautomat <500m
Post <500m
Polizei <1.000m

Verkehr
Bus <500m
U-Bahn <5.000m
Bahnhof <500m
Straßenbahn <5.000m
Autobahnanschluss <1.500m

Angaben Entfernung Luftlinie / Quelle: OpenStreetMap

Merkmale

  • Erdgeschoss

Grundrisse

Grundrisse
1 / 1

Realisiere Dein Projekt

Bausubstanz und Energie

Der Anbieter hat keine Informationen zum Energieverbrauch bereit gestellt.
  • Zustand der ImmobilieNeubau, Erstbezug
Immowelt logo

Mietkosten

Nettokaltmiete
12,74 €/m²
10.000 €
Betriebskosten
1.883,59 €
Provision für Mieter
3 Bruttomonatsmieten zzgl. 20% USt.
Kaution
3-6 Bruttomonatsmieten
Weitere Preisinformationen
Nettokaltmiete: 10.000,00 EUR

Lage

address-icon
Wiener Neudorf (2351)

Weitere Informationen

Stichworte Nutzfläche: 784,83 m², Bundesland: Niederösterreich

Weitere Services

Lust auf eine Besichtigung?
Eine Frage zur Immobilie?
Nachricht hinzufügen
Mit der Nutzung der oben angegebenen Telefonnummer oder durch Klicken auf „Kontaktieren“ akzeptierst Du die Allgemeinen Nutzungsbedingungen, denen Du jederzeit widersprechen kannst. Weitere Informationen zum Datenschutz

Über den Anbieter

Marc-Aurel-Straße 6/6, 1010 WIEN
partner badge
Partnerschaft
Herr Harald AnderlikDein Kontakt
Online-ID: 2mms55b
Referenznummer: OBGC2025111412114157427867ea05e
EDEX Immobilien GmbH
EDEX Immobilien GmbH
Bewertung: 5 von 5 Sternen
Nachricht hinzufügen
Mit der Nutzung der oben angegebenen Telefonnummer oder durch Klicken auf „Kontaktieren“ akzeptierst Du die Allgemeinen Nutzungsbedingungen, denen Du jederzeit widersprechen kannst. Weitere Informationen zum Datenschutz
Wie zufrieden bist du mit dieser Seite (nicht mit der Immobilie selbst)?