Baugrundstück für 3 Reihenhäuser in Karlsfeld zu verkaufen!
Attraktives Baugrundstück mit 535m² Grundstücksfläche in sehr guter Lage von Karlsfelds Seeseite mit Altbestand. Für das Grundstück wurde bereits eine Baugenehmigung für drei Reihenhäuser erwirkt. Auf dem Grundstück befindet sich noch ein Bestandsgebäude (Abriss).
Im Überblick:
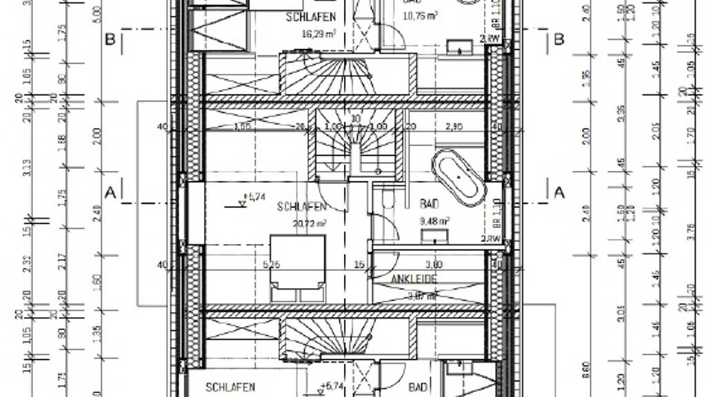
zu erzielende Wohnfläche: ca. 420m² zu erzielende Nutzfläche: ca. 167m² Geschosse: KG+EG+OG+DG Stellplätze: 6 PKW-Außenstellplätze
Merkmale
535 m² Grundstück
voll erschlossen
Bausubstanz und Energie
Zustand der ImmobilieAbrissobjekt
Preisdetails
Kaufpreis
1250000 €1.250.000 €
2.336,45 €/m²
Provision für Käufer
3,57 % inkl. MwSt.
Geschätzte Gesamtkosten
1.294.625 €1
Kaufpreis
1.250.000 €
Kaufnebenkosten
44.625 €
2
Provision für Käufer (3,57%)
44.625 €
1Der angezeigte Wert ist eine automatisch berechnete Schätzung von immowelt.
2Bei den Angaben handelt es sich um ortsübliche Werte. Individuelle Kosten können abweichen.
Lage
Karlsfeld (85757)
Der Anbieter hat die genaue Adresse nicht freigegeben
Die Gemeinde Karlsfeld liegt direkt an der westlichen Stadtgrenze von München und bietet erstklassige Verbindungen, sowie alle infrastrukturellen Vorzüge. Die S-Bahn ist in ca. 10 Minuten erreicht und über die Autobahn A99 sind auch Ziele wie der Flughafen München und die Messe München hervorragend erreichbar. Bis zum Knotenpunkt Laim auf der MVV Stammstrecke sind es lediglich vier Stationen nur drei weitere bis zum Hauptbahnhof und das in ca. 18 Minuten Fahrtzeit. Innerhalb der Gemeinde fahren verschiedene Buslinien, sodass auch hier durchaus auf Fahrten mit dem PKW verzichtet werden kann. Die Gemeinde Karlsfeld zeichnet sich zudem durch eine moderne und umfassende Infrastruktur aus und erfreut sich zunehmend weiterer Beliebtheit. Schulen und Kindergärten befinden sich in großzügiger Anzahl direkt im Ort. Im Zusammenspiel mit dem nahe gelegenen Dachau bzw. den Münchner Stadtteilen Allach, Ludwigsfeld und Fasanerie bietet diese Wohnlage ein erstklassiges Angebot für Familien mit Kindern.
Weitere Informationen
Sonstiges
Wir hoffen Ihr Interesse geweckt zu haben und freuen uns auf Ihren Kontakt.
Für weitere Rückfragen steht Ihnen unser Herr Wittmann unter 08131 / 45 45 28 oder 0172 / 280 6642 jederzeit gerne zur Verfügung.