Version: 8.25.1Navigation überspringen
380.000 €
Immowelt logo

Grundstück zum Kauf
380000 €

Traumhaftes Baugrundstück in Rehhof/Salzburgs Süden - Leistbar, sonnig und ruhig!

Willkommen in Rehhof - dem perfekten Standort für Ihr modernes Eigenheim:

Ihr Traum vom leistbaren, neu gebauten Haus kann hier endlich Wirklichkeit werden!

Dieses bereits vermessene Fahnen-Grundstück mit einer Fläche von insgesamt 708 m² (Gesamtfläche, Sie erwerben einen Hälfteanteil) bietet Ihnen die einmalige Gelegenheit, Ihre Träume vom eigenen Zuhause in Form eines Doppeleinfamilienhauses nach modernsten Standards zu verwirklichen. Umgeben von der atemberaubenden Natur des Salzburger Landes und nur einen Steinwurf von den Annehmlichkeiten Salzburgs und Halleins entfernt, ist dieses Grundstück der ideale Ort für Familien, Paare oder alle, die auf der Suche nach einem Rückzugsort sind.

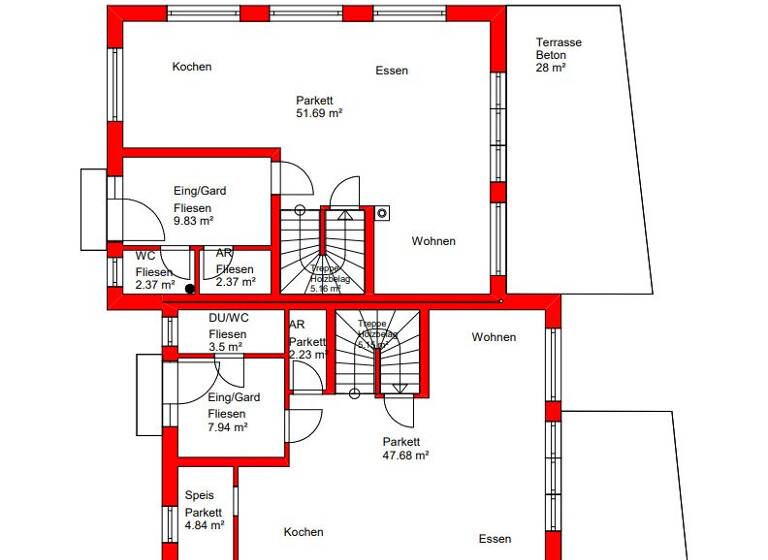
Sie dürfen voraussichtlich mit der Errichtung einer ca. 130m² großen unterkellerten und wertbeständigen Ziegel-Doppelhaushälfte mit 2 PKW-Stellplätzen und modernster Haustechnik rechnen (vorbehaltlich genauer Einreichplanung und behördlicher Baugenehmigung):

Ein sehr großzügiger Wohn-Essbereich mit offener Küche, separatem Gäste-WC im Gartengeschoss mit Terrasse und eigenem Garten sowie 3 mögliche Schlaf-/Kinder-/Arbeitszimmer samt Tageslicht-Bad und separatem WC im Obergeschoss ermöglichen Freiräume und individuelles Wohnvergnügen für Paare und Familien. 

Da Sie im Ankauf nur den Grundstücksanteil erwerben, fallen die Nebenkosten wie Grunderwerbssteuer, Notar- und Maklerkosten nur für den Kaufpreis des Grundstücksanteil und nicht für das Haus an. Investieren Sie diese Kostenersparnis doch lieber in Ihre Traumküche und/oder Traumbad!

Zögern Sie nicht - ein Grundstück wie dieses ist rares, nicht vermehrbares Gut und wird aufgrund der aktuellen Preise für andere Baugrundstücke in dieser Lage nicht lange auf dem Markt sein.

Kontaktieren Sie uns lieber noch heute, um mehr über dieses Baugrundstück in Rehhof zu erfahren und den ersten Schritt in Richtung Ihres Traumhauses zu machen!

Bei Fragen zur Finanzierung stehen wir Ihnen ebenfalls sehr gerne zur Seite.

Der Vermittler ist als Doppelmakler tätig.

Grundrisse

Verschaffe dir einen genauen Überblick über die Raumaufteilung.selection_property_house-icon

Realisiere Dein Projekt

Bausubstanz und Energie

Möchtest du Details zum Energieverbrauch?info_energy_calculation-icon
Immowelt logo

Preisdetails

Kaufpreis
380000 €
Provision für Käufer
3% des Kaufpreises zzgl. 20% USt.

Lage

address-icon
Hallein (5400)
Dieses attraktive Baugrundstück in Rehhof bietet in der ersten Reihe am Treppelweg die perfekte Lage für Ihr Eigenheim/Doppelhaushälfte. Eingebettet in eine ruhige und naturnahe Umgebung überzeugt der Standort mit seinen vielfältigen Freizeitmöglichkeiten und sehr guter Infrastruktur im Süden Salzburgs. Die Anbindung an öffentliche Verkehrsmittel und die Erreichbarkeit von Schulen, Einkaufsmöglichkeiten sowie Erholungsgebieten machen diese Lage besonders begehrenswert. Ideal für Familien und Naturliebhaber!

Weitere Informationen

Stichworte Bundesland: Salzburg

Weitere Services

Lust auf eine Besichtigung?
Eine Frage zur Immobilie?
Nachricht hinzufügen
Mit der Nutzung der oben angegebenen Telefonnummer oder durch Klicken auf „Kontaktieren“ akzeptierst Du die Allgemeinen Nutzungsbedingungen, denen Du jederzeit widersprechen kannst. Weitere Informationen zum Datenschutz

Über den Anbieter

Wasserfeldstraße 10, 5102 ANTHERING
partner badge
Partnerschaft
Frau Theresa-Maria HöhenerDein Kontakt
Online-ID: 25RNQG9Y5FBH
Referenznummer: OBGC20250728102847078ab8df343bc
Immobilienkontor Mag. Theresia-Maria Höhener e.U
Immobilienkontor Mag. Theresia-Maria Höhener e.U
Nachricht hinzufügen
Mit der Nutzung der oben angegebenen Telefonnummer oder durch Klicken auf „Kontaktieren“ akzeptierst Du die Allgemeinen Nutzungsbedingungen, denen Du jederzeit widersprechen kannst. Weitere Informationen zum Datenschutz
Wie zufrieden bist du mit dieser Seite (nicht mit der Immobilie selbst)?