Version: 8.25.1Navigation überspringen
1.035.636 €
7 Zimmer  •  182 m²  •  416 m² Grundstück
Immowelt logo

Einfamilienhaus zum Kauf • provisionsfrei
1035636 €
5.690 €/m²
7 Zimmer  •  182 m²  •  416 m² Grundstück

In TOP AUSSICHTSLAGE: "Modernes Wohnen für die ganze Familie" Hochwertiges EFH in Ostelsheim

Willkommen in Ihrem neuen Zuhause!
Dieses moderne Einfamilienhaus in traumhafter Aussichtslage von Ostelsheim überzeugt durch eine großzügige Raumaufteilung, dem herrlichen Garten und einem traumhaften, unverbaubaren Blick in die Natur.
Das Haus befindet sich in einer beliebten Wohnlage mit beeindruckender Fernsicht sowie viel Privatsphäre. Die Kombination aus naturnahem Wohnen und guter Verkehrsanbindung macht diese Immobilie besonders attraktiv für Familien.

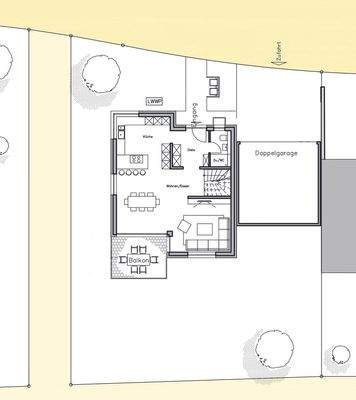
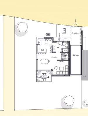
Sie haben die Möglichkeit für eine Doppelgarage.

Im großzügigen Eingangsbereich befindet sich ein modernes Duschbad.
Herzstück des Hauses ist der 52 m² große, offen gestaltete Wohn- und Essbereich mit der Küche - ein idealer Ort zum Leben und Wohlfühlen. Große Fensterflächen sorgen für ein helles und freundliches Ambiente. Von hier gelangen Sie direkt auf den großen Balkon, der Ihnen einen herrlichen Fernblick bietet.

Im Dachgeschoss stehen Ihnen zwei große und helle Kinderzimmer sowie ein komfortables Elternschlafzimmer zur Verfügung. Ein praktisches Gäste- oder Arbeitszimmer bietet Ihnen zusätzliche Möglichkeiten. Das moderne Tageslichtbad ist direkt nebenan - ideal für die ganze Familie.

Die beiden geräumigen Zimmer im Gartengeschoss sind vielseitig nutzbar als Homeoffice, Kinder- oder Gästezimmer. Von hier haben Sie Zugang zur Terrasse und in den sonnigen Garten.
Ergänzt wird das Raumangebot durch eine Waschküche mit Technikbereich sowie einen praktischen Kellerabstellraum.

Die Fußbodenheizung im ganzen Haus sorgt für ein angenehmes Wohnraumklima.

Merkmale

  • 416 m² Grundstück
  • Balkon
  • Terrasse
  • 2 Stellplätze: 2 Garagen
Das Haus ist bezugsfertig geplant. Alle Bodenbeläge, Malerarbeiten sowie elektrischen Rollläden sind im Preis enthalten. Sämtliche Zimmer sind mit Parkettboden ausgestattet.
Dieses Einfamilienhaus wird in sehr guter Massivbauweise (Stein auf Stein) mit 3-fach Verglasung, Fußbodenheizung, LWWP (GEG 2024) und Photovoltaik-Anlage erstellt, Energieeffizienzklasse A+.

Grundrisse

Grundrisse
1 / 6

Realisiere Dein Projekt

Bausubstanz und Energie

Möchtest du Details zum Energieverbrauch?info_energy_calculation-icon
  • Baujahr2027
  • Zustand der ImmobilieNeubau, Massivhaus, Projektiert
  • HeizungsartFußbodenheizung
  • EnergieträgerLuft-/Wasser-Wärmepumpe
Immowelt logo

Preisdetails

Kaufpreis
1035636 €
5.690,31 €/m²
Provision für Käufer
provisionsfrei
Weitere Preisinformationen
2 Garagenstellplätze
Geschätzte Gesamtkosten
1.108.131 €1
Kaufpreis
1.035.636 €
Notarkosten (1,5%)
15.535 €
Grunderwerbsteuer (5%)
51.782 €
Grundbucheintrag (0,5%)
5.178 €
1Der angezeigte Wert ist eine automatisch berechnete Schätzung von immowelt.
2Bei den Angaben handelt es sich um ortsübliche Werte. Individuelle Kosten können abweichen.

Lage

address-icon
Ostelsheim (75395)
Der Anbieter hat die genaue Adresse nicht freigegeben
Das EFH wird in familienfreundlicher Wohnlage im Neubaugebiet von Ostelsheim gebaut. Kindergarten, Grundschule, Bahnhof, Supermarkt und Bäcker befinden sich direkt vor Ort und sind zu Fuß erreichbar.
Die Herrmann-Hesse-Bahn bietet Ihnen eine attraktive Anbindung nach Weil der Stadt und Renningen und von dort aus kommen Sie bequem mit der S-Bahn nach Stuttgart.
Die Umgebung von Ostelsheim mit seiner herrlichen Landschaft lädt zu Spaziergängen und Ausflügen ein.

Weitere Informationen

Sonstiges Rufen Sie uns gleich an und vereinbaren Sie einen individuellen Besichtigungstermin.

Wir freuen uns von Ihnen zu hören!

Ihre Wünsche können in der Planung noch berücksichtigt werden.

"Das familienfreundliche und moderne Zuhause mit großzügigem Raumkonzept in bester Lage" Stichworte Anzahl der Schlafzimmer: 5, Anzahl der Badezimmer: 2, Anzahl Balkone: 1, Anzahl Terrassen: 1, 2 Etagen

Weitere Services

Lust auf eine Besichtigung?
Eine Frage zur Immobilie?
Nachricht hinzufügen
Mit der Nutzung der oben angegebenen Telefonnummer oder durch Klicken auf „Kontaktieren“ akzeptierst Du die Allgemeinen Nutzungsbedingungen, denen Du jederzeit widersprechen kannst. Weitere Informationen zum Datenschutz

Über den Anbieter

Große Falterstr. 101, 70597 Stuttgart
partner badge
10 Jahre Partnerschaft
Online-ID: 26NTHQNMMEUX
Referenznummer: 13307096
gut Immobilien GmbH
gut Immobilien GmbH
Bewertung: 4,6 von 5 Sternen
Nachricht hinzufügen
Mit der Nutzung der oben angegebenen Telefonnummer oder durch Klicken auf „Kontaktieren“ akzeptierst Du die Allgemeinen Nutzungsbedingungen, denen Du jederzeit widersprechen kannst. Weitere Informationen zum Datenschutz
Wie zufrieden bist du mit dieser Seite (nicht mit der Immobilie selbst)?