Version: 8.25.1Navigation überspringen
2.510.000 €
3,5 Zimmer  •  125,5 m²  •  EG
Immowelt logo

Wohnung zum Kauf - Erstbezug • provisionsfrei
2510000 €
19.997 €/m²
3,5 Zimmer  •  125,5 m²  •  EG

3,5-Zimmer Terrassenwohnung (Top GM 04)

Wohnen
In einer der exklusivsten Wohngegenden, in München-Bogenhausen, entstehen elf Wohnungen der gehobenen Klasse. Das wunderschöne Grundstück mit altem Baumbestand bietet viel Privatsphäre, in einer durch Villen geprägten Wohngegend.
Genießen Sie die besondere Lebensqualität in Laufweite zum Englischen Garten und zur Isar, sowie den hohen Freizeitwert.
Durch Kombination aus klassischer Architektur, hochwertiger Ausstattung und nachgefragter Lage bietet das Mehrfamilienhaus das passende Ambiente für einen anspruchsvollen Lebensstil.

Wohnqualität
Das nach Südwest ausgerichtete Gebäude besticht durch seine villenartige Architektur und großzügige Grundrisse von 45 bis 155 m². Die weitläufigen, privaten Gartenanteile in den Erdgeschosswohnungen, umlaufende Balkone im Obergeschoss und die übergroßen Terrassen im Dachgeschoss sind das Highlight dieses Objekts. Bodentiefe Fenster lassen viel Sonne in die Räume strahlen, die gehobene Grundausstattung lässt keine Wünsche offen.

Ausstattungsqualität
Schon in der Grundrissplanung wurde jedem Quadratmeter besondere Aufmerksamkeit und Leidenschaft gewidmet. Herzstück sind die nach Süden ausgerichteten Wohn-, Ess- und Kochbereiche mit einem großzügigen Blick ins Grüne. Komfortable Schlafbereiche - teilweise mit en-suite-Bädern und angrenzenden Ankleidezimmern - sowie stilvolle Badezimmer, die an ein privates Spa erinnern, runden das durchdachte Wohnkonzept ab.

Qualitätsmerkmale Ihrer neuen Wohnung sind:
. Durchdachte Grundrisse für mehr Wohnqualität
. Großzügige Terrassen sowie private Gärten
. Fußbodenheizung mit Einzelraumregelung
. Echtholzparkett für das besondere Wohngefühl
. Bodentiefe Fenster für mehr Tageslicht
. Hochwertiges, großformatiges Feinsteinzeug in Küche und Bad
. Gegensprechanlage mit Video
. Hauseigene Tiefgarage mit PKW-Einzelstellplätzen

Lage
Keine Stadt in Deutschland bietet so viel Lebensqualität wie München. Maßgeblich hierfür ist nicht nur der hohe Freizeitwert aus zahlreichen, malerischen Seen und der nahegelegenen Alpenregion, sondern auch eine Vielzahl an unschlagbaren Eigenschaften, wie hervorragende Infrastruktur sowie vielfältige Kultur und Kulinarik.
Der Stadtteil Bogenhausen zählt zu den attraktivsten Wohngegenden in München. Die besondere Lebensqualität zeichnet sich durch den beruhigten Charakter, gepaart mit exklusiven Wohnlagen, einer perfekte Infrastruktur und einem hohen Freizeitwert aus.

Einkaufsmöglichkeiten, Schulen, Kindergärten und Ärzte sind ausreichend vorhanden, die Verkehrsanbindung nach München mit den öffentlichen Verkehrsmitteln ist ideal und in wenigen Gehminuten erreichbar.

Merkmale

  • Erdgeschoss
  • Personenaufzug
  • Keller
  • Terrasse
  • Barrierefrei

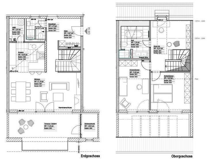
Grundrisse

Grundrisse
1 / 1

Realisiere Dein Projekt

Bausubstanz und Energie

Möchtest du Details zum Energieverbrauch?info_energy_calculation-icon
  • Zustand der ImmobilieNeubau, Erstbezug
Immowelt logo

Preisdetails

Kaufpreis
2510000 €
19.996,81 €/m²
Provision für Käufer
provisionsfrei

Lage

address-icon
Gumbinnenstraße 13München (81929)

Weitere Informationen

Stichworte Garage vorhanden, Anzahl Terrassen: 1, Balkon-Terrassen-Fläche: 11,54 m², Kellerfläche: 10,00 m², Bundesland: Vorarlberg

Weitere Services

Lust auf eine Besichtigung?
Eine Frage zur Immobilie?
Nachricht hinzufügen
Mit der Nutzung der oben angegebenen Telefonnummer oder durch Klicken auf „Kontaktieren“ akzeptierst Du die Allgemeinen Nutzungsbedingungen, denen Du jederzeit widersprechen kannst. Weitere Informationen zum Datenschutz

Über den Anbieter

Südliche Münchner Str. 60, 82031 Grünwald
partner badge
Partnerschaft
Frau Meena AsadiDein Kontakt

Weitere Unterlagen

Online-ID: 26NCH815FSAA
Referenznummer: 13104-GM 04
carat Immobilien GmbH
carat Immobilien GmbH
Bewertung: 5 von 5 Sternen
Nachricht hinzufügen
Mit der Nutzung der oben angegebenen Telefonnummer oder durch Klicken auf „Kontaktieren“ akzeptierst Du die Allgemeinen Nutzungsbedingungen, denen Du jederzeit widersprechen kannst. Weitere Informationen zum Datenschutz
Wie zufrieden bist du mit dieser Seite (nicht mit der Immobilie selbst)?