Version: 8.22.6Navigation überspringen
249.000 €
4 Zimmer  •  88,2 m²  •  2. Geschoss
Immowelt logo

Wohnung zum Kauf
249000 €
2.822 €/m²
4 Zimmer  •  88,2 m²  •  2. Geschoss

BALKON I FAMILIENFREUNDLICH I GEPFLEGT I HELLE WOHNUNG MIT TG I BADEWANNE I LICHTDURCHFLUTET I ZENTRAL I PROJEKT WOHNEN

Willkommen in Ihrem neuen Zuhause in der Peter-Tunner-Gasse - Geräumige 4-Zimmer-Wohnung mit sonnigem Balkon und viel Potenzial!

 

* 4 separat begehbare Zimmer - ideal für Familien oder Paare mit Platzbedarf
Alle Räume sind vom Flur oder Wohnbereich aus erreichbar und bieten optimale Nutzungsmöglichkeiten als Schlafzimmer, Kinderzimmer, Arbeits- oder Gästezimmer.
* Sonniger Balkon mit Süd-Ausrichtung (ca. 5,45?m²)
Der Balkon ist direkt vom Wohnzimmer aus begehbar, südlich ausgerichtet und bietet einen ruhigen Platz zum Entspannen, Essen oder Arbeiten im Freien.
* Großzügiges Wohnzimmer mit direktem Zugang zum Außenbereich
Das helle Wohnzimmer bildet das Herzstück der Wohnung - mit viel Raum für Wohnlandschaft und Essbereich sowie Zugang zum Balkon.
* Traumküche nach eigenen Wünschen gestaltbar
Die Wohnung wird ohne Küche übergeben - Sie haben also die Möglichkeit, Ihre persönliche Traumküche ganz nach Geschmack und Stil umzusetzen.
* Modernes Badezimmer mit Fenster, Wanne & Waschmaschinenanschluss
Das Badezimmer ist hell, mit Fenster ausgestattet und bietet eine Badewanne, Waschbecken sowie einen praktischen Anschluss für Ihre Waschmaschine.
* Separates WC mit Handwaschbecken und Fenster
Besonders praktisch: Das WC ist separat begehbar und verfügt zusätzlich über ein Fenster und ein Handwaschbecken - komfortabel und alltagstauglich.

 

Ihr neues Zuhause mit Aussicht, Raumgefühl und Gestaltungsspielraum

In der beliebten Wohngegend von Graz, in der Peter-Tunner-Gasse 41, erwartet Sie diese großzügige 4-Zimmer-Wohnung im zweiten Stock einer gepflegten Wohnanlage. Mit 88,24?m² Wohnfläche, einem sonnigen Balkon, vier separat begehbaren Zimmern sowie der Möglichkeit zur individuellen Küchengestaltung eignet sich dieses Zuhause perfekt für Familien, Paare mit Platzbedarf oder Wohnen & Arbeiten unter einem Dach.

Beim Betreten der Wohnung empfängt Sie ein freundlicher Vorraum mit ausreichend Platz für Ihre Garderobe. Rechter Hand befindet sich das separate WC mit Fenster und Handwaschbecken - ein praktisches Detail, das Komfort und Funktionalität vereint.

Das großzügige Wohnzimmer ist hell und offen gestaltet. Von hier aus gelangen Sie direkt auf den ruhigen, südseitigen Balkon, der sich wunderbar für Frühstücke im Freien oder entspannte Sonnenstunden eignet. Die fehlende Küche eröffnet Ihnen kreativen Spielraum - planen und gestalten Sie Ihre eigene Küche ganz nach Ihren Bedürfnissen und Ihrem Stil.

Ein kurzer Flur verbindet drei weitere Zimmer, die sich optimal als Schlafzimmer, Kinderzimmer oder Homeoffice nutzen lassen. Das Badezimmer ist ebenfalls vom Flur aus zugänglich und verfügt über ein Fenster, eine Badewanne, ein Waschbecken sowie einen Waschmaschinenanschluss.

Beheizt wird die Wohnung umweltfreundlich über Fernwärme, die Wohnräume sind mit pflegeleichtem Laminatboden ausgestattet. Ein Kellerabteil rundet dieses attraktive Angebot ab.
Ein Tiefgaragenplatz in der hauseigenen Garage kann für €?16.000 separat erworben werden - ein klarer Pluspunkt für bequemes Parken in der Stadt.

 

Ich freue mich auf Ihre Anfrage und darauf, Ihnen diese schöne Wohnung bei einer persönlichen Besichtigung vorstellen zu dürfen!

Der Vermittler ist als Doppelmakler tätig.

Infrastruktur / Entfernungen

Gesundheit
Arzt <225m
Apotheke <50m
Klinik <425m
Krankenhaus <575m

Kinder & Schulen
Schule <450m
Kindergarten <300m
Universität <1.325m
Höhere Schule <1.375m

Nahversorgung
Supermarkt <100m
Bäckerei <425m
Einkaufszentrum <1.475m

Sonstige
Geldautomat <625m
Bank <625m
Post <775m
Polizei <1.025m

Verkehr
Bus <75m
Straßenbahn <400m
Autobahnanschluss <4.350m
Bahnhof <1.350m

Angaben Entfernung Luftlinie / Quelle: OpenStreetMap

Merkmale

  • Bezug: ab sofort!
  • 2. Geschoss
  • Garage, Außen-Stellplatz
  • Balkon
  • Badezimmer: Badewanne, Bad mit Fenster
  • WG-geeignet
  • Bodenbelag: Fliesen, Laminat

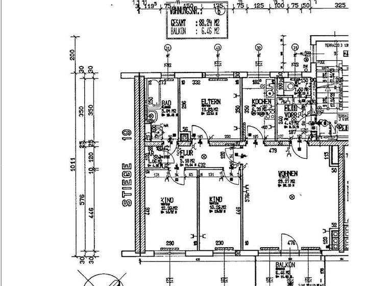
Grundrisse

Grundrisse
1 / 1

Realisiere Dein Projekt

Bausubstanz und Energie

Heizwärmebedarf (HWB)

C

Gesamtenergieeffizienz (fGEE)

C
  • Baujahr1992
  • Zustand der ImmobilieNeubau
  • EnergieträgerFernwärme
Immowelt logo

Preisdetails

Kaufpreis
249000 €
2.821,85 €/m²
Provision für Käufer
3% des Kaufpreises zzgl. 20% USt.
Weitere Preisinformationen

TG Platz zusätzlich EUR 16.000.-, 1 Stellplatz
1 Garagenstellplatz

Lage

address-icon
Peter-Tunner-Gasse 41EggenbergGraz (8020)
Die Wohnung befindet sich in der beliebten Peter-Tunner-Gasse 43 im 15. Grazer Stadtbezirk Eggenberg - einer Wohngegend, die sich durch ihre ausgezeichnete Infrastruktur, gute Anbindung und hohe Lebensqualität auszeichnet. Die Lage bietet den idealen Mix aus urbanem Komfort und angenehmer Wohnruhe.In unmittelbarer Nähe finden sich zahlreiche Einkaufsmöglichkeiten, Apotheken, Banken sowie Schulen und Kindergärten - perfekt für den Alltag. Auch das Shoppingcenter Citypark ist nur wenige Minuten entfernt und lädt zum Einkaufen und Verweilen ein. Die Anbindung an den öffentlichen Verkehr ist hervorragend: In nur wenigen Gehminuten erreichen Sie Straßenbahn- und Bushaltestellen, die Sie direkt ins Stadtzentrum oder zum Hauptbahnhof bringen. Auch mit dem Auto sind Sie über den nahegelegenen Weblinger Gürtel oder die Kärntner Straße bestens vernetzt. Für Sport- und Naturbegeisterte bietet die Umgebung zahlreiche Freizeitmöglichkeiten - von Spaziergängen im nahegelegenen Schlosspark Eggenberg bis hin zu sportlichen Aktivitäten im Auster Sport- und Wellnessbad.

Weitere Informationen

Stichworte Tiefgarage vorhanden, Süd-Balkon/Terrasse, Nutzfläche: 88,24 m², Anzahl der Badezimmer: 1, Anzahl der separaten WCs: 1, Anzahl Balkone: 1, Balkon-Terrassen-Fläche: 6,46 m², Kellerfläche: 5,45 m², Bundesland: Steiermark, Wohnungsnr.: 6a

Weitere Services

Lust auf eine Besichtigung?
Eine Frage zur Immobilie?
Nachricht hinzufügen
Mit der Nutzung der oben angegebenen Telefonnummer oder durch Klicken auf „Kontaktieren“ akzeptierst Du die Allgemeinen Nutzungsbedingungen, denen Du jederzeit widersprechen kannst. Weitere Informationen zum Datenschutz

Über den Anbieter

Neufeldweg 250a, 8041 GRAZ
Frau Lucija KlepicDein Kontakt
Online-ID: 2n43d5l
Referenznummer: OBGC20260220103854624dadc00a77c
Projekt Wohnen Gruppe GmbH
Projekt Wohnen Gruppe GmbH
Bewertung: 4,8 von 5 Sternen
Nachricht hinzufügen
Mit der Nutzung der oben angegebenen Telefonnummer oder durch Klicken auf „Kontaktieren“ akzeptierst Du die Allgemeinen Nutzungsbedingungen, denen Du jederzeit widersprechen kannst. Weitere Informationen zum Datenschutz
Wie zufrieden bist du mit dieser Seite (nicht mit der Immobilie selbst)?