Version: 8.24.0Navigation überspringen
TWE-Immobilien Thomas Erthle e. K.
224.000 €
6 Zimmer  •  185 m²  •  921 m² Grundstück

Einfamilienhaus zum Kauf
224000 €
1.211 €/m²
6 Zimmer  •  185 m²  •  921 m² Grundstück

Charmantes Einfamilienhaus mit Garage und Garten

Das Gebäude wurde zuletzt als Wohnhaus mit Büro genutzt und bietet durch seine solide
Grundstruktur vielseitige Nutzungsmöglichkeiten - vom Familienhaus über ein Ferienobjekt bis
hin zum Liebhaberobjekt für historische Architektur.

Dieses charmante Einfamilienhaus in Burghaslach-Breitenlohe wurde um 1903 erbaut und
diente ursprünglich als Pfarrhaus. Mit einer soliden Massivbauweise, einem Nebengebäude
und einer großen Grundstücksfläche von rund 921 m² bietet die Immobilie
viel Potenzial für Familien und Liebhaber historischer Bausubstanz. Das Gebäude umfasst
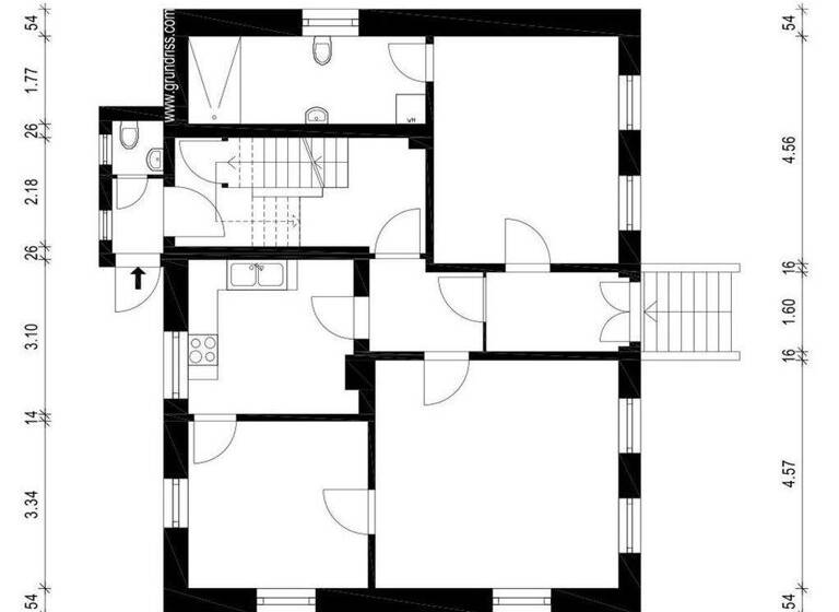
Keller, Erdgeschoss, Obergeschoss und Dachgeschoss. Im Erdgeschoss befinden sich
Küche, Abstellraum, Wohnzimmer, WC und Flur mit Treppe. Das Obergeschoss beherbergt
drei Zimmer, ein Bad mit WC und eine Diele. Der Keller ist als klassischer Gewölbekeller
ausgebaut - ideal für Lagerung oder Weinvorräte. Westlich grenzt eine Garage an das
Grundstück an, mit Zufahrt über die Ortsstraße. Der Hofbereich sowie der Garten bieten
ausreichend Platz für Freizeit und Gestaltung. Die Ausstattung ist einfach, aber funktional - typisch für Gebäude dieser Baujahre.

Merkmale

  • vermietet
  • 921 m² Grundstück
  • Einbauküche, Speisekammer
  • Kelleranteil
  • 2 Stellplätze: Garage, Außen-Stellplatz
  • Terrasse
  • DSL-Anschluss

Grundrisse

Grundrisse
1 / 2

Realisiere Dein Projekt

Bausubstanz und Energie

Energieausweis

H
  • Baujahr1903
  • Zustand der ImmobilieAltbau (bis 1945), Massivhaus, renovierungsbedürftig / sanierungsbedürftig
  • HeizungsartZentralheizung
  • EnergieträgerÖl, Holz
MediumRectangleTop

Preisdetails

Kaufpreis
224000 €
1.210,81 €/m²
Provision für Käufer
3,57 % inkl. MwSt.
Weitere Preisinformationen
1 Stellplatz
1 Garagenstellplatz
Geschätzte Gesamtkosten
244.317 €1
Kaufpreis
224.000 €
Notarkosten (1,5%)
3.360 €
Grunderwerbsteuer (3,5%)
7.840 €
Provision für Käufer (3,57%)
7.997 €
Grundbucheintrag (0,5%)
1.120 €
1Der angezeigte Wert ist eine automatisch berechnete Schätzung von immowelt.
2Bei den Angaben handelt es sich um ortsübliche Werte. Individuelle Kosten können abweichen.

Lage

address-icon
UnterrimbachBurghaslach (96152)
Der Anbieter hat die genaue Adresse nicht freigegeben
Breitenlohe ist ein Ortsteil der Gemeinde Burghaslach im mittelfränkischen Landkreis Neustadt
a.d. Aisch-Bad Windsheim. Der Ort liegt idyllisch im Tal der Reichen Ebrach und ist umgeben
von Wiesen und Feldern. Die Gemeinde Burghaslach verfügt über ca. 2.400 Einwohner
(Breitenlohe ca. 200) und bietet eine solide Infrastruktur: Kindergarten und Grundschule in
Burghaslach, weiterführende Schulen in Scheinfeld und Neustadt/Aisch,
Einkaufsmöglichkeiten, Ärzte und Apotheken in Burghaslach und Neustadt/Aisch. Gute
ÖPNV-Anbindung durch Buslinien, sowie schnelle Erreichbarkeit über die A3 (Anschlussstelle
Schlüsselfeld). Die Lage verbindet ländliche Ruhe mit guter Erreichbarkeit - Würzburg und
Nürnberg sind jeweils in rund 45 Minuten erreichbar.

Weitere Informationen

Sonstiges Wir sind der allein beauftragte Makler und freuen uns auf Sie und Ihre Anfrage.

Für weitere Informationen stehen wir Ihnen gerne persönlich zur Verfügung.

Um eine schnelle Bearbeitung zu gewährleisten, bitten wir Sie, uns Ihre Kontaktdaten
mit E-Mail-Adresse und Telefon-Nummer zu übermitteln.

Wir vermitteln - mit Sicherheit. Stichworte Sonstiges/Wohnen: Dachboden Sonstiges: Sanierungs-Afa

Weitere Services

Lust auf eine Besichtigung?
Eine Frage zur Immobilie?
Nachricht hinzufügen
Mit der Nutzung der oben angegebenen Telefonnummer oder durch Klicken auf „Kontaktieren“ akzeptierst Du die Allgemeinen Nutzungsbedingungen, denen Du jederzeit widersprechen kannst. Weitere Informationen zum Datenschutz

Über den Anbieter

Edisonallee 7, 89231 Neu-Ulm
partner badge
10 Jahre Partnerschaft
Herr Rainer Durmich
Herr Rainer DurmichDein Kontakt
Online-ID: 2mcdw57
Referenznummer: 3426 (1/3426)
TWE-Immobilien Thomas Erthle e. K.
title
TWE-Immobilien Thomas Erthle e. K.
Bewertung: 4,7 von 5 Sternen
Nachricht hinzufügen
Mit der Nutzung der oben angegebenen Telefonnummer oder durch Klicken auf „Kontaktieren“ akzeptierst Du die Allgemeinen Nutzungsbedingungen, denen Du jederzeit widersprechen kannst. Weitere Informationen zum Datenschutz
MediumRectangleTop
MediumRectangleBottom
MediumRectangleTop
Wie zufrieden bist du mit dieser Seite (nicht mit der Immobilie selbst)?