
IMMOVENCE GmbH
Herr Matthias Nussbaumer
+43 ···
Nr. anzeigenPreise & Kosten
Provision für Käufer
provisionsfrei
Lage
Die Bezirksstadt Vöcklabruck ist der Inbegriff eines florierenden oberösterreichischen Zentrums. Hier profitieren Sie von einer hervorragenden Infrastruktur in zentraler Lage zwischen Salzburg, Linz und den herrlichen Gewässern des Traun- und Attersees. Gleichzeitig besticht die Innenstadt mit einer wahren Vielfalt an bunten...
Die Wohnung
Bezug
sofort
Wohnanlage
Energie & Heizung
Warum sehe ich diese Anzeige? – Du siehst diese Anzeige basierend auf Ihrer Navigation auf unserer Website und den Suchkriterien, die du verwendet hast.
Heizwärmebedarf (HWB)
25,00 kWh/(m²·a)
Gesamtenergieeffizienz (fGEE)
0,74
Weitere Energiedaten
Energieträger
Fernwärme
Heizungsart
Fußbodenheizung
Details
Objektbeschreibung
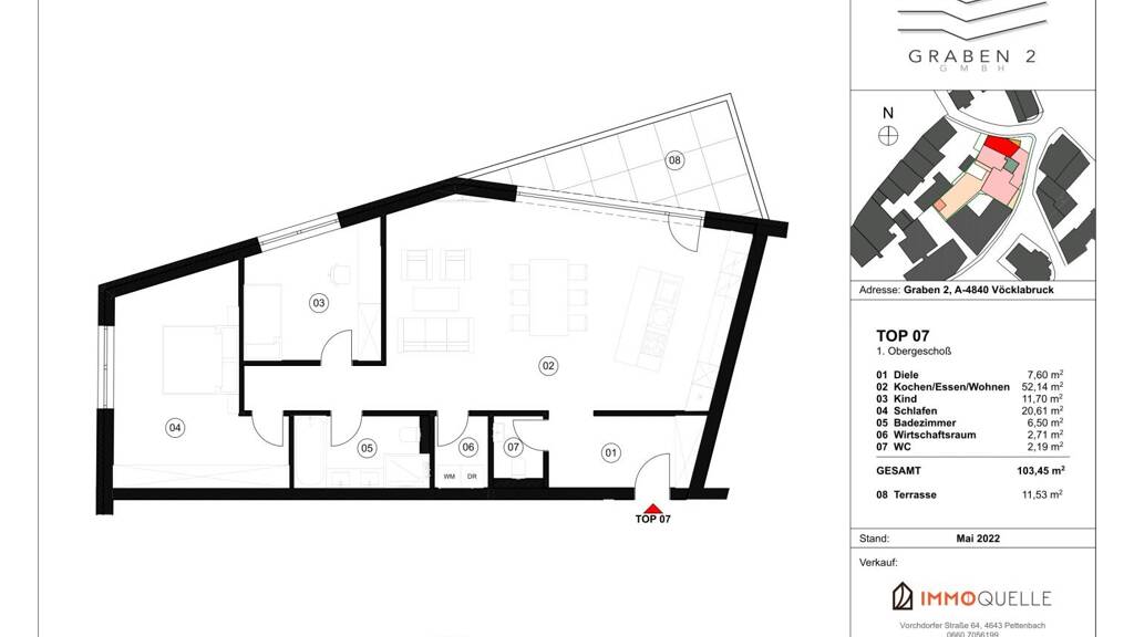
Top 7: Moderner Wohntraum - Durchdachtes Design, stilvolle Details und ein beeindruckender Wohn- und Essbereich - Ihr perfekter Rückzugsort
In zentralster Innenstadtlage von Vöcklabruck befindet sich diese elegante Stadtwohnung mit Terrasse im ersten Obergeschoss eines exklusiven Immobilienprojektes zwischen Graben 2...
Preisinformation
2 Garagenstellplätze
Weitere Informationen
Sonstiges
Webseite - https://www.immoquelle.at/immobilien/top-7-moderner-wohntraum-durchdachtes-design-stilvolle-details-und-ein-beeindruckender-wohn-und-essbereich-ihr-perfekter-rueckzugsort
Stichworte
Tiefgarage vorhanden, Anzahl der Badezimmer: 1, Anzahl der separaten WCs: 2, Anzahl Terrassen: 1...
Dokumente
Anbieter der Immobilie
IMMOVENCE GmbH
Vorchdorfer Straße 64, 4643 PETTENBACH
Online-ID: 2cqda56
Referenznummer: OBGC20231015143458547723ce48bcc
Finde Angebote wie dieses
Günstige Immobilienfinanzierung einfach online berechnen
Persönliches Angebot berechnenWarum sehe ich diese Werbung? – Du siehst diese Werbung basierend auf Deiner Navigation auf unserer Website und der von Dir verwendeten Suchkriterien.
Diese Werbung wird bezahlt von durchblicker
Werbung melden
Hier geht es zu unserem Impressum, den Allgemeinen Geschäftsbedingungen, den Hinweisen zum Datenschutz und nutzungsbasierter Online-Werbung.