Version: 8.22.4Navigation überspringen
627.000 €
4 Zimmer  •  122,2 m²
Immowelt logo

Doppelhaushälfte zum Kauf - Erstbezug
627000 €
5.132 €/m²
4 Zimmer  •  122,2 m²

Begrüßen Sie Ihre neue Doppelhaus-Hälfte am Wiener Stadtrand des 22.Bezirks gelegen

Wohnen und das Leben im 22. Bezirk genießen

In unmittelbarer Umgebung vom Badeteich Hirschstetten und der Seestadt, im 22. Bezirk, wurden ein belagsfertiges Doppelhaus sowie ein Einfamilienhaus errichtet. Durch die umliegende Natur, die vielen Möglichkeiten die Freizeit betreffend und die perfekte Erreichbarkeit der Innenstadt, machen diese Lage zum perfekte Plätzchen in Wien, um hier zu wohnen und das Leben zu  genießen.

 

Überzeugen Sie sich selbst, vereinbaren Sie einen unverbindlichen Beratungstermin.
Wir freuen uns sehr auf ein persönliches Gespräch mit Ihnen!

 

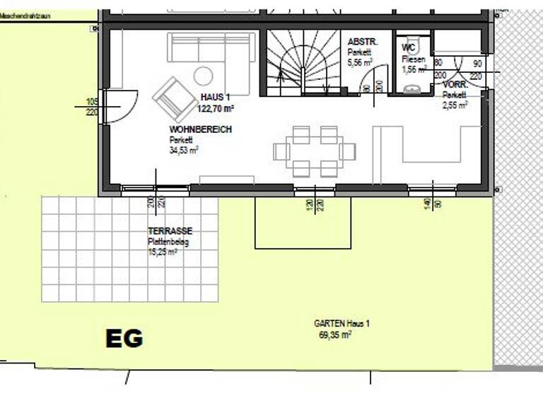
Beschreibung  der belagsfertigen und ca. 122 m² großen Doppelhaus-Hälfte

Haus 1

Bestens für Familien geeignet und übergabebereit

Erdgeschoss
Über den Vorgarten gelangen Sie zum Hauseingang und in den Vorraum mit separater Garderobe. Diese bietet ausreichend Platz für Ihre Kleidung, welche Sie für den täglichen Bedarf benötigen. Vom Vorraum gelangen Sie weiters in den großzügigen, und lichtdurchfluteten Wohnraum. Durch die anschließende Glasfront die Sie im Wohnbereich vorfinden und den sonnigen Garten mit großer Terrasse, wird das tiefe Raumbewusstsein nochmals intensiviert. Die offen gestaltete Küche befindet sich ebenfalls im Erdgeschoss und bietet viel Platz um sich kreativ, kulinarisch entfalten zu können. Selbstverständlich darf die Gäste-Toilette im Erdgeschoss, sowie der Abstellraum nicht fehlen.

Obergeschoss:

Über die Treppe gelangen Sie auf die zweite Ebene der Immobilie. Die beiden großen Schlafräumlichkeiten sind zentral begehbar und verfügen ihrerseits über ausreichend Stauraum, für Ihre Garderobe. Das Tageslicht-Bad ist mit einer Badewanne, einem Doppelwaschbecken und einer Toilette ausgestattet.

Dachgeschoss: 

Mit rund 30 m² bietet diese Etage den idealen Platz für einen Master-Bedroom, mit eigenem Badezimmer. Die ca. 10 m² große Galerie wird durch die angrenzende Terrasse erweitert, welche einlädt den Tag mit einem guten Glas Wein entspannt ausklingen zu lassen.

 

_Fakten im Überblick:_

* moderne Ausstattung und Architektur in ruhiger Lage
* gute Infrastruktur und Verkehrsanbindung
* maximale Wohlfühlatmosphäre in lichtdurchfluteten, sonnigen Räumen
* Luft-Wärmepumpe
* Fußbodenheizung
* Dachterrasse
* Belagsfertige Übergabe

Haus 2 und 3 sind bereits VERKAUFT

 

Weiterführende Informationen

Wir weisen ausdrücklich auf unser wirtschaftliches Naheverhältnis mit dem Abgeber/der Abgeberin hin! Irrtum und Änderungen vorbehalten! Die angeführten Bilder sind Visualisierungen. Abänderungen zur tatsächlichen Ausführung können resultieren. Die auf den Bildern ersichtlichen Einrichtungsgegenstände und Accessoires werden nicht mit verkauft. Eventuelle Änderungen der vorliegenden Baubeschreibung und Planung, die sich auf Grund von behördlichen Auflagen, Höherer Gewalt, Lieferengpässe, Kundenwünschen oder sonst notwendigen technischen Gründen ergeben, bleiben vorbehalten. Die ursprünglich ausgeschriebene Qualitätsnorm wird jedoch jederzeit gewährleistet. Alle Angaben ohne Gewährleistungsanspruch! Die Angaben im Exposé erfolgen im Auftrag unseres Auftraggebers. Für die Richtigkeit und Vollständigkeit der uns zur Verfügung gestellten Unterlagen/Auskünfte durch Veräußerer, Behörden usw. übernehmen wir keine Gewähr. Eigene Haftung ist ausgeschlossen.

 

Wir weisen darauf hin, dass zwischen dem Vermittler und dem zu vermittelnden Dritten ein familiäres oder wirtschaftliches Naheverhältnis besteht.

Der Vermittler ist als Doppelmakler tätig.

Infrastruktur / Entfernungen

Gesundheit
Arzt <500m
Apotheke <500m
Klinik <2.000m
Krankenhaus <3.000m

Kinder & Schulen
Schule <500m
Kindergarten <1.000m
Universität <2.500m
Höhere Schule <2.500m

Nahversorgung
Supermarkt <500m
Bäckerei <500m
Einkaufszentrum <2.500m

Sonstige
Bank <500m
Geldautomat <500m
Post <500m
Polizei <1.000m

Verkehr
Bus <500m
U-Bahn <500m
Straßenbahn <500m
Bahnhof <500m
Autobahnanschluss <2.000m

Angaben Entfernung Luftlinie / Quelle: OpenStreetMap

Merkmale

  • Bezug: Sofort
  • offene Küche
  • Gäste-WC
  • Balkon
  • Terrasse
  • Badezimmer: Badewanne, Bad mit Dusche, Bad mit Fenster
  • Bodenbelag: Estrich

Grundrisse

Grundrisse
1 / 3

Realisiere Dein Projekt

Bausubstanz und Energie

Heizwärmebedarf (HWB)

A++

Gesamtenergieeffizienz (fGEE)

  • Zustand der ImmobilieNeubau, Erstbezug
  • HeizungsartFußbodenheizung
  • EnergieträgerLuft-/Wasser-Wärmepumpe
Immowelt logo

Preisdetails

Kaufpreis
627000 €
5.131,77 €/m²
Provision für Käufer
3% des Kaufpreises zzgl. 20% USt.

Lage

address-icon
Wien (1220)

Weitere Informationen

Stichworte Rolladen, Anzahl der Badezimmer: 2, Anzahl der separaten WCs: 3, Anzahl Balkone: 1, Anzahl Terrassen: 1, Balkon-Terrassen-Fläche: 23,90 m², Gartenfläche: 69,35 m², Bundesland: Wien, 3 Etagen, Wohnungsnr.: 1 Sonstiges: Neubaustandard

Weitere Services

Lust auf eine Besichtigung?
Eine Frage zur Immobilie?
Nachricht hinzufügen
Mit der Nutzung der oben angegebenen Telefonnummer oder durch Klicken auf „Kontaktieren“ akzeptierst Du die Allgemeinen Nutzungsbedingungen, denen Du jederzeit widersprechen kannst. Weitere Informationen zum Datenschutz

Über den Anbieter

Elisabethstraße 22/ Top 2, 1010 WIEN
partner badge
3 Jahre Partnerschaft
Frau Beatrix FötschDein Kontakt
Online-ID: 2ll955f
Referenznummer: OBGC20250806075818698bc6324809b
Bero Immobilien GmbH
Bero Immobilien GmbH
Nachricht hinzufügen
Mit der Nutzung der oben angegebenen Telefonnummer oder durch Klicken auf „Kontaktieren“ akzeptierst Du die Allgemeinen Nutzungsbedingungen, denen Du jederzeit widersprechen kannst. Weitere Informationen zum Datenschutz
Wie zufrieden bist du mit dieser Seite (nicht mit der Immobilie selbst)?