

Haus zum Kauf875000 €3.241 €/m²10 Zimmer • 270 m² • 3.723 m² Grundstück
875000 €
3.241 €/m²
10 Zimmer • 270 m² • 3.723 m² Grundstück
Hier ist Platz fĂĽr mehrere Generationen!
Merkmale
- Bezug: kurzfristig möglich
- 3.723 m² Grundstück
- Kelleranteil
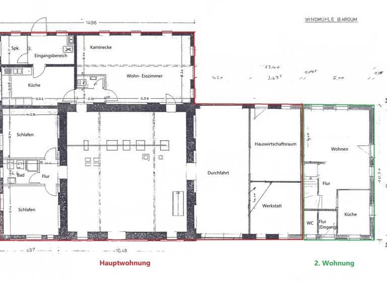
Grundrisse
Grundrisse
1 / 2
Realisiere Dein Projekt
Bausubstanz und Energie
Energieausweis
E
- Baujahr1887
- Zustand der ImmobilieMassivhaus
- EnergieträgerÖl
Preisdetails
Kaufpreis
875000 €
3.240,74 €/m²
Provision für Käufer
2,50 % inkl. MwSt.
Geschätzte Gesamtkosten
971.250 €1
Kaufpreis
875.000 €
Kaufnebenkosten
96.250 €
2Notarkosten (1,5%)
13.125 €
Grunderwerbsteuer (6,5%)
56.875 €
Provision für Käufer (2,5%)
21.875 €
Grundbucheintrag (0,5%)
4.375 €
1Der angezeigte Wert ist eine automatisch berechnete Schätzung von immowelt.
2Bei den Angaben handelt es sich um ortsübliche Werte. Individuelle Kosten können abweichen.
Lage

West-Bargum, Bargum (25842)
Der Anbieter hat die genaue Adresse nicht freigegeben
Weitere Informationen
Weitere Services
Lust auf eine Besichtigung?
Eine Frage zur Immobilie?
Ăśber den Anbieter
Immobilien Friedrichsen GmbH & Co. KGMaklerbĂĽro
Rathausplatz 1, 25899 NiebĂĽll
10 Jahre Partnerschaft
Online-ID: 2jyx85l
Referenznummer: 9390

Immobilien Friedrichsen GmbH & Co. KG
Wie zufrieden bist du mit dieser Seite (nicht mit der Immobilie selbst)?

